Appartamento via statuto 18, Bergamo
€ 620.000
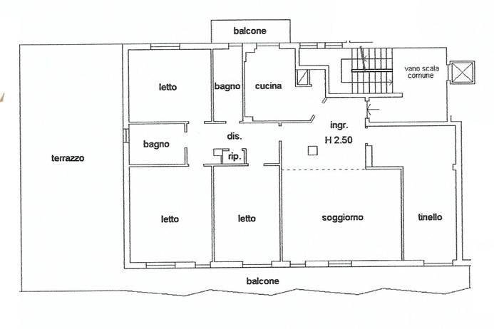
- BERGAMO SANTA LUCIA _ VIA STATUTO Ampio ed elegante appartamento penta locale di mq 180 dotato di 100 mq di splendida terrazza, cantina e posti auto condominiali liberi. Immobile completamente finemente ristrutturato situato al piano secondo di edificio molto signorile completamente e modernamente ristrutturato nelle parti comuni dotato di ascensore, ampia hall di ingresso con portierato ed ampio giardino condominiale sfruttabile, situato nel cuore di Santa Lucia a pochi passi dalla piazzetta e da tutti i servizi che il quartiere offre, a pochi passi dal tempio Votivo, dall'oratorio di Santa Lucia, dalle piscine, dalle scuole nonchè dal nuovo polo universitario e dal centro storico della città raggiungibile a piedi in 15 minuti. Internamente l'appartamento è composto da ampio ingresso, ampio salone con accesso al terrazzo, cucina abitabile con dispensa ed accesso al balcone di servizio, 4 camere da letto matrimoniali di cui 3 con accesso al terrazzo, 2 bagni finestrati, ripostiglio e grande terrazza di mq 100. L'immobile è perfettamente rifinito dotato di pavimentazioni in parquet, infissi con doppio vetro performanti con tapparelle motorizzate in alluminio rinforzato, aria condizionata con pompa di calore caldo/freddo, riscaldamento centralizzato contabilizzato, impianto di allarme perimetrale e volumetrico, illuminazione a led in tutti gli ambienti, terrazzi in gres simil legno. L'appartamento è molto luminoso grazie alle ampie finestre e porte finestre presenti nell'abitazioni inoltre è libero e finestrato su 3 lati, l'edificio è stato completamente ristrutturato nelle parti comuni sia per quanto concerne le facciate ed i balconi che per quanto concerne l'ascensore ed i vani scale condominiali, il tutto si presenta in perfetto stato d'uso e molto elegante, nel 2026 è previsto l'allaccio al tele riscaldamento. L'immobile viene venduto comprensivo di parziale arredo della cucina con piano induzione, arredi bagni ed alcune armadiature. Sono disponibili comodi posti auto condominiali interni non assegnati accessibili direttamente tramite ascensore dal piano interrato. Spese condominiali 3.400,00 annue compreso quota riscaldamento base escluso consumo riscaldamento. 620.000,00 CLASSE ENERGETICA: E 158,52 [Kwh/m²a] Vai all'annuncio: https://www.studio-valle.com/it/bergamo-santa-lucia-49/ STUDIO IMMOBILIARE VALLE Flaminia S.r.l. Real estate and investments 24121 Bergamo - Italy V.le Vitt. Emanuele II n. 65 tel +39 035 231588 WhatsApp: +39 3920190070 www.studio-valle.com [email protected] Facebook: StudioImmobiliareValle Instagram: studio.immobiliare.valle Tiktok: @studiovalle X: ValleRealEstate Skype: Valle-Real-Estate
Dati principali
| Riferimento | bgstat180 |
| Data annuncio | 25/02/2026 |
| Contratto | Vendita |
| Tipologia | Appartamento |
| Superficie | 215 m2 |
| Locali | 5 (4 camere da letto, 1 altro), 2 bagni, cucina abitabile |
| Piano | 2 di 6 totali |
| Occupato | Libero |
| Arredamento | Parziale |
Caratteristiche
Costi
| Prezzo | 620.000 € |
| Prezzo al m2 | 2.884 €/m2 |
Efficienza energetica
| Stato | Parzialmente ristrutturato |
| Riscaldamento | Centralizzato |
| Classe energetica | E |
| Indice di prestazione energetica (IPE) | 158 kWh/m2 anno |
Planimetrie
Virtual tour
Video
Indirizzo e mappa
via statuto
18, Bergamo
Annuncio senza mappa,
prova a chiedere la posizione all'inserzionista
prova a chiedere la posizione all'inserzionista
Calcolo mutuo
Prezzo di vendita:
Anticipo
20,00
Mutuo
80,00
Tasso: -+
Rata: 1.773 al mese
I risultati sono una stima indicativa basata sui dati inseriti e non costituiscono un’offerta finanziaria.
Inserzionista

Studio Immobiliare Valle
Viale Vittorio Emanuele II 65, Bergamo
Mostra Telefono
Chiama
CONTATTA

