Trilocale Via Dell'Ospedale, Cherasco
€ 219.000Trilocale in vendita
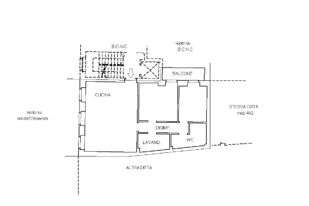
Nel cuore di Cherasco, dentro le storiche mura, proponiamo in vendita un trilocale situato al primo piano di un edificio composto da sole quattro unità e dotato di ascensore. L'immobile, ristrutturato completamente nel 2020, offre una superficie ben distribuita. L'ingresso avviene sulla zona giorno con angolo cottura, da cui si apre il corridoio che conduce alle diverse stanze. La zona notte è formata dalle due camere da letto dotate di accesso sul balcone pertinenziale, il servizio patronale e la lavanderia. L'appartamento è dotato di ventilazione meccanica controllata e sistema di allarme antifurto volumetrico e perimetrale, per garantire comfort e sicurezza. I vetri doppi assicurano un ottimo isolamento termico e acustico. La vendita include la nuova mobilia, pronta per essere utilizzata. Completa la proprietà la cantina. Il riscaldamento autonomo permette una gestione efficiente dei consumi, regolabile grazie alla caldaia a condensazione. Le spese condominiali sono irrisorie. Una soluzione abitativa che unisce modernità e praticità in una delle zone più affascinanti di Cherasco.
Ogni agenzia ha un proprio titolare ed è autonoma. - Le presenti informazioni non costituiscono elemento contrattuale.
Ogni agenzia ha un proprio titolare ed è autonoma. - Le presenti informazioni non costituiscono elemento contrattuale.
Dati principali
| Riferimento | 61182481 |
| Data annuncio | 25/02/2026 |
| Contratto | Vendita |
| Tipologia | Appartamento |
| Superficie | 102 m2 |
| Locali | 3 (3 altro), 2 bagni |
| Piano | 1 di 2 totali |
Costi
| Prezzo | 219.000 € |
| Prezzo al m2 | 2.147 €/m2 |
| Spese condominiali | € 25,00/mese |
Efficienza energetica
| Anno costruzione | 2020 |
| Riscaldamento | Autonomo |
| Tipo Alimentazione Riscaldamento | Metano |
| Classe energetica | A1 |
| Indice di prestazione energetica (EP GL, REN) | 5.47 kWh/m3 anno |
| Indice di prestazione energetica (EP GL, NREN) | 71.94 kWh/m3 anno |
Planimetrie
Video
Indirizzo e mappa
Via Dell'Ospedale, Cherasco
Calcolo mutuo
Prezzo di vendita:
Anticipo
20,00
Mutuo
80,00
Tasso: -+
Rata: 626 al mese
I risultati sono una stima indicativa basata sui dati inseriti e non costituiscono un’offerta finanziaria.
Inserzionista
Chiama
CONTATTA

