

Villa Fiorano Modenese
€ 410.000Fiorano Modenese – Villa allo stato grezzo
Fiorano Modenese, proponiamo in vendita villa allo stato grezzo (da ultimare), situata in una posizione assolutamente introvabile: tranquilla e riservata, ma a pochi passi da tutti i servizi e dalle comodità del centro.
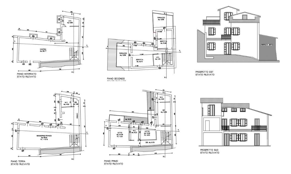
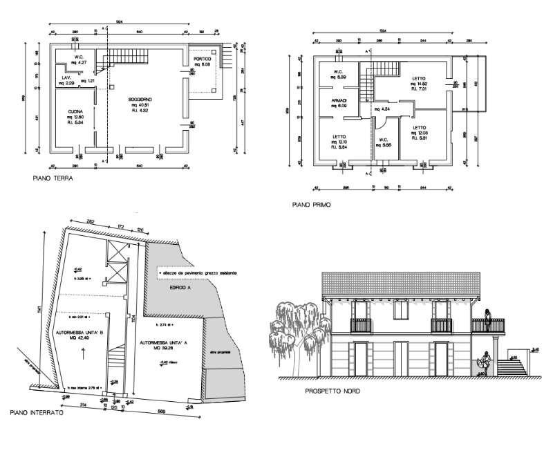
L’immobile si sviluppa su quattro livelli ed è così progettato:
Piano Terra
• Spazioso soggiorno
• Cucina abitabile con accesso diretto al giardino privato, ideale per momenti di relax e cene all’aperto
• 1 bagno
Piano Primo
• Zona notte composta da 3 camere da letto
• 2 bagni
Piano Mansarda
• Ampio locale mansardato versatile, ideale come studio, palestra o quarta camera
• Accesso diretto a una magnifica terrazza panoramica con vista aperta sul paesaggio/città
Piano Interrato
• Cantina
• Lavanderia
• Possibilità di realizzare garage doppio
All’interno del terreno di proprietà vi è inoltre la possibilità di realizzare una seconda costruzione, già dotata di progetto.
Soluzione ideale per chi desidera personalizzare gli spazi e vivere in una zona centrale, riservata e ben servita.
• Per informazioni più dettagliate, contattaci.
Ascensore
Bagno Disabili
L’immobile si sviluppa su quattro livelli ed è così progettato:
Piano Terra
• Spazioso soggiorno
• Cucina abitabile con accesso diretto al giardino privato, ideale per momenti di relax e cene all’aperto
• 1 bagno
Piano Primo
• Zona notte composta da 3 camere da letto
• 2 bagni
Piano Mansarda
• Ampio locale mansardato versatile, ideale come studio, palestra o quarta camera
• Accesso diretto a una magnifica terrazza panoramica con vista aperta sul paesaggio/città
Piano Interrato
• Cantina
• Lavanderia
• Possibilità di realizzare garage doppio
All’interno del terreno di proprietà vi è inoltre la possibilità di realizzare una seconda costruzione, già dotata di progetto.
Soluzione ideale per chi desidera personalizzare gli spazi e vivere in una zona centrale, riservata e ben servita.
• Per informazioni più dettagliate, contattaci.
Ascensore
Bagno Disabili
Dati principali
| Riferimento | 411 |
| Data annuncio | 24/02/2026 |
| Contratto | Vendita |
| Tipologia | Villa |
| Superficie | 280 m2 |
| Locali | più di 5 (8 altro) |
Costi
| Prezzo | 410.000 € |
| Prezzo al m2 | 1.464 €/m2 |
Efficienza energetica
| Classe energetica | Immobile esente da certificazione energetica |
Indirizzo e mappa
Fiorano Modenese
Annuncio senza mappa,
prova a chiedere la posizione all'inserzionista
prova a chiedere la posizione all'inserzionista
Calcolo mutuo
Prezzo di vendita:
Anticipo
20,00
Mutuo
80,00
Tasso: -+
Rata: 1.173 al mese
I risultati sono una stima indicativa basata sui dati inseriti e non costituiscono un’offerta finanziaria.
Inserzionista

Le Mura Immobiliare
Via Claudia Ovest, 195/197, Maranello
Mostra Telefono
Chiama
CONTATTA