Villa Via XX Settembre, Legnano
€ 215.000
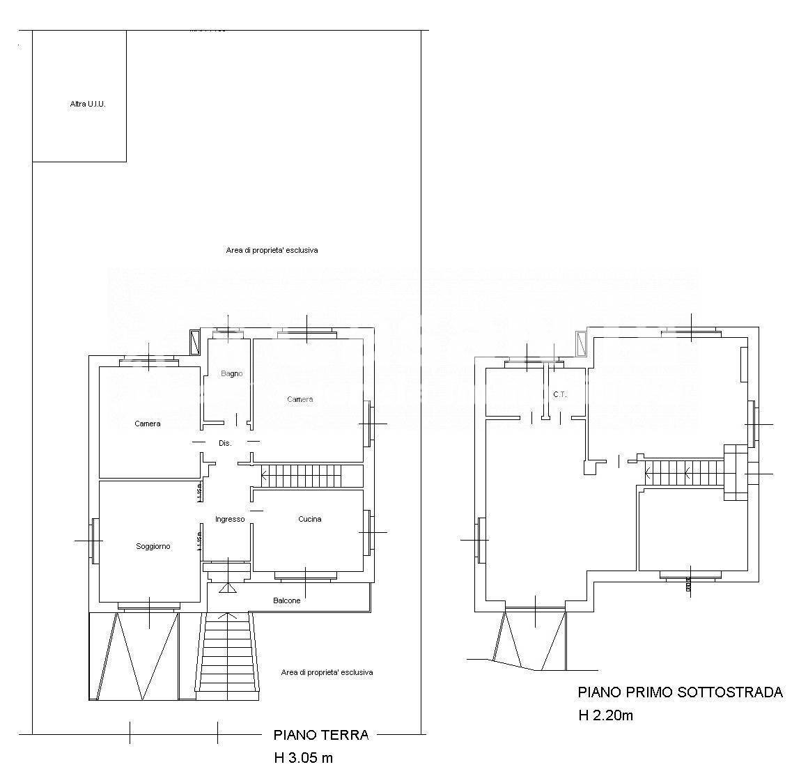
Legnano, confine San Giorgio su Legnano, villetta singola con taverna e giardino di proprietà. Libera subito. Legnano, in zona servita comoda per i servizi di prima necessità, proponiamo in vendita villetta singola libera su quattro lati, molto luminosa, composta da tre locali di mq 90 ca disposta tutta su unico piano oltre ampia taverna. La casa è circondata dal giardino, una piacevole area esterna di proprietà ideale per consumare pranzi all'aperto con la famiglia o gli amici; internamente l'immobile è disposto tutto su unico piano ed è così composto: al piano rialzato ingresso, soggiorno e cucina abitabile servita da un balcone; il disimpegno della zona notte conduce alle due grandi camere da letto e al bagno con doccia; una comoda scala in muratura conduce alla spaziosa taverna e all'ampia cantina. La casa è libera subito ed è da ristrutturare.
Dati principali
| Riferimento | 305575 |
| Data annuncio | 24/02/2026 |
| Contratto | Vendita |
| Tipologia | Villa |
| Superficie | 130 m2 |
| Locali | 3 (2 camere da letto, 1 altro), 1 bagno, cucina abitabile |
| Piano | Su più livelli, 2 totali |
| Tipo di costruzione | Signorile |
| Occupato | Libero |
| Box auto | Assente |
Caratteristiche
Costi
| Prezzo | 215.000 € |
| Prezzo al m2 | 1.654 €/m2 |
Efficienza energetica
| Stato | Da ristrutturare |
| Riscaldamento | Autonomo |
| Classe energetica | G |
| Indice di prestazione energetica (IPE) | 600 kWh/m2 anno |
Planimetrie
Video
Indirizzo e mappa
Via XX Settembre, Legnano
Annuncio senza mappa,
prova a chiedere la posizione all'inserzionista
prova a chiedere la posizione all'inserzionista
Calcolo mutuo
Prezzo di vendita:
Anticipo
20,00
Mutuo
80,00
Tasso: -+
Rata: 615 al mese
I risultati sono una stima indicativa basata sui dati inseriti e non costituiscono un’offerta finanziaria.
Inserzionista

Progefin srl
Via Macello 2/4, Legnano
Mostra Telefono
Chiama
CONTATTA

