Bilocale Via Santa Rita da Cascia, Milano (zona Barona)
€ 165.000Bilocale in vendita
VIA SANTA RITA DA CASCIA 59
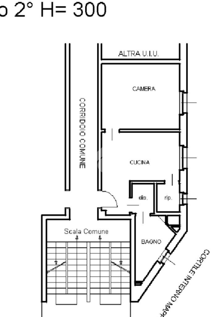
In caratteristico contesto stile “Vecchia Milano” di ringhiera, dotato di servizio di portineria e ascensore, in vendita bilocale di 40 mq posto al secondo piano.
La soluzione è composta da ingresso su soggiorno luminoso con cucinotto, antibagno, bagno finestrato con box doccia e camera da letto matrimoniale.
Il riscaldamento è centralizzato; Presenta infissi recentemente rinnovati. Si trova in buono stato manutentivo interno.
Situato in una zona oggetto di crescente riqualificazione, è ben servito dai mezzi pubblici (tram, autobus e linee metropolitane con collegamenti rapidi verso Porta Genova, Romolo e Famagosta).
Grazie alla sua funzionale disposizione, rappresenta una soluzione ideale sia come investimento sia per giovani coppie o studenti che desiderano vivere in un contesto dinamico e ben collegato.
In caratteristico contesto stile “Vecchia Milano” di ringhiera, dotato di servizio di portineria e ascensore, in vendita bilocale di 40 mq posto al secondo piano.
La soluzione è composta da ingresso su soggiorno luminoso con cucinotto, antibagno, bagno finestrato con box doccia e camera da letto matrimoniale.
Il riscaldamento è centralizzato; Presenta infissi recentemente rinnovati. Si trova in buono stato manutentivo interno.
Situato in una zona oggetto di crescente riqualificazione, è ben servito dai mezzi pubblici (tram, autobus e linee metropolitane con collegamenti rapidi verso Porta Genova, Romolo e Famagosta).
Grazie alla sua funzionale disposizione, rappresenta una soluzione ideale sia come investimento sia per giovani coppie o studenti che desiderano vivere in un contesto dinamico e ben collegato.
Dati principali
| Riferimento | 61181349 |
| Data annuncio | 22/02/2026 |
| Contratto | Vendita |
| Tipologia | Appartamento |
| Superficie | 38 m2 |
| Locali | 2 (2 altro), 1 bagno |
| Piano | 2 di 5 totali |
Costi
| Prezzo | 165.000 € |
| Prezzo al m2 | 4.342 €/m2 |
| Spese condominiali | € 100,00/mese |
Efficienza energetica
| Anno costruzione | 1960 |
| Riscaldamento | Centralizzato |
| Tipo Alimentazione Riscaldamento | Altro |
| Classe energetica | G |
| Indice di prestazione energetica (EP GL, REN) | 192 kWh/m3 anno |
| Indice di prestazione energetica (EP GL, NREN) | 192 kWh/m3 anno |
Planimetrie
Video
Indirizzo e mappa
Via Santa Rita da Cascia, Milano - quartiere Barona
Calcolo mutuo
Prezzo di vendita:
Anticipo
20,00
Mutuo
80,00
Tasso: -+
Rata: 472 al mese
I risultati sono una stima indicativa basata sui dati inseriti e non costituiscono un’offerta finanziaria.
Inserzionista
Chiama
CONTATTA

