Trilocale Canton Carasso, Ivrea
€ 160.000Trilocale in vendita
SAN BERNARDO - Proponiamo in vendita elegante appartamento di recente costruzione, situato al secondo piano di una palazzina moderna, caratterizzata da linee contemporanee e ottime finiture.
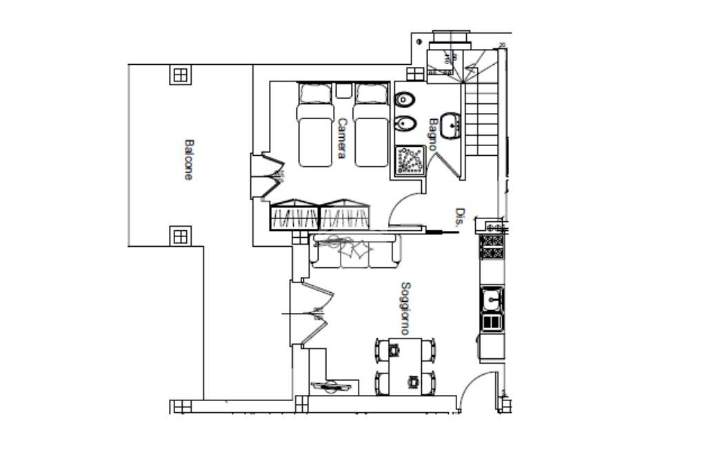
L’ingresso si apre direttamente sulla luminosa zona giorno, composta da un ampio soggiorno con angolo cottura perfettamente integrato nello spazio. L’ambiente risulta arioso e ben organizzato, con una distribuzione funzionale che consente di distinguere comodamente l’area living dalla zona pranzo. Il soggiorno gode di accesso diretto al terrazzo, uno spazio esterno vivibile, ideale per pranzi all’aperto, momenti di relax o per creare una piacevole zona verde privata.
Sempre al piano troviamo una prima camera da letto, versatile e adatta sia come camera matrimoniale che come stanza per bambini o studio, oltre a un bagno moderno, rifinito con materiali attuali e dotato di tutti i comfort.
Attraverso una comoda scala interna si accede al livello superiore, dove si sviluppa la seconda camera matrimoniale, ampia e ben illuminata, impreziosita dalla presenza di una cabina armadio che garantisce ordine e funzionalità. A questo piano sono presenti anche un secondo bagno e un pratico ripostiglio, perfetto come spazio aggiuntivo per organizzare al meglio la casa.
L’immobile, edificato nel 2020, si presenta in condizioni eccellenti, con impianti di nuova generazione e soluzioni abitative moderne che assicurano comfort ed efficienza.
Completa la proprietà una cantina e un box auto, elemento di grande valore aggiunto.
Soluzione ideale per chi desidera un’abitazione recente, ben distribuita su due livelli, pronta da abitare e pensata per offrire funzionalità e comfort.
La destinazione d'uso sarà modificata in abitazione a carico della parte venditrice.
L’ingresso si apre direttamente sulla luminosa zona giorno, composta da un ampio soggiorno con angolo cottura perfettamente integrato nello spazio. L’ambiente risulta arioso e ben organizzato, con una distribuzione funzionale che consente di distinguere comodamente l’area living dalla zona pranzo. Il soggiorno gode di accesso diretto al terrazzo, uno spazio esterno vivibile, ideale per pranzi all’aperto, momenti di relax o per creare una piacevole zona verde privata.
Sempre al piano troviamo una prima camera da letto, versatile e adatta sia come camera matrimoniale che come stanza per bambini o studio, oltre a un bagno moderno, rifinito con materiali attuali e dotato di tutti i comfort.
Attraverso una comoda scala interna si accede al livello superiore, dove si sviluppa la seconda camera matrimoniale, ampia e ben illuminata, impreziosita dalla presenza di una cabina armadio che garantisce ordine e funzionalità. A questo piano sono presenti anche un secondo bagno e un pratico ripostiglio, perfetto come spazio aggiuntivo per organizzare al meglio la casa.
L’immobile, edificato nel 2020, si presenta in condizioni eccellenti, con impianti di nuova generazione e soluzioni abitative moderne che assicurano comfort ed efficienza.
Completa la proprietà una cantina e un box auto, elemento di grande valore aggiunto.
Soluzione ideale per chi desidera un’abitazione recente, ben distribuita su due livelli, pronta da abitare e pensata per offrire funzionalità e comfort.
La destinazione d'uso sarà modificata in abitazione a carico della parte venditrice.
Dati principali
| Riferimento | 61180849 |
| Data annuncio | 22/02/2026 |
| Contratto | Vendita |
| Tipologia | Appartamento |
| Superficie | 74 m2 |
| Locali | 3 (3 altro), 2 bagni |
| Piano | 2 di 3 totali |
Costi
| Prezzo | 160.000 € |
| Prezzo al m2 | 2.162 €/m2 |
| Spese condominiali | € 125,00/mese |
Efficienza energetica
| Anno costruzione | 2020 |
| Riscaldamento | Autonomo |
| Tipo Alimentazione Riscaldamento | Metano |
| Classe energetica | A2 |
| Indice di prestazione energetica (EP GL, REN) | 6605.65 kWh/m3 anno |
| Indice di prestazione energetica (EP GL, NREN) | 37.21 kWh/m3 anno |
Planimetrie
Indirizzo e mappa
Canton Carasso, Ivrea
Calcolo mutuo
Prezzo di vendita:
Anticipo
20,00
Mutuo
80,00
Tasso: -+
Rata: 458 al mese
I risultati sono una stima indicativa basata sui dati inseriti e non costituiscono un’offerta finanziaria.
Inserzionista
Agenzia Tecnorete Studio Ivrea Due Sas
Via Torino, 112, Ivrea
Mostra Telefono
Chiama
CONTATTA

