Bilocale corso di Porta Romana, 131, Milano
€ 1.460 al mesePorta Romana Affittasi bilocale
Porta Romana/Medaglie D'Oro. In elegante Stabile D'Epoca dei primi del '900 con servizio di portierato giornaliero disponiamo di bilocale posto al 2 piano composto da: ingresso, soggiorno con cucina a vista, camera matrimoniale, bagno. Riscaldamento autonomo Libero subito!!! Richiesta mensile € 1460,00 oltre € 90,00 di condominio. Prezzo Trattabile. 6 mesi di cauzione. NON arredato Luminosa esposizione a Sud. Per Info Immogroup Srl 327.35.86.180
Dati principali
| Riferimento | Porta Romana 011 3p Silvia/Fabio |
| Data annuncio | 09/02/2026 |
| Contratto | Affitto |
| Tipologia | Appartamento |
| Superficie | 64 m2 |
| Locali | 2 (1 camera da letto, 1 altro), 1 bagno, cucina a vista |
| Piano | 2 di 5 totali |
| Tipo di costruzione | Signorile |
| Numero di balconi | 1 |
| Box auto | Assente |
| Arredamento | Parziale |
Caratteristiche
Costi
| Prezzo | 1.460 € al mese |
| Spese condominiali | € 90,00/mese |
Efficienza energetica
| Anno costruzione | 1930 |
| Stato | Ottimo |
| Riscaldamento | Autonomo |
| Classe energetica | C |
| Indice di prestazione energetica (IPE) | 175 kWh/m2 anno |
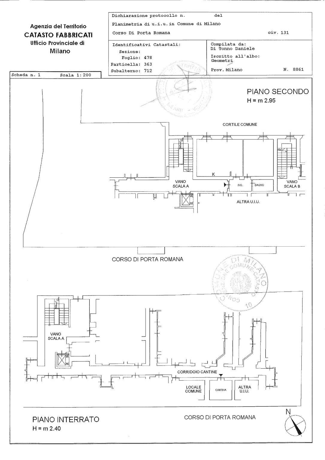
Planimetrie
Indirizzo e mappa
corso di Porta Romana, 131, Milano
Inserzionista

Immo Group srl
Via Roma 101, Torino
Mostra Telefono
Chiama
CONTATTA

