Quadrilocale Enrico Toti 7, Ravenna
€ 430.000
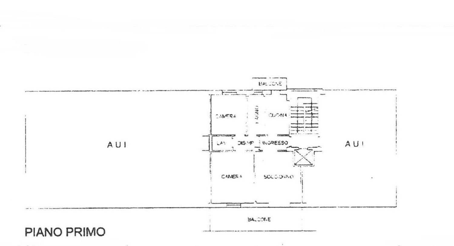
Vendiamo a Milano Marittima, a pochi passi dal mare, appartamento al primo piano servito da ascensore. L'immobile si sviluppa su un unico livello ed è composto da un ampio e luminoso soggiorno con accesso diretto al terrazzo abitabile e cucina separata dotata anch'essa di sfogo esterno. Dal disimpegno si accede alla zona notte, caratterizzata dalla camere da letto matrimoniale e la camera da letto doppia entrambe servite da un comodo bagno. É infine presente un secondo bagno. Completa la soluzione il garage di proprietà e il posto auto condominiale assegnato. Il condominio si presenta in buone condizione e la facciata esterna è stata ristrutturata di recente. Ottima soluzione ideale per chi cerca un investimento, vista la vicinanza al mare e al centro, ma anche per chi cerca un appoggio in cui passare le proprie vacanze.
Dati principali
| Riferimento | BRB206 |
| Data annuncio | 22/02/2026 |
| Contratto | Vendita |
| Tipologia | Appartamento |
| Superficie | 95 m2 |
| Locali | 4 (2 camere da letto, 2 altro), 2 bagni, cucina cucinino |
| Piano | 1 |
| Arredamento | Completo |
Caratteristiche
Costi
| Prezzo | 430.000 € |
| Prezzo al m2 | 4.526 €/m2 |
Efficienza energetica
| Stato | Buono |
| Tipo Alimentazione Riscaldamento | Altro |
| Classe energetica | G |
| Indice di prestazione energetica (IPE) | - |
Planimetrie
Indirizzo e mappa
Enrico Toti
7, Ravenna
Annuncio senza mappa,
prova a chiedere la posizione all'inserzionista
prova a chiedere la posizione all'inserzionista
Calcolo mutuo
Prezzo di vendita:
Anticipo
20,00
Mutuo
80,00
Tasso: -+
Rata: 1.230 al mese
I risultati sono una stima indicativa basata sui dati inseriti e non costituiscono un’offerta finanziaria.
Inserzionista
Barbieri immobiliare Srl
Viale Volturno 27, Cervia
Mostra Telefono
Chiama
CONTATTA

