Villa Strada Pozzetto 13, Rivoli
€ 675.000
Nel cuore di Rivoli, nellesclusiva e affascinante cornice della zona del Castello, proponiamo in vendita una prestigiosa villa unifamiliare libera su quattro lati, immersa nella quiete e nel verde, una residenza di charme pensata per chi desidera vivere in un contesto riservato ed elegante.
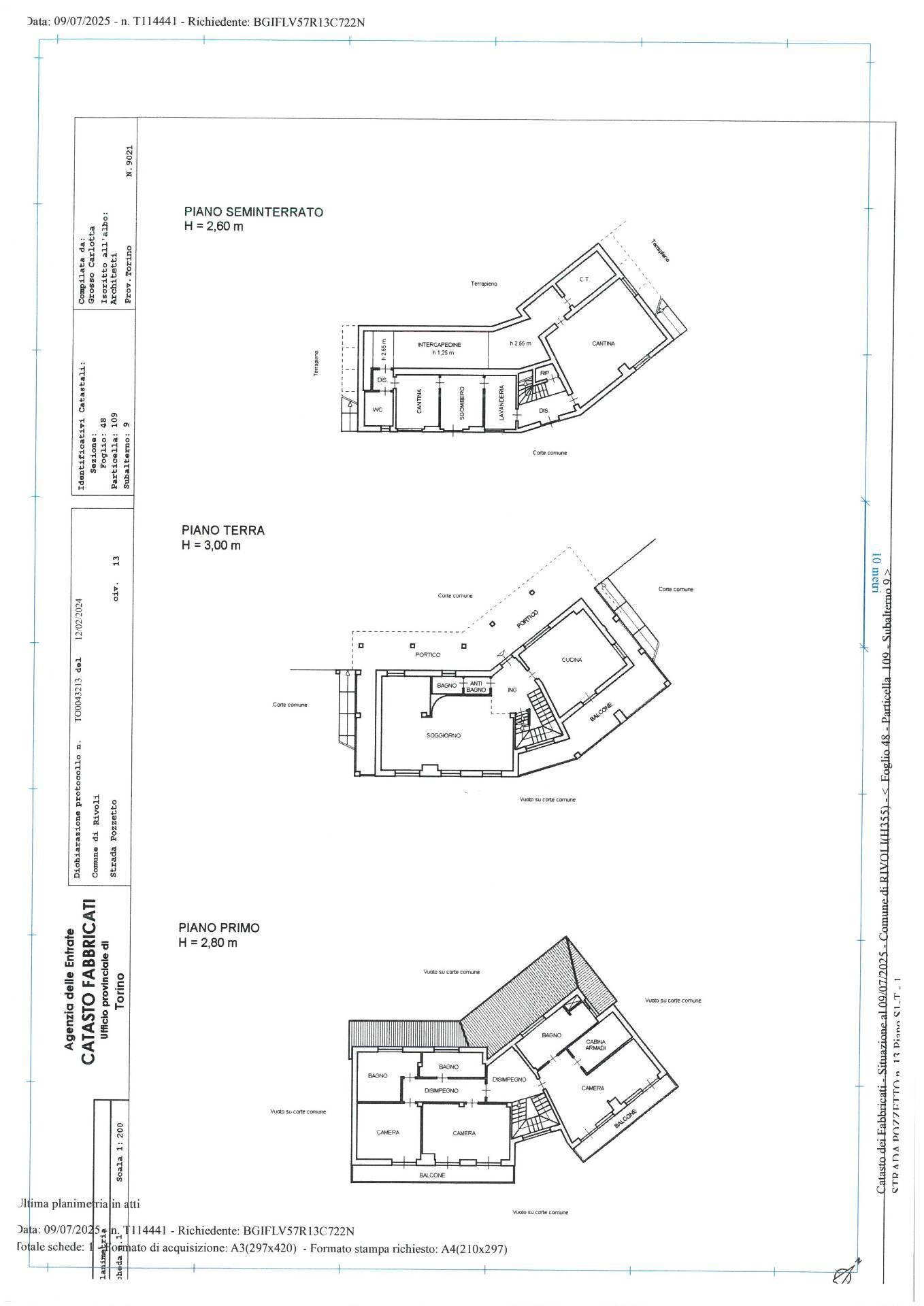
La villa si sviluppa su più livelli e accoglie con un ingresso che si apre su un sontuoso soggiorno doppio, ampio e luminoso, ideale per momenti di convivialità e relax.
La spaziosa cucina abitabile, funzionale e raffinata, si integra armoniosamente con gli spazi del piano terra, completati da disimpegno, antibagno, bagno e ampio balcone.
Una comoda scala in legno e muratura conduce al primo piano, dove si sviluppa la zona notte composta da quattro spaziose camere da letto, due bagni e due ampi balconi affacciati sul verde circostante e con un'incantevole vista sulla collina di Torino e sulle montagne, creando unatmosfera intima e rilassante.
Il piano seminterrato offre ulteriori ambienti di servizio con due ampie cantine, un locale di sgombero, una lavanderia ed un servizio, garantendo praticità e organizzazione degli spazi.
Allesterno, la proprietà è impreziosita da circa 2.000 mq di parco privato, unoasi verde curata nei dettagli, con area adibita a orto e zone piantumate con alberi ornamentali e fiori; lintero giardino è servito da impianto di irrigazione, assicurando bellezza e manutenzione ottimale in ogni stagione.
Inoltre all'esterno troviamo due posti auto coperti.
Le ampie dimensioni della villa la rendono ideale per essere trasformata in una raffinata residenza bifamiliare.
Dotata di impianto di antifurto perimetrale e volumetrico, serramenti in legno con doppi vetri, inferriate di sicurezza e tende da sole motorizzate su tutti i balconi, la villa coniuga sicurezza, comfort e qualità costruttiva.
I servizi interni, completamente ristrutturati nel 2018, esprimono uno stile contemporaneo che valorizza ulteriormente leleganza della residenza.
Una dimora di prestigio che rappresenta un perfetto equilibrio tra esclusività, natura e raffinatezza, ideale per chi sogna una casa di rappresentanza in una delle zone più ambite della città.
Non lasciarti sfuggire questa soluzione unica nel suo genere, CONTATTACI per maggiorni informazioni.
La villa si sviluppa su più livelli e accoglie con un ingresso che si apre su un sontuoso soggiorno doppio, ampio e luminoso, ideale per momenti di convivialità e relax.
La spaziosa cucina abitabile, funzionale e raffinata, si integra armoniosamente con gli spazi del piano terra, completati da disimpegno, antibagno, bagno e ampio balcone.
Una comoda scala in legno e muratura conduce al primo piano, dove si sviluppa la zona notte composta da quattro spaziose camere da letto, due bagni e due ampi balconi affacciati sul verde circostante e con un'incantevole vista sulla collina di Torino e sulle montagne, creando unatmosfera intima e rilassante.
Il piano seminterrato offre ulteriori ambienti di servizio con due ampie cantine, un locale di sgombero, una lavanderia ed un servizio, garantendo praticità e organizzazione degli spazi.
Allesterno, la proprietà è impreziosita da circa 2.000 mq di parco privato, unoasi verde curata nei dettagli, con area adibita a orto e zone piantumate con alberi ornamentali e fiori; lintero giardino è servito da impianto di irrigazione, assicurando bellezza e manutenzione ottimale in ogni stagione.
Inoltre all'esterno troviamo due posti auto coperti.
Le ampie dimensioni della villa la rendono ideale per essere trasformata in una raffinata residenza bifamiliare.
Dotata di impianto di antifurto perimetrale e volumetrico, serramenti in legno con doppi vetri, inferriate di sicurezza e tende da sole motorizzate su tutti i balconi, la villa coniuga sicurezza, comfort e qualità costruttiva.
I servizi interni, completamente ristrutturati nel 2018, esprimono uno stile contemporaneo che valorizza ulteriormente leleganza della residenza.
Una dimora di prestigio che rappresenta un perfetto equilibrio tra esclusività, natura e raffinatezza, ideale per chi sogna una casa di rappresentanza in una delle zone più ambite della città.
Non lasciarti sfuggire questa soluzione unica nel suo genere, CONTATTACI per maggiorni informazioni.
Dati principali
| Riferimento | 1013185 |
| Data annuncio | 22/02/2026 |
| Contratto | Vendita |
| Tipologia | Villa |
| Superficie | 346 m2 |
| Locali | più di 5 (4 camere da letto, 3 altro), 4 bagni, cucina abitabile |
| Piano | Su più livelli, 3 totali |
| Tipo di costruzione | Signorile |
| Numero posti auto | 2 |
Caratteristiche
Costi
| Prezzo | 675.000 € |
| Prezzo al m2 | 1.951 €/m2 |
Efficienza energetica
| Stato | Buono |
| Riscaldamento | Autonomo |
| Tipo Alimentazione Riscaldamento | Altro |
| Classe energetica | D |
| Indice di prestazione energetica (IPE) | 152 kWh/m2 anno |
Planimetrie
Indirizzo e mappa
Strada Pozzetto
13, Rivoli
Annuncio senza mappa,
prova a chiedere la posizione all'inserzionista
prova a chiedere la posizione all'inserzionista
Calcolo mutuo
Prezzo di vendita:
Anticipo
20,00
Mutuo
80,00
Tasso: -+
Rata: 1.930 al mese
I risultati sono una stima indicativa basata sui dati inseriti e non costituiscono un’offerta finanziaria.
Inserzionista

Compagnia Immobiliare Collegno
Viale XXIV Maggio, 5, Collegno
Mostra Telefono
Chiama
CONTATTA

