Quadrilocale via Michelangelo Pittatore, Asti
€ 195.000- Attico delizioso nella zona Nord della Città -
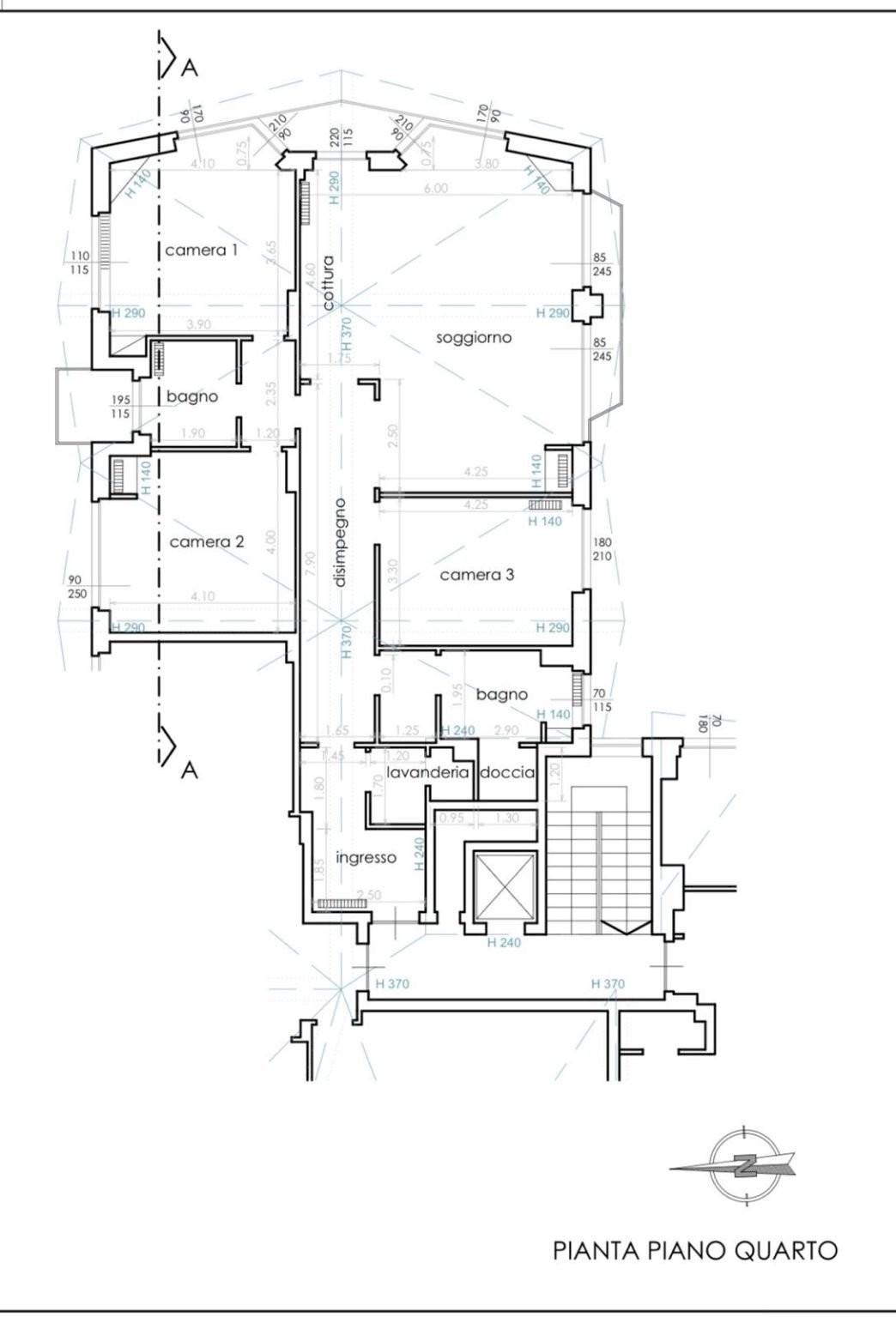
Scopri questo delizioso e luminosissimo attico situato in una zona prestigiosa della città, in una via tranquilla che offre un rifugio ideale dalla frenesia urbana. Questo appartamento di circa 130 mq si trova all'ultimo piano di un elegante caseggiato di quattro piani, dotato di ascensore per un accesso comodo e agevole. L'immobile è composto da un accogliente ingresso che conduce a un ampio salone doppio, perfetto per accogliere amici e familiari. La cucina abitabile è funzionale e luminosa, mentre le due camere da letto offrono spazio e comfort. I doppi servizi e la lavanderia completano la disposizione interna, rendendo questo attico ideale per famiglie o professionisti in cerca di spazio. Le ampie vetrate panoramiche regalano una vista mozzafiato e inondano gli ambienti di luce naturale. Il terrazzino panoramico è il luogo perfetto per godere di momenti di relax all'aria aperta. I pavimenti in splendido marmo bianco e in travertino nelle camere da letto aggiungono un tocco di eleganza, mentre le porte interne in legno vetrate conferiscono calore agli spazi. L'appartamento necessita di qualche lavoro di riammodernamento, offrendo l'opportunità di personalizzarlo secondo il proprio gusto. Questo attico è una scelta perfetta per chi desidera vivere in una delle zone più ambite della città. Non perdere l'occasione di visitare questo immobile unico! Contattaci per maggiori informazioni e per prenotare una visita..... "Il tuo angolo di cielo privato"
Dati principali
| Riferimento | ID2981394 |
| Data annuncio | 19/02/2026 |
| Contratto | Vendita |
| Tipologia | Appartamento |
| Superficie | 130 m2 |
| Locali | 4 (2 camere da letto, 2 altro), 2 bagni, cucina abitabile |
| Piano | 4 di 4 totali |
| Tipo di costruzione | Signorile |
| Numero di terrazzi | 1 |
| Box auto | Assente |
| Arredamento | Assente |
Caratteristiche
Costi
| Prezzo | 195.000 € |
| Prezzo al m2 | 1.500 €/m2 |
Efficienza energetica
| Anno costruzione | 1970 |
| Stato | Buono |
| Riscaldamento | Centralizzato |
| Classe energetica | F |
| Indice di prestazione energetica (IPE) | 175 kWh/m2 anno |
Planimetrie
Indirizzo e mappa
via Michelangelo Pittatore, Asti
Calcolo mutuo
Prezzo di vendita:
Anticipo
20,00
Mutuo
80,00
Tasso: -+
Rata: 558 al mese
I risultati sono una stima indicativa basata sui dati inseriti e non costituiscono un’offerta finanziaria.
Inserzionista
Chiama
CONTATTA


