Villa a Schiera Via Sempione 13, Palestrina
€ 194.000
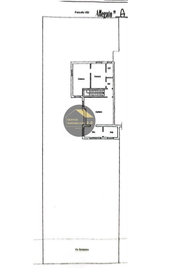
Indipendenza, comfort e spazio verde Via Sempione, Carchitti frazione di Palestrina Nel cuore di Carchitti, in Via Sempione 13, proponiamo in vendita una porzione di bifamiliare soluzione indipendente disposta su due livelli, con ampio giardino privato e spazi esterni ideali per vivere la casa tutto lanno. Una proprietà pensata per chi cerca indipendenza, metrature comode e ambienti perfetti per convivialità e famiglia. Labitazione si sviluppa su circa 130 mq ed è pensata per offrire ambienti comodi, luminosi e ben distribuiti. Al piano terra si viene accolti in una cucina abitabile, spaziosa e funzionale, ideale per la quotidianità familiare. Il soggiorno è ampio e ben proporzionato, arricchito da un termocamino a legna che dona calore e carattere allambiente, creando unatmosfera accogliente e conviviale durante tutto lanno. Completa il livello un bagno finestrato, comodo e ben organizzato. La scala interna conduce al piano superiore, dedicato alla zona notte. Qui gli spazi si articolano in maniera intelligente: sul lato destro troviamo una grande camera matrimoniale con disimpegno (cabina armadio) e bagno finestrato, mentre sul lato sinistro si sviluppano altre due ampie camere matrimoniali, servite da disimpegno e da un ulteriore bagno finestrato, posizionato in una delle camere. Una disposizione che permette di garantire privacy, comodità e una gestione funzionale degli spazi, rendendo la casa ideale anche per famiglie numerose o per chi desidera ambienti ampi e ben separati. Il valore aggiunto dellimmobile è rappresentato dallesterno: il giardino, generoso nelle dimensioni, consente di realizzare più posti auto interni e offre spazi perfetti per momenti di relax e convivialità. Sono presenti forno a legna, barbecue in muratura, legnaia, ampio magazzino e una tettoia in legno sotto la quale è possibile organizzare pranzi e cene allaperto in totale riservatezza. Una proprietà che coniuga indipendenza, metrature importanti e spazi esterni attrezzati, perfetta per chi desidera una casa da vivere tutto lanno, sia allinterno che allestero, completa di impianto di allarme per una maggiore sicurezza e tranquillità quotidiana. Si trova all'interno cdi un consorzio che gestisce la pulizia di tutte le strade e il giardinaggio delle piante e degli alberi che danno sulle strade. Per quanto riguarda le utenze e i servizi in genere: l'acqua è consortile con il pozzo, per la fognatura è presente la fossa biologica e per il gas c'è il bombolone interrato.
Dati principali
| Riferimento | CAR194 |
| Data annuncio | 21/02/2026 |
| Contratto | Vendita |
| Tipologia | Villa a Schiera |
| Superficie | 134 m2 |
| Locali | 4 (4 camere da letto), 3 bagni, cucina abitabile |
| Piano | Su più livelli, 2 totali |
| Tipo di costruzione | Signorile |
| Occupato | Libero |
| Arredamento | Assente |
Caratteristiche
Costi
| Prezzo | 194.000 € |
| Prezzo al m2 | 1.448 €/m2 |
Efficienza energetica
| Stato | Ottimo |
| Riscaldamento | Autonomo |
| Tipo Alimentazione Riscaldamento | Gpl |
| Classe energetica | F |
| Indice di prestazione energetica (IPE) | - |
Planimetrie
Virtual tour
Video
Indirizzo e mappa
Via Sempione
13, Palestrina
Annuncio senza mappa,
prova a chiedere la posizione all'inserzionista
prova a chiedere la posizione all'inserzionista
Calcolo mutuo
Prezzo di vendita:
Anticipo
20,00
Mutuo
80,00
Tasso: -+
Rata: 555 al mese
I risultati sono una stima indicativa basata sui dati inseriti e non costituiscono un’offerta finanziaria.
Inserzionista

Immobiliare Casilina Giardinetti S.R.L.
Via dei giardinetti 106, Roma
Mostra Telefono
Mostra Cellulare
Chiama
CONTATTA

