Villa Via Carignano Grande, Nardò
€ 750.000
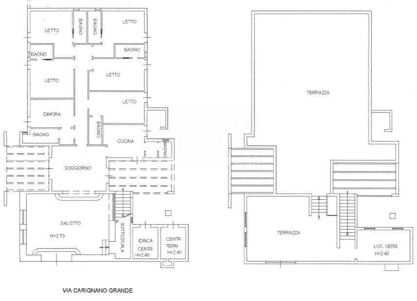
NARDO' - SALENTO A Nardò, affascinante comune in provincia di Lecce, celebre per alcune delle marine più suggestive del Salento, proponiamo in vendita una proprietà di grande potenziale: circa 310 mq coperti immersi in un terreno di pertinenza di circa 17.000 mq. La proprietà è dotata di due accessi separati, uno principale con cancello elettrico e un'altro di servizio. Attualmente adibita ad agriturismo, la struttura è rimasta operativa fino alla scorsa stagione, conquistando negli anni eccellenti recensioni da parte di ospiti provenienti da tutto il mondo. Avviata con successo nel 2010, gode di una posizione strategica, equidistante dal centro abitato e dal Parco Naturale Regionale di Porto Selvaggio e Palude del Capitano, meta privilegiata per gli amanti della natura incontaminata e delle attività outdoor. Varcato il primo cancello, un viale dingresso conduce al piazzale principale. La villa si distingue per la sua delicata facciata rosa pastello con dettagli color crema. Un grazioso arco introduce alla zona pergolata, preludio al cuore dellimmobile: latrio reception. Questo ambiente, luminoso e accogliente, è valorizzato da un doppio ingresso, ampie porte-finestre su entrambi i lati e una finestra orizzontale che si affaccia dal terrazzo, garantendo una straordinaria luce naturale. Qui troviamo anche una stanza jolly con bagno privato, inizialmente adibita a cucina/lavanderia e attualmente in fase di trasformazione: uno spazio versatile che può diventare unulteriore camera per gli ospiti o un alloggio per il custode. Sulla destra dellatrio si apre la generosa sala principale, preceduta da un camino centrale che dona calore e atmosfera allampio open space multifunzionale. Lambiente comprende una cucina moderna, la zona pranzo e un confortevole salotto. Le numerose aperture, tra cui unampia parete vetrata, conducono al terrazzo adiacente e al giardino con un giovane agrumeto, creando una perfetta continuità tra interno ed esterno. La zona notte, invece, è preceduta da un corridoio centrale che disimpegna le sei camere matrimoniali, tutte fornite di climatizzazione caldo/freddo e bagno privato con doccia, alimentati con acqua calda avendo in dotazione un impianto solare termico. Ogni stanza dispone di accesso diretto al patio perimetrale e al giardino tramite porte-finestre complete di zanzariere e persiane in alluminio. La disposizione degli ambienti garantisce funzionalità, privacy e comfort, rendendo la proprietà ideale sia come prestigiosa residenza privata sia come investimento di valore. Tramite una comoda scala esterna si accede ad un ulteriore vano con terrazzo esclusivo e inoltre al piano terra la proprietà viene completata da due ulteriori vani tecnici. Realizzata con materiali di alto livello, la proprietà è stata oggetto di ristrutturazione nel 2020 e si presenta in buone condizioni generali, pur richiedendo alcuni interventi di manutenzione ordinaria prima di essere abitata. Allesterno prevalgono materiali autentici come le chianche in pietra leccese e i muretti a secco in pietra viva creando un armonioso equilibrio tra rustico e moderno. Elementi storici del territorio, come laia originale, sono stati conservati e valorizzati per raccontare la tradizione rurale di un tempo e il forno a legna, realizzato da un artigiano locale, arricchisce ulteriormente lo spazio esterno, offrendo lambiente ideale per cene conviviali allaperto in totale privacy. Questa proprietà rappresenta unattività ricettiva perfettamente avviata e un investimento solido e versatile, con interessanti possibilità di ulteriore sviluppo. Unesclusiva Coldwell Banker! Contatta la nostra Agenzia per maggiori informazioni o per prenotare una visita dellimmobile.
Dati principali
| Riferimento | CBI104-2945-336 |
| Data annuncio | 21/02/2026 |
| Contratto | Vendita |
| Tipologia | Villa |
| Superficie | 309 m2 |
| Locali | più di 5 (6 camere da letto, 3 altro), 7 bagni, cucina a vista |
| Piano | Terra, 1 totali |
| Tipo di costruzione | Signorile |
| Occupato | Libero |
| Numero posti auto | 10 |
| Arredamento | Assente |
Caratteristiche
Costi
| Prezzo | 750.000 € |
| Prezzo al m2 | 2.427 €/m2 |
Efficienza energetica
| Stato | Ottimo |
| Riscaldamento | Autonomo |
| Classe energetica | D |
| Indice di prestazione energetica (IPE) | 127 kWh/m2 anno |
Planimetrie
Virtual tour
Indirizzo e mappa
Via Carignano Grande, Nardò
Annuncio senza mappa,
prova a chiedere la posizione all'inserzionista
prova a chiedere la posizione all'inserzionista
Calcolo mutuo
Prezzo di vendita:
Anticipo
20,00
Mutuo
80,00
Tasso: -+
Rata: 2.145 al mese
I risultati sono una stima indicativa basata sui dati inseriti e non costituiscono un’offerta finanziaria.
Inserzionista

Coldwell Banker Gruppo Bodini
Piazza Dante Alighieri, 43, Galatina
Mostra Telefono
Mostra Cellulare
Chiama
CONTATTA

