Villa San Lorenzo al Mare
€ 435.000
Nella splendida cornice di San Lorenzo al Mare, in posizione soleggiata e tranquilla, proponiamo in vendita unampia e luminosa casa indipendente di 165 mq commerciali, impreziosita da una suggestiva vista mare.
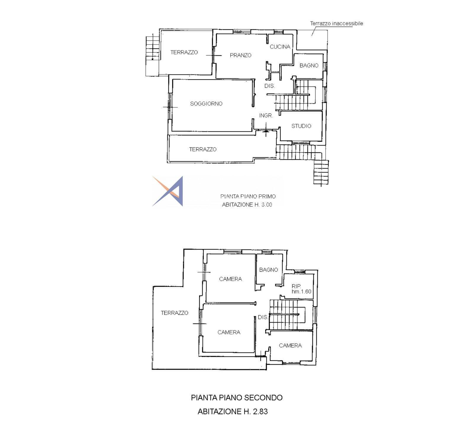
Labitazione si apre su un comodo disimpegno che conduce alla zona giorno con cucina a vista, un ambiente accogliente e ben illuminato, con accesso diretto alla prima terrazza panoramica esposta a Sud, ideale per godere di momenti di relax con vista sul mare.
Sullo stesso livello troviamo una spaziosa camera matrimoniale, anchessa molto luminosa, una cameretta e un bagno finestrato.
Al piano superiore, raggiungibile tramite una comoda scala interna, si sviluppa la zona notte composta da una seconda camera matrimoniale di generose dimensioni con accesso alla terrazza panoramica vista mare, due ulteriori camere da letto e un secondo bagno finestrato.
La proprietà è circondata da circa 1.000 mq di giardino, uno spazio verde che garantisce privacy e molteplici possibilità di utilizzo.
Completano la proprietà un ampio magazzino di 85 mq e un box auto di 20 mq.
Una soluzione ideale per chi desidera vivere in un contesto riservato, immerso nella tranquillità, senza rinunciare alla comodità dei servizi e alla bellezza del mare.
Labitazione si apre su un comodo disimpegno che conduce alla zona giorno con cucina a vista, un ambiente accogliente e ben illuminato, con accesso diretto alla prima terrazza panoramica esposta a Sud, ideale per godere di momenti di relax con vista sul mare.
Sullo stesso livello troviamo una spaziosa camera matrimoniale, anchessa molto luminosa, una cameretta e un bagno finestrato.
Al piano superiore, raggiungibile tramite una comoda scala interna, si sviluppa la zona notte composta da una seconda camera matrimoniale di generose dimensioni con accesso alla terrazza panoramica vista mare, due ulteriori camere da letto e un secondo bagno finestrato.
La proprietà è circondata da circa 1.000 mq di giardino, uno spazio verde che garantisce privacy e molteplici possibilità di utilizzo.
Completano la proprietà un ampio magazzino di 85 mq e un box auto di 20 mq.
Una soluzione ideale per chi desidera vivere in un contesto riservato, immerso nella tranquillità, senza rinunciare alla comodità dei servizi e alla bellezza del mare.
Dati principali
| Riferimento | 14148 |
| Data annuncio | 20/02/2026 |
| Contratto | Vendita |
| Tipologia | Villa |
| Superficie | 165 m2 |
| Locali | più di 5 (6 camere da letto, 1 altro), 2 bagni, cucina a vista |
| Occupato | Libero |
| Box auto | Singolo |
| Numero posti auto | 3 |
| Arredamento | Parziale |
Caratteristiche
Costi
| Prezzo | 435.000 € |
| Prezzo al m2 | 2.636 €/m2 |
Efficienza energetica
| Stato | Ottimo |
| Riscaldamento | Autonomo |
| Tipo Alimentazione Riscaldamento | Altro |
| Classe energetica | G |
| Indice di prestazione energetica (IPE) | - |
Planimetrie
Indirizzo e mappa
San Lorenzo al Mare
Annuncio senza mappa,
prova a chiedere la posizione all'inserzionista
prova a chiedere la posizione all'inserzionista
Calcolo mutuo
Prezzo di vendita:
Anticipo
20,00
Mutuo
80,00
Tasso: -+
Rata: 1.244 al mese
I risultati sono una stima indicativa basata sui dati inseriti e non costituiscono un’offerta finanziaria.
Inserzionista
Chiama
CONTATTA


