Ufficio Via Cristoforo Colombo, Novellara
€ 84.000Ufficio in vendita
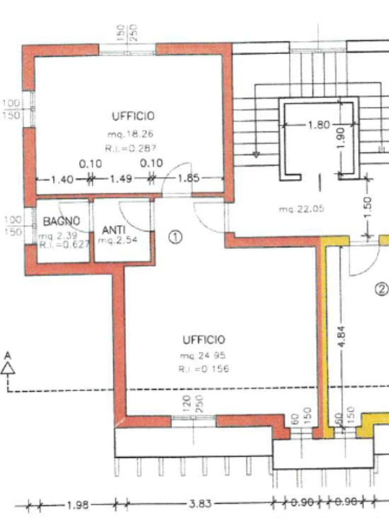
Nel comune di Novellara, proponiamo in vendita un ufficio situato al primo piano di un edificio costruito nel 2000. L'immobile si estende su una superficie di 70 mq e si presenta in ottime condizioni, pronto per accogliere la vostra attività. Gli spazi interni sono suddivisi in due ambienti distinti, ideali per organizzare al meglio il lavoro e garantire la giusta privacy. L'ufficio è dotato di aria condizionata, assicurando un ambiente confortevole in ogni stagione. Inoltre, le spese di gestione sono contenute, rendendo questa soluzione particolarmente interessante per chi cerca un investimento funzionale e conveniente. La posizione strategica e le caratteristiche dell'immobile lo rendono adatto a diverse tipologie di attività professionali.
Dati principali
| Riferimento | 61176334 |
| Data annuncio | 19/02/2026 |
| Contratto | Vendita |
| Tipologia | Ufficio |
| Superficie | 70 m2 |
| Locali | 2 (2 altro), 1 bagno |
| Piano | 1 di 2 totali |
Costi
| Prezzo | 84.000 € |
| Prezzo al m2 | 1.200 €/m2 |
| Spese condominiali | € 8,00/mese |
Efficienza energetica
| Anno costruzione | 2000 |
| Tipo Alimentazione Riscaldamento | Metano |
| Classe energetica | C |
| Indice di prestazione energetica (IPE) | - |
Planimetrie
Indirizzo e mappa
Via Cristoforo Colombo, Novellara
Calcolo mutuo
Prezzo di vendita:
Anticipo
20,00
Mutuo
80,00
Tasso: -+
Rata: 240 al mese
I risultati sono una stima indicativa basata sui dati inseriti e non costituiscono un’offerta finanziaria.
Inserzionista
Chiama
CONTATTA

