Casa semi indipendente Via Castelletto, San Giovanni in Persiceto
€ 360.000Casa semindipendente in vendita
SAN GIOVANNI IN PERSICETO - LOC CASTELLETTO VIA CASTELLETTO 6E
Proponiamo in vendita splendida porzione di casa, ideale per chi desidera ambienti generosi e la tranquillità di una soluzione semi-indipendente.
Piano terra:
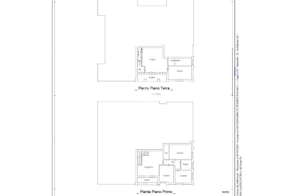
L’ingresso si apre su un ampio e luminoso soggiorno, cucina abitabile e a completare il livello una comoda zona lavanderia e un primo bagno finestrato con box doccia.
Piano primo:
Salendo troviamo una seconda zona living, ideale come salotto relax o area studio, con affaccio su un bellissimo terrazzo. La zona notte è composta da tre camere da letto, un pratico ripostiglio e un secondo bagno finestrato con box doccia.
Spazi esterni e comfort
La proprietà è valorizzata da un giardino privato con esposizione su due lati, un’ampia autorimessa e posti auto.
Possibilità di creare anche soluzione genitori-figli con doppio ingresso.
Una soluzione versatile, perfetta per famiglie o per chi desidera ambienti ampi e ben distribuiti, senza rinunciare alla comodità dei servizi.
Contattaci per maggiori informazioni o per prenotare una visita allo 0510366602!
Proponiamo in vendita splendida porzione di casa, ideale per chi desidera ambienti generosi e la tranquillità di una soluzione semi-indipendente.
Piano terra:
L’ingresso si apre su un ampio e luminoso soggiorno, cucina abitabile e a completare il livello una comoda zona lavanderia e un primo bagno finestrato con box doccia.
Piano primo:
Salendo troviamo una seconda zona living, ideale come salotto relax o area studio, con affaccio su un bellissimo terrazzo. La zona notte è composta da tre camere da letto, un pratico ripostiglio e un secondo bagno finestrato con box doccia.
Spazi esterni e comfort
La proprietà è valorizzata da un giardino privato con esposizione su due lati, un’ampia autorimessa e posti auto.
Possibilità di creare anche soluzione genitori-figli con doppio ingresso.
Una soluzione versatile, perfetta per famiglie o per chi desidera ambienti ampi e ben distribuiti, senza rinunciare alla comodità dei servizi.
Contattaci per maggiori informazioni o per prenotare una visita allo 0510366602!
Dati principali
| Riferimento | 61180289 |
| Data annuncio | 19/02/2026 |
| Contratto | Vendita |
| Tipologia | Casa semi indipendente |
| Superficie | 164 m2 |
| Locali | 5 (3 camere da letto, 2 altro), 2 bagni |
| Piano | 1 di 3 totali |
| Numero posti auto | 1 |
Costi
| Prezzo | 360.000 € |
| Prezzo al m2 | 2.195 €/m2 |
| Spese condominiali | € 33,00/mese |
Efficienza energetica
| Anno costruzione | 2008 |
| Riscaldamento | Autonomo |
| Tipo Alimentazione Riscaldamento | Metano |
| Classe energetica | D |
| Indice di prestazione energetica (EP GL, REN) | 106.53 kWh/m3 anno |
| Indice di prestazione energetica (EP GL, NREN) | 106.53 kWh/m3 anno |
Planimetrie
Video
Indirizzo e mappa
Via Castelletto, San Giovanni in Persiceto
Calcolo mutuo
Prezzo di vendita:
Anticipo
20,00
Mutuo
80,00
Tasso: -+
Rata: 1.030 al mese
I risultati sono una stima indicativa basata sui dati inseriti e non costituiscono un’offerta finanziaria.
Inserzionista
Chiama
CONTATTA

