Quadrilocale Castellarano
€ 345.000
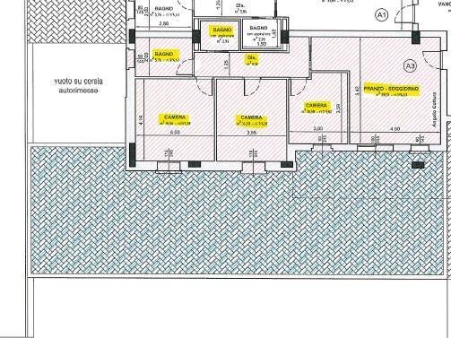
NUOVO APPARTAMENTO CON GIARDINO - TRESSANO DI CASTELLARANO In una splendida e recente zona residenziale, tranquilla ma comodissima a tutti i principali servizi come farmacia, scuole, palestra, parco pubblico e supermercati, proponiamo appartamento di nuova costruzione posto al piano terra, inserito in una palazzina residenziale moderna e curata. Labitazione è composta da un ampio e luminoso soggiorno con angolo cottura, due bagni, disimpegno e tre camere matrimoniali, spazi pensati per garantire comfort e funzionalità a tutta la famiglia. Completa la proprietà un giardino privato, ideale per momenti di relax allaperto o per chi desidera uno spazio verde esclusivo. A servizio dellimmobile è presente anche una autorimessa, che aggiunge praticità e comodità alla soluzione abitativa. La consegna è prevista indicativamente per fine aprile 2026 ed è prevista la possibilità di personalizzare alcune finiture, per adattare limmobile ai propri gusti e alle proprie esigenze. Una soluzione moderna e di qualità, perfetta per chi cerca unabitazione nuova, con spazi generosi e area esterna privata, in un contesto residenziale tranquillo ma vicino a tutti i servizi.
Dati principali
| Riferimento | 6455/A3 |
| Data annuncio | 19/02/2026 |
| Contratto | Vendita |
| Tipologia | Appartamento |
| Superficie | 148 m2 |
| Locali | 4 (3 camere da letto, 1 altro), 2 bagni, cucina angolo cottura |
| Piano | Terra, 3 totali |
| Tipo di costruzione | Media |
| Occupato | Libero |
| Box auto | Singolo |
Caratteristiche
Costi
| Prezzo | 345.000 € |
| Prezzo al m2 | 2.331 €/m2 |
Efficienza energetica
| Riscaldamento | Semi-autonomo |
| Tipo Impianto Di Riscaldamento | a pavimento |
| Classe energetica | A4 |
Planimetrie
Indirizzo e mappa
Castellarano
Annuncio senza mappa,
prova a chiedere la posizione all'inserzionista
prova a chiedere la posizione all'inserzionista
Calcolo mutuo
Prezzo di vendita:
Anticipo
20,00
Mutuo
80,00
Tasso: -+
Rata: 987 al mese
I risultati sono una stima indicativa basata sui dati inseriti e non costituiscono un’offerta finanziaria.
Inserzionista

Agenzia immobiliare Habitat
Viale San Lorenzo, 2, Sassuolo
Mostra Telefono
Mostra Cellulare
Habitat Sassuolo
Mostra Telefono
Chiama
CONTATTA