Appartamento Strada Del Mondino, Castiglione Torinese
€ 289.0006 locali in vendita
NUOVO APPARTAMENTO CON ASCENSORE E TERRAZZO
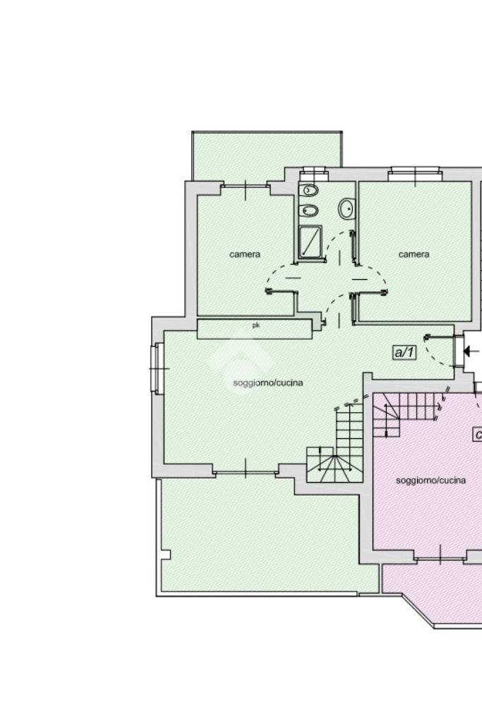
L’impresa costruttrice Peris, a conduzione familiare da oltre vent’anni, sviluppa ogni progetto partendo da uno studio accurato finalizzato a ridurre le dispersioni di calore ed eliminare i ponti termici. In fase di progettazione viene inoltre adottato come riferimento il protocollo ITACA, un sistema riconosciuto per la valutazione della sostenibilità ambientale degli è realizzare immobili ad alta efficienza energetica, capaci di garantire un elevato comfort termico e abitativo. Questo risultato viene raggiunto non solo attraverso la scelta di materiali performanti, ma soprattutto grazie a un’attenta cura nella posa e nella realizzazione dei dettagli costruttivi, in particolare nei punti di connessione tra i diversi Progetto nasce con l’intento di andare oltre gli attuali requisiti normativi regionali e nazionali, proponendo abitazioni eco-sostenibili con eccezionali risultati in termini di efficienza e risparmio energetico. Rappresenta una proposta innovativa per il territorio, capace di coniugare comfort abitativo e qualità costruttiva, con un significativo risparmio nei consumi e una sensibile riduzione dell’impatto ambientale, in particolare delle emissioni di palazzina, composta da sole cinque unità abitative e dotata di ascensore e impianto fotovoltaico, sorge all’interno di un nuovo quartiere pre-collinare, in una posizione esclusiva, soleggiata e particolarmente di circa 175 mq e disposto su due livelli, è progettato per valorizzare al meglio gli spazi e la luce naturale. L’ingresso si apre direttamente sull’ampio soggiorno, luminoso e affacciato su una terrazza di circa 22 mq ideale come soggiorno estivo. La cucina è abitabile e dispone di un comodo balcone, mentre sullo stesso piano si trova anche una camera da letto. Completa il livello un bagno piano superiore, caratterizzato da un’altezza al colmo di circa 3,30 metri, offre spazi ampi e versatili e può essere suddiviso in tre locali, oltre a un secondo bagno degli aspetti più interessanti è la possibilità di personalizzare la scelta delle finiture e creare una casa davvero su comfort abitativo è assicurato da impianti di ultima generazione: ogni unità sarà dotata di riscaldamento autonomo con pompa di calore, in grado di garantire ambienti salubri, consumi contenuti e un concreto risparmio energetico. È inoltre prevista la predisposizione per l’installazione della Ventilazione Meccanica Controllata, per una qualità dell’aria ancora più completare la proprietà, vi è la possibilità di acquistare un box auto doppio al piano interrato al prezzo di € 28.000, con il vantaggio di una detrazione fiscale del 50% sul costo di costruzione sarà realizzato con tecnologie costruttive avanzate: cappotto termico in Neopor da 14 cm, isolamento acustico, serramenti con vetri a bassa emissione e soluzioni studiate per limitare al massimo le dispersioni di calore. Anche la copertura sarà altamente performante, con lana di vetro superbac, microventilazione e barriera al a queste caratteristiche, l’immobile raggiungerà la classe energetica A4, sinonimo di massimo comfort, bassi costi di gestione e ridotto impatto ambientale.
L’impresa costruttrice Peris, a conduzione familiare da oltre vent’anni, sviluppa ogni progetto partendo da uno studio accurato finalizzato a ridurre le dispersioni di calore ed eliminare i ponti termici. In fase di progettazione viene inoltre adottato come riferimento il protocollo ITACA, un sistema riconosciuto per la valutazione della sostenibilità ambientale degli è realizzare immobili ad alta efficienza energetica, capaci di garantire un elevato comfort termico e abitativo. Questo risultato viene raggiunto non solo attraverso la scelta di materiali performanti, ma soprattutto grazie a un’attenta cura nella posa e nella realizzazione dei dettagli costruttivi, in particolare nei punti di connessione tra i diversi Progetto nasce con l’intento di andare oltre gli attuali requisiti normativi regionali e nazionali, proponendo abitazioni eco-sostenibili con eccezionali risultati in termini di efficienza e risparmio energetico. Rappresenta una proposta innovativa per il territorio, capace di coniugare comfort abitativo e qualità costruttiva, con un significativo risparmio nei consumi e una sensibile riduzione dell’impatto ambientale, in particolare delle emissioni di palazzina, composta da sole cinque unità abitative e dotata di ascensore e impianto fotovoltaico, sorge all’interno di un nuovo quartiere pre-collinare, in una posizione esclusiva, soleggiata e particolarmente di circa 175 mq e disposto su due livelli, è progettato per valorizzare al meglio gli spazi e la luce naturale. L’ingresso si apre direttamente sull’ampio soggiorno, luminoso e affacciato su una terrazza di circa 22 mq ideale come soggiorno estivo. La cucina è abitabile e dispone di un comodo balcone, mentre sullo stesso piano si trova anche una camera da letto. Completa il livello un bagno piano superiore, caratterizzato da un’altezza al colmo di circa 3,30 metri, offre spazi ampi e versatili e può essere suddiviso in tre locali, oltre a un secondo bagno degli aspetti più interessanti è la possibilità di personalizzare la scelta delle finiture e creare una casa davvero su comfort abitativo è assicurato da impianti di ultima generazione: ogni unità sarà dotata di riscaldamento autonomo con pompa di calore, in grado di garantire ambienti salubri, consumi contenuti e un concreto risparmio energetico. È inoltre prevista la predisposizione per l’installazione della Ventilazione Meccanica Controllata, per una qualità dell’aria ancora più completare la proprietà, vi è la possibilità di acquistare un box auto doppio al piano interrato al prezzo di € 28.000, con il vantaggio di una detrazione fiscale del 50% sul costo di costruzione sarà realizzato con tecnologie costruttive avanzate: cappotto termico in Neopor da 14 cm, isolamento acustico, serramenti con vetri a bassa emissione e soluzioni studiate per limitare al massimo le dispersioni di calore. Anche la copertura sarà altamente performante, con lana di vetro superbac, microventilazione e barriera al a queste caratteristiche, l’immobile raggiungerà la classe energetica A4, sinonimo di massimo comfort, bassi costi di gestione e ridotto impatto ambientale.
Dati principali
| Riferimento | 61179533 |
| Data annuncio | 18/02/2026 |
| Contratto | Vendita |
| Tipologia | Appartamento |
| Superficie | 175 m2 |
| Locali | più di 5 (4 camere da letto, 2 altro), 2 bagni |
| Piano | 1 di 2 totali |
| Numero posti auto | 2 |
Costi
| Prezzo | 289.000 € |
| Prezzo al m2 | 1.651 €/m2 |
| Spese condominiali | € 50,00/mese |
Efficienza energetica
| Anno costruzione | 2026 |
| Riscaldamento | Autonomo |
| Classe energetica | A4 |
| Indice di prestazione energetica (EP GL, REN) | 0.4 kWh/m3 anno |
| Indice di prestazione energetica (EP GL, NREN) | 0.6 kWh/m3 anno |
Planimetrie
Video
Indirizzo e mappa
Strada Del Mondino, Castiglione Torinese
Calcolo mutuo
Prezzo di vendita:
Anticipo
20,00
Mutuo
80,00
Tasso: -+
Rata: 827 al mese
I risultati sono una stima indicativa basata sui dati inseriti e non costituiscono un’offerta finanziaria.
Inserzionista
Chiama
CONTATTA

