Villa all'asta Passo Canova di Fontanegli 14, Genova (zona Struppa)
€ 123.178Indipendente - Villa a Genova
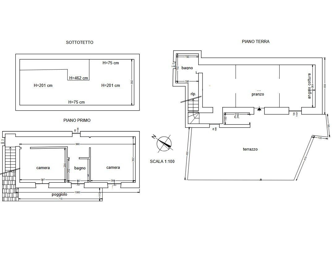
Piena proprietà di fabbricato di recente ristrutturazione, costituito da una abitazione indipendente, sita nel Comune di Genova, Passo Canova di Fontanegli, civico numero 14, superficie convenzionale di mq. 142,66, composta: al piano terra da un locale unico con funzioni di angolo cottura e sala da pranzo, servizio igienico, ripostiglio nel sottoscala, disimpegno scala di collegamento al piano superiore, centrale termica e terrazzo; al piano primo da scala di collegamento, disimpegno, corridoio, due camere, servizio igienico e poggiolo; al piano sottotetto, non abitabile, da un locale unico con altezze variabili tra 75 centimetri e 201 centimetri. - Il Prezzo visualizzato è la Base d'Asta in quanto l’immobile è oggetto di esecuzione immobiliare venduto tramite Asta Giudiziaria. - L'immobile aggiudicato, viene venduto libero e sgombro da persone cose ed ipoteche nello stato di fatto e di diritto in cui si trova. - Non rappresentiamo il Tribunale, ma lavoriamo nell'esclusivo interesse del potenziale acquirente per garantire un acquisto sicuro. - I consulenti di ASTE ITALIA ti assisteranno in tutte le attività dell'iter giudiziario dalla visita dell'immobile fino alla consegna chiavi. - Contatta il nostro Servizio Clienti , i nostri operatori sono a disposizione per chiarire i molteplici dubbi per partecipare alle ASTE.
Dati principali
| Riferimento | GE539/24LU-0705-26-1430 |
| Data annuncio | 17/02/2026 |
| Contratto | Vendita |
| Tipologia | Villa |
| Superficie | 143 m2 |
| Locali | 5 (2 camere da letto, 3 altro), 2 bagni |
| Piano | 3 totali |
| Numero di terrazzi | 1 |
| Numero di balconi | 1 |
Costi
| Offerta minima | € 123.178 |
| Prezzo al m2 | 861 €/m2 |
Efficienza energetica
| Classe energetica | A+ |
| Indice di prestazione energetica (IPE) | - |
Planimetrie
Indirizzo e mappa
Passo Canova di Fontanegli 14, Genova - quartiere Struppa
Calcolo mutuo
Prezzo di vendita:
Anticipo
20,00
Mutuo
80,00
Tasso: -+
Rata: 352 al mese
I risultati sono una stima indicativa basata sui dati inseriti e non costituiscono un’offerta finanziaria.
Inserzionista

DOMY ONLINE S.R.L.
Via San Lorenzo 5 Int. 41, Genova
Mostra Telefono
Mostra Cellulare
Chiama
CONTATTA

