Villa Via Colombetto, Nichelino
€ 256.000Bifamiliare in vendita
Nel comune di Nichelino, nella tranquilla località di Giusti, è disponibile una spaziosa bifamiliare in vendita. Questa proprietà signorile, costruita nel 1970, si estende su una superficie di 200 mq distribuiti su più livelli, offrendo ampi spazi per ogni esigenza abitativa.
La casa è disposta su due piani:
PT: alloggio bilocale di 70mq, composto da un ampio ingresso, camera matrimoniale, soggiorno con cucina a vista, bagno, ripostiglio ed un ulteriore locale deposito.
1P: ampio ingresso che disimpegna perfettamente le stanze, salotto dotato del primo terrazzo, camera da letto, cameretta, doppi servizi, cucina con annesso terrazzo di 45mq e ripostiglio.
Un'ampia scala padronale divide internamente i due alloggi, soluzione perfetta per chi cerca due alloggi separati o anche un'unica villa unifamiliare.
Compresi nel prezzo 3 box auto singoli.
La casa è disposta su due piani:
PT: alloggio bilocale di 70mq, composto da un ampio ingresso, camera matrimoniale, soggiorno con cucina a vista, bagno, ripostiglio ed un ulteriore locale deposito.
1P: ampio ingresso che disimpegna perfettamente le stanze, salotto dotato del primo terrazzo, camera da letto, cameretta, doppi servizi, cucina con annesso terrazzo di 45mq e ripostiglio.
Un'ampia scala padronale divide internamente i due alloggi, soluzione perfetta per chi cerca due alloggi separati o anche un'unica villa unifamiliare.
Compresi nel prezzo 3 box auto singoli.
Dati principali
| Riferimento | 61176742 |
| Data annuncio | 17/02/2026 |
| Contratto | Vendita |
| Tipologia | Villa |
| Superficie | 200 m2 |
| Locali | più di 5 (3 camere da letto, 4 altro), 3 bagni |
| Piano | 1 totali |
Costi
| Prezzo | 256.000 € |
| Prezzo al m2 | 1.280 €/m2 |
Efficienza energetica
| Anno costruzione | 1970 |
| Riscaldamento | Autonomo |
| Tipo Alimentazione Riscaldamento | Metano |
| Classe energetica | F |
| Indice di prestazione energetica (EP GL, REN) | 1.41 kWh/m3 anno |
| Indice di prestazione energetica (EP GL, NREN) | 221.45 kWh/m3 anno |
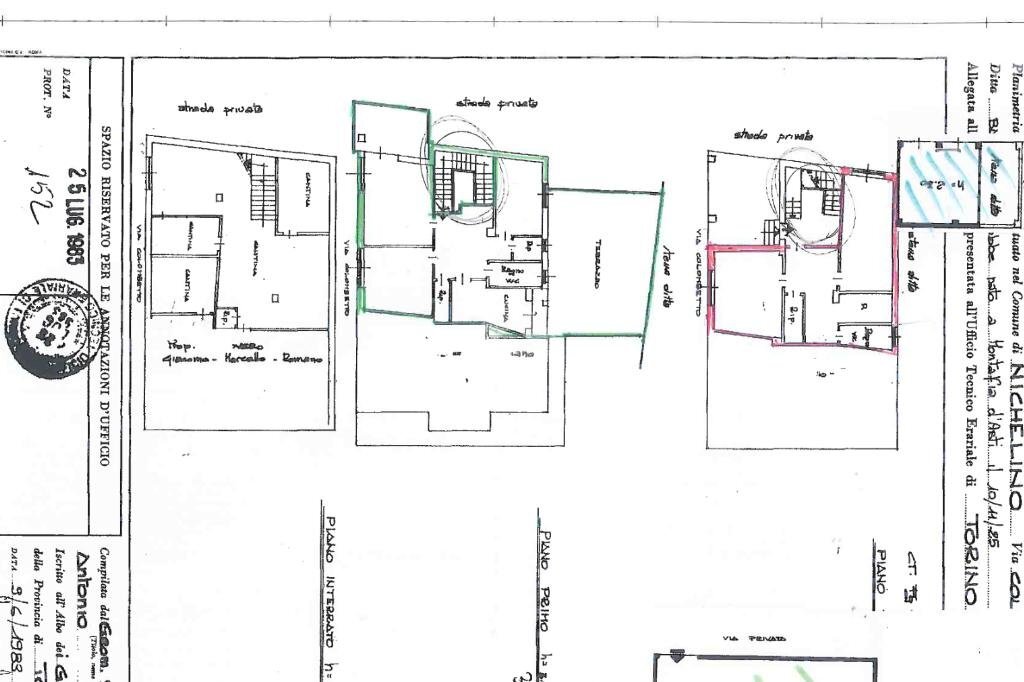
Planimetrie
Indirizzo e mappa
Via Colombetto, Nichelino
Calcolo mutuo
Prezzo di vendita:
Anticipo
20,00
Mutuo
80,00
Tasso: -+
Rata: 732 al mese
I risultati sono una stima indicativa basata sui dati inseriti e non costituiscono un’offerta finanziaria.
Inserzionista
Agenzia Tecnocasa Studio Gen Sas
Via Torino, 194, Nichelino
Mostra Telefono
Chiama
CONTATTA

