Trilocale via don minzoni, Monopoli
€ 485.000Appartamento - Trilocale a Monopoli
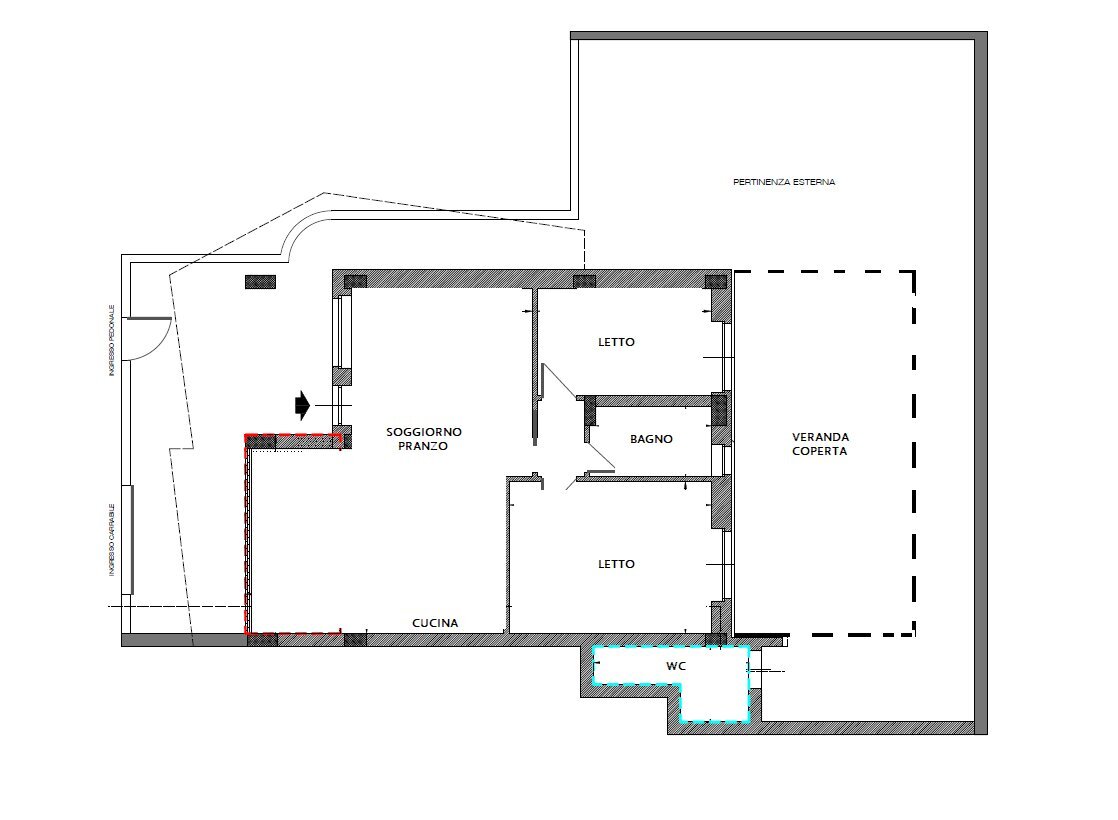
Zona semicentrale, nei pressi della parrocchia di «S.Anna», proponiamo bellissimo appartamento con ingresso indipendente facente parte di un complesso condominiale di recente edificazione. L’appartamento posto al piano terra, è composto da ingresso pedonale e carrabile attraverso cancello automatico in ampia veranda. Generosa zona living con elegante termo camino a gas elettrico, isola e cucina a vista con piano ad induzione. Tramite un pratico disimpegno si accede alla zona notte composta da vano letto matrimoniale con bagno in camera a scomparsa e armadio incassato, secondo bagno ed ulteriore vano letto. Tramite la zona notte si ha accesso ad un’altra grande pertinenza esterna di proprietà dove c’è il fiore all’occhiello di questo immobile: bellissimo gazebo con chiusura automatizzata e vetrate termiche panoramiche, con ulteriore cucina e zona living. L’appartamento è caratterizzato da rifiniture di pregio, inoltre è munito di riscaldamento a pavimento e aria condizionata caldo/freddo canalizzata. Completa la proprietà un pratico vano lavanderia posto nella veranda, ultimo non per importanza il box auto posto al piano seminterrato di 27 mq. L’immobile è in perfetto stato di manutenzione e viene venduto completo di arredo
Dati principali
| Riferimento | 581 |
| Data annuncio | 16/02/2026 |
| Contratto | Vendita |
| Tipologia | Appartamento |
| Superficie | 85 m2 |
| Locali | 3 (3 altro), 1 bagno |
| Piano | 1 totali |
| Numero posti auto | 1 |
| Arredamento | Completo |
Costi
| Prezzo | 485.000 € |
| Prezzo al m2 | 5.706 €/m2 |
Efficienza energetica
| Classe energetica | Immobile esente da certificazione energetica |
Planimetrie
Indirizzo e mappa
via don minzoni, Monopoli
Calcolo mutuo
Prezzo di vendita:
Anticipo
20,00
Mutuo
80,00
Tasso: -+
Rata: 1.387 al mese
I risultati sono una stima indicativa basata sui dati inseriti e non costituiscono un’offerta finanziaria.
Inserzionista
Casa Bianca S.r.l.
Via U. Rattazzi, 35, Monopoli
Mostra Telefono
Chiama
CONTATTA

