Trilocale Via Righi, Novara
€ 189.000Trilocale in vendita
SAN MARTINO: In una delle zone più belle e ricercate della città, proponiamo in vendita un elegante trilocale, una soluzione unica per chi desidera ambienti spaziosi, luminosità e ampi sfoghi esterni da vivere in ogni stagione.
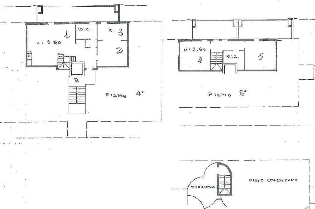
L’appartamento è composto da ingresso con comodo disimpegno che conduce a un ampio soggiorno, luminoso e arioso, a una cucina abitabile con zona pranzo ben definita e a un bagno con vasca e antibagno. Tutti gli ambienti hanno accesso diretto allo stesso grande terrazzo, che serve l’intero livello e crea una piacevole continuità tra interno ed esterno, rendendo ogni spazio ancora più vivibile.
La generosa metratura offre inoltre la possibilità, con eventuali interventi di personalizzazione, di ricavare una stanza aggiuntiva, adattando l’immobile alle proprie esigenze.
Tramite una scala interna si accede al piano superiore dove si sviluppa la zona notte, composta da due camere da letto molto spaziose e da un secondo bagno finestrato con box doccia. Anche su questo livello tutte le stanze affacciano e accedono all’ampio terrazzo, riservato e perfetto come sfogo esterno a servizio delle camere.
Il vero valore aggiunto della proprietà è il magnifico terrazzo privato sul tetto, con vista panoramica: uno spazio esclusivo da personalizzare come area relax, solarium o zona conviviale.
Completano la soluzione un box auto, una cantina e, sul pianerottolo condominiale al piano sottostante l’ingresso dell’abitazione, un comodo ripostiglio di proprietà esclusiva, riservato unicamente all’appartamento e ideale per mantenere ogni ambiente sempre in ordine.
Una casa importante, luminosa e versatile, impreziosita da ampi terrazzi vivibili, situata in una delle posizioni più apprezzate di Novara.
L’appartamento è composto da ingresso con comodo disimpegno che conduce a un ampio soggiorno, luminoso e arioso, a una cucina abitabile con zona pranzo ben definita e a un bagno con vasca e antibagno. Tutti gli ambienti hanno accesso diretto allo stesso grande terrazzo, che serve l’intero livello e crea una piacevole continuità tra interno ed esterno, rendendo ogni spazio ancora più vivibile.
La generosa metratura offre inoltre la possibilità, con eventuali interventi di personalizzazione, di ricavare una stanza aggiuntiva, adattando l’immobile alle proprie esigenze.
Tramite una scala interna si accede al piano superiore dove si sviluppa la zona notte, composta da due camere da letto molto spaziose e da un secondo bagno finestrato con box doccia. Anche su questo livello tutte le stanze affacciano e accedono all’ampio terrazzo, riservato e perfetto come sfogo esterno a servizio delle camere.
Il vero valore aggiunto della proprietà è il magnifico terrazzo privato sul tetto, con vista panoramica: uno spazio esclusivo da personalizzare come area relax, solarium o zona conviviale.
Completano la soluzione un box auto, una cantina e, sul pianerottolo condominiale al piano sottostante l’ingresso dell’abitazione, un comodo ripostiglio di proprietà esclusiva, riservato unicamente all’appartamento e ideale per mantenere ogni ambiente sempre in ordine.
Una casa importante, luminosa e versatile, impreziosita da ampi terrazzi vivibili, situata in una delle posizioni più apprezzate di Novara.
Dati principali
| Riferimento | 61177191 |
| Data annuncio | 15/02/2026 |
| Contratto | Vendita |
| Tipologia | Appartamento |
| Superficie | 150 m2 |
| Locali | 3 (3 altro), 2 bagni |
| Piano | 3 di 4 totali |
Costi
| Prezzo | 189.000 € |
| Prezzo al m2 | 1.260 €/m2 |
| Spese condominiali | € 333,00/mese |
Efficienza energetica
| Anno costruzione | 1972 |
| Riscaldamento | Centralizzato |
| Tipo Alimentazione Riscaldamento | Metano |
| Classe energetica | Immobile esente da certificazione energetica |
Planimetrie
Indirizzo e mappa
Via Righi, Novara
Calcolo mutuo
Prezzo di vendita:
Anticipo
20,00
Mutuo
80,00
Tasso: -+
Rata: 541 al mese
I risultati sono una stima indicativa basata sui dati inseriti e non costituiscono un’offerta finanziaria.
Inserzionista
Chiama
CONTATTA

