Trilocale Via Eusebio Bava, Torino (zona Vanchiglia)
€ 195.000Trilocale in vendita
VANCHIGLIA – VIA BAVA 23/A – NUOVA REALIZZAZIONE
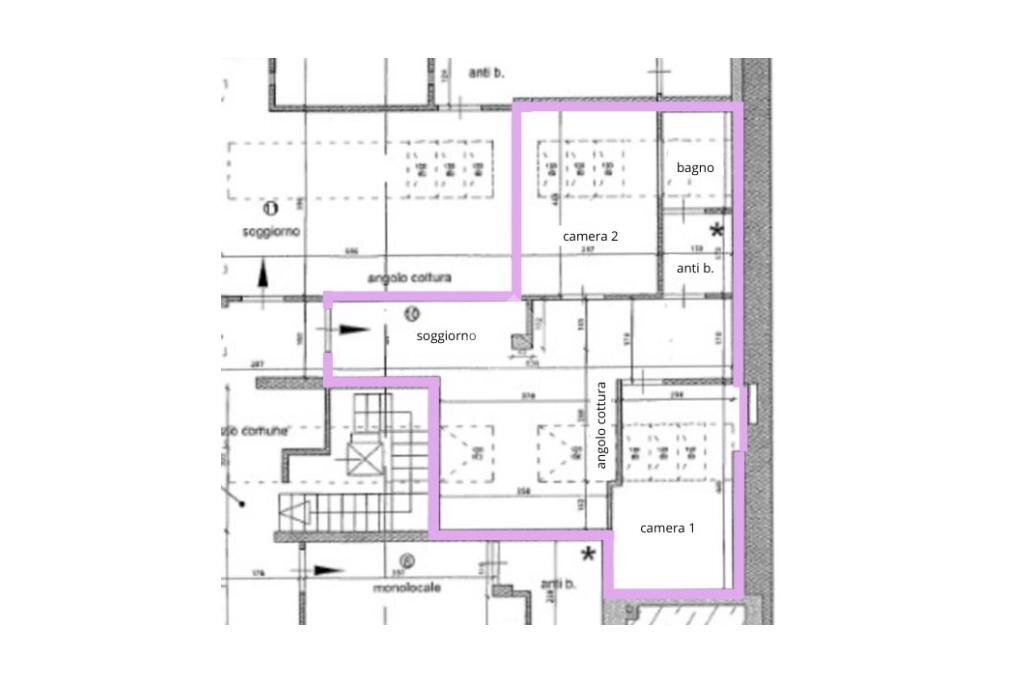
Nel cuore di Vanchiglia, a due passi dal centro di Torino e in posizione strategica per i principali poli universitari, quali Palazzo Nuovo ed il Campus Einaudi, proponiamo in vendita trilocale di 62 mq di nuova realizzazione.
L’immobile fa parte di un nuovo complesso residenziale composto da 11 unità abitative, tutte di nuova realizzazione e disponibili in diverse metrature. Soluzione ideale sia come prima casa sia come investimento.
Gli appartamenti saranno realizzati secondo capitolato con finiture moderne e materiali di qualità, con possibilità di personalizzazione.
Le immagini presenti sono render a scopo illustrativo e non rappresentano lo stato attuale dell’immobile.
Per info o per fissare una visita contattaci al 392.5785151.
Nel cuore di Vanchiglia, a due passi dal centro di Torino e in posizione strategica per i principali poli universitari, quali Palazzo Nuovo ed il Campus Einaudi, proponiamo in vendita trilocale di 62 mq di nuova realizzazione.
L’immobile fa parte di un nuovo complesso residenziale composto da 11 unità abitative, tutte di nuova realizzazione e disponibili in diverse metrature. Soluzione ideale sia come prima casa sia come investimento.
Gli appartamenti saranno realizzati secondo capitolato con finiture moderne e materiali di qualità, con possibilità di personalizzazione.
Le immagini presenti sono render a scopo illustrativo e non rappresentano lo stato attuale dell’immobile.
Per info o per fissare una visita contattaci al 392.5785151.
Dati principali
| Riferimento | 61170802 |
| Data annuncio | 15/02/2026 |
| Contratto | Vendita |
| Tipologia | Appartamento |
| Superficie | 62 m2 |
| Locali | 3 (3 altro), 1 bagno |
| Piano | 1 di 2 totali |
Costi
| Prezzo | 195.000 € |
| Prezzo al m2 | 3.145 €/m2 |
Efficienza energetica
| Anno costruzione | 2000 |
| Riscaldamento | Centralizzato |
| Classe energetica | B |
| Indice di prestazione energetica (IPE) | - |
Planimetrie
Video
Indirizzo e mappa
Via Eusebio Bava, Torino - quartiere Vanchiglia
Calcolo mutuo
Prezzo di vendita:
Anticipo
20,00
Mutuo
80,00
Tasso: -+
Rata: 558 al mese
I risultati sono una stima indicativa basata sui dati inseriti e non costituiscono un’offerta finanziaria.
Inserzionista
Chiama
CONTATTA

