Rustico Borgata Reinero, Marmora
Trattativa riservataMARMORA BORGATA REINERO, casa indipendente con giardino
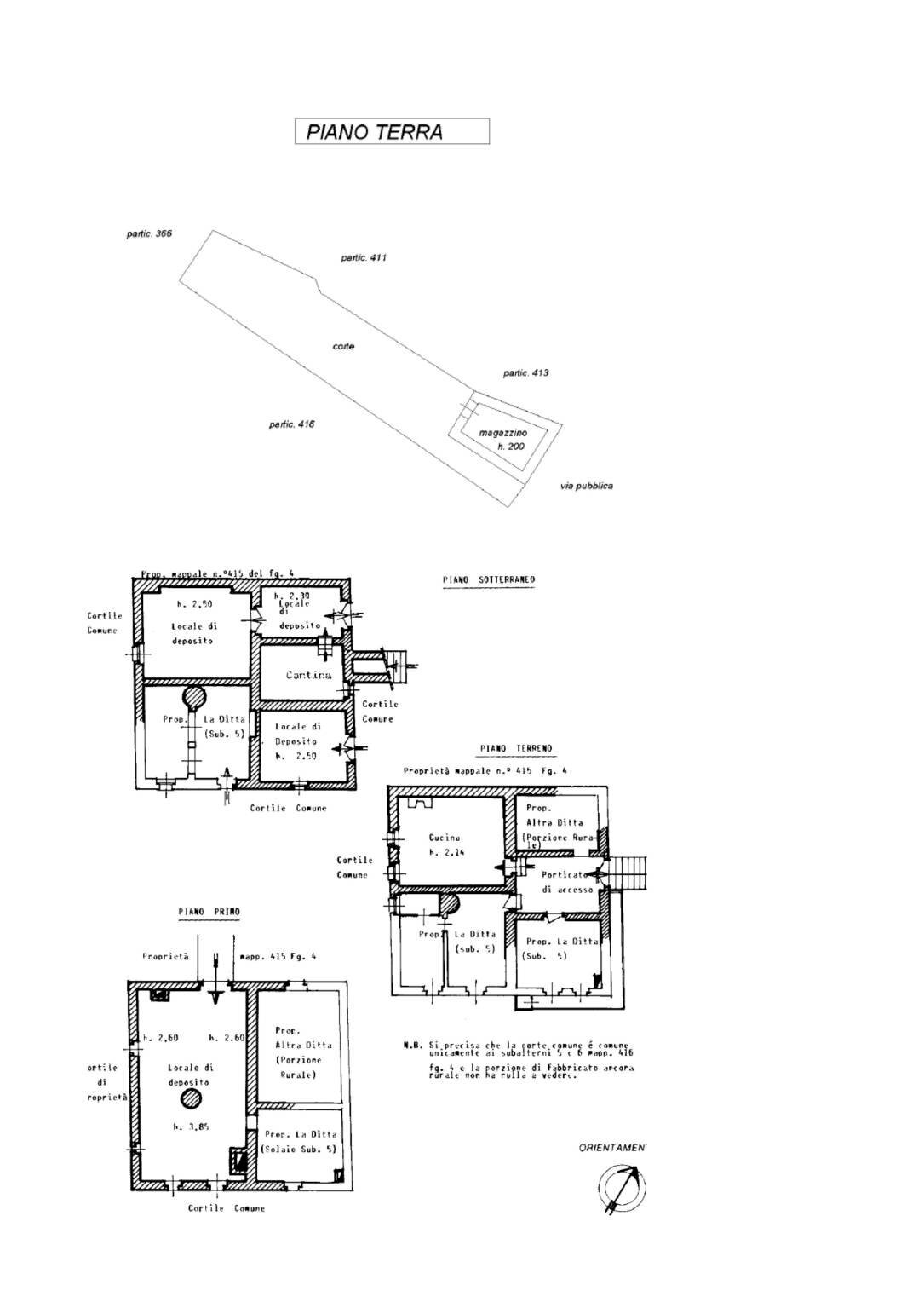
Ci troviamo in una della borgate più belle e più caratteristiche della valle Maira, qui abbiamo ritirato un grande caseggiato indipendente con sfogo esterno. ll fabbricato è disposto su tre livelli, al piano sotterraneo troviamo una cantina e cinque locali deposito; al piano terreno un porticato d'ingresso coperto, una cucina, quattro locali deposito e un magazzino; al piano primo tre locali deposito. A completare il tutto un giardino esterno di proprietà. La posizione di questa casa è favolosa, in quando è in una posizione aperta dove davanti non ci sono altri immobili da coprirne la vista. L'immobile si presenta da ristrutturare, i proprietari avevano però rifatto fare il tetto circa una decina di anni fa. Questa soluzione è ideale per due/tre famiglie di amici o parenti che desiderano crearsi la loro casetta in mezzo alla natura.
Dati principali
| Riferimento | PC V/BA4 |
| Data annuncio | 11/01/2024 |
| Contratto | Vendita |
| Tipologia | Rustico |
| Superficie | 400 m2 |
| Locali | cucina abitabile |
| Arredamento | Assente |
Caratteristiche
Costi
| Prezzo | Trattativa riservata |
Efficienza energetica
| Classe energetica | B |
| Indice di prestazione energetica (IPE) | 153.25 kWh/m2 anno |
Planimetrie
Indirizzo e mappa
Borgata Reinero, Marmora
Inserzionista

Punto Casa Immobiliare
via umberto I 29, Busca
Mostra Telefono
Chiama
CONTATTA

