Quadrilocale via Libolla, Ravenna (zona Porto Corsini)
€ 165.000PORTO CORSINI, Appartamento con terrazzo e mansarda
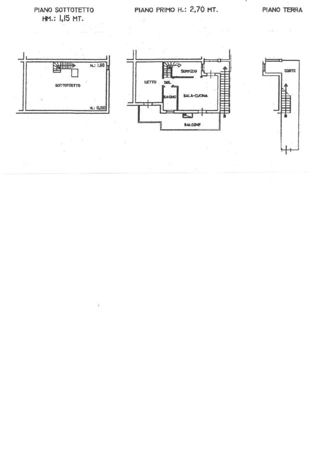
PORTO CORSINI, Porzione di immobile posta al piano primo e sottotetto con ingresso indipendente e corte, oltre a loggia per deposito biciclette, precisamente un appartamento composto da: ingresso a loggia con cancelletto anti intrusione, soggiorno con angolo cottura, ampia camera da letto matrimoniale, un vano studio finestrato, bagno, terrazzo esterno vivibile con camino e tende parasole; al piano secondo/sottotetto spaziosa mansarda con accesso da scala interna in muratura. L'abitazione è completa di arredi, è dotata di riscaldamento autonomo, aria condizionata, zanzariere e posto auto. Ideale sia come residenza sia come casa vacanza. €. 165.000,00
Dati principali
| Riferimento | ID2976541 |
| Data annuncio | 13/02/2026 |
| Contratto | Vendita |
| Tipologia | Appartamento |
| Superficie | 89 m2 |
| Locali | 4 (2 camere da letto, 2 altro), 1 bagno, cucina a vista |
| Piano | 2 totali |
| Tipo di costruzione | Media |
| Numero di terrazzi | 1 |
| Numero di balconi | 1 |
| Numero posti auto | 1 |
| Arredamento | Completo |
Caratteristiche
Costi
| Prezzo | 165.000 € |
| Prezzo al m2 | 1.854 €/m2 |
| Spese condominiali | € 22,00/mese |
Efficienza energetica
| Anno costruzione | 2004 |
| Stato | Buono |
| Riscaldamento | Autonomo |
| Classe energetica | Immobile esente da certificazione energetica |
Planimetrie
Indirizzo e mappa
via Libolla, Ravenna - quartiere Porto Corsini
Calcolo mutuo
Prezzo di vendita:
Anticipo
20,00
Mutuo
80,00
Tasso: -+
Rata: 472 al mese
I risultati sono una stima indicativa basata sui dati inseriti e non costituiscono un’offerta finanziaria.
Inserzionista
Chiama
CONTATTA


