Ufficio Via Divisione Acqui 104/a, Brescia
€ 450.000Ufficio - 2 vani a Brescia
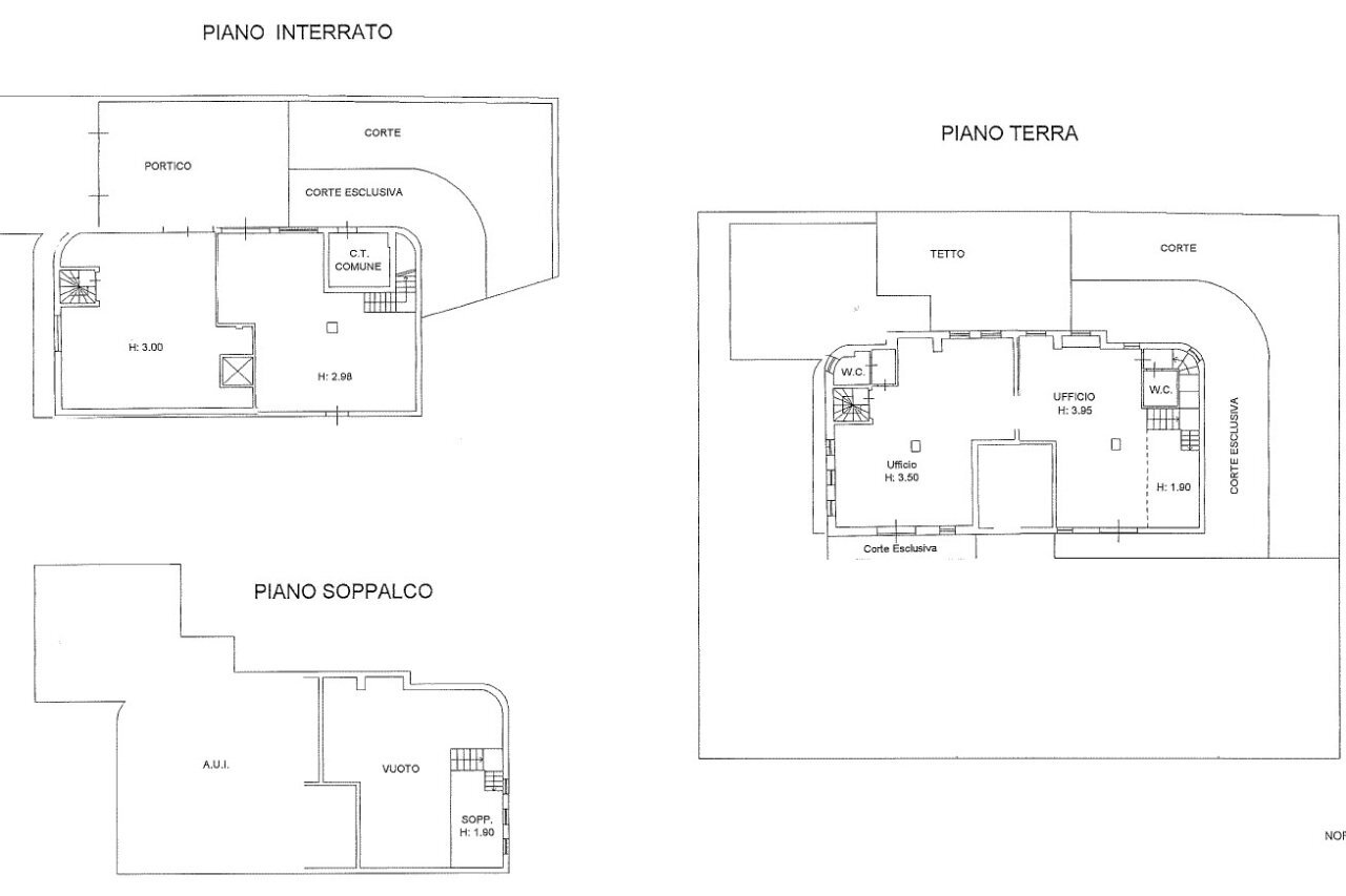
Brescia in quartiere Primo Maggio e più precisamente in Via Divisione Acqui, proponiamo in piccolo complesso, uffici con magazzini. La soluzione attualmente è composta: -al piano terra da due uffici open space di circa 170 mq totali collegati tra loro, con doppio ingresso, due bagni ed un grazioso soppalco di circa 19 mq; - al piano interrato, collegato al piano terra tramite scale interne, troviamo due magazzini open space con altezza interna di 3 mt I magazzini sono inoltre accessibili tramite un passo carraio indipendente, ad una zona coperta da tettoia (ulteriore spazio per ricovero mezzi) ed a due garage singoli, che completano la proprietà. Il tutto viene alimentato da una centrale termica a gas e riscaldata tramite fancoil.
Dati principali
| Riferimento | 65 |
| Data annuncio | 14/01/2026 |
| Contratto | Vendita |
| Tipologia | Ufficio |
| Superficie | 336 m2 |
| Locali | 2 (2 altro), 2 bagni |
| Piano | 1 totali |
| Numero posti auto | 1 |
Costi
| Prezzo | 450.000 € |
| Prezzo al m2 | 1.339 €/m2 |
Efficienza energetica
| Anno costruzione | 1980 |
| Classe energetica | C |
Planimetrie
Indirizzo e mappa
Via Divisione Acqui 104/a, Brescia
Calcolo mutuo
Prezzo di vendita:
Anticipo
20,00
Mutuo
80,00
Tasso: -+
Rata: 1.287 al mese
I risultati sono una stima indicativa basata sui dati inseriti e non costituiscono un’offerta finanziaria.
Inserzionista
Chiama
CONTATTA


