Appartamento VIALE PRIMAVERA, Genova (zona Quarto)
€ 325.000
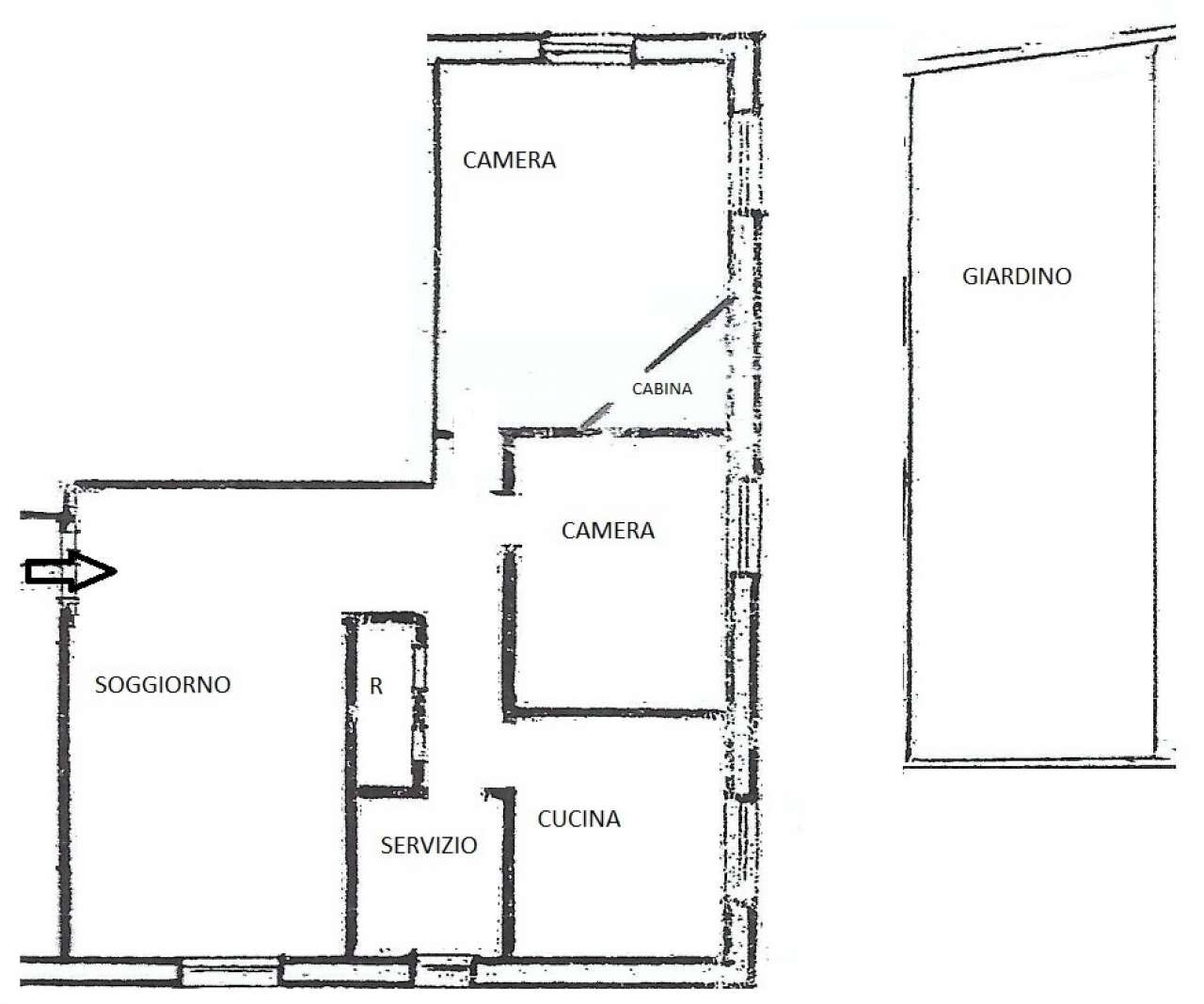
QUARTO (viale Primavera) adiacente Via Fabrizi, perfettissimi ampi 6 vani (95 mq.) composti da ingresso, grande soggiorno, cucina, DUE camere (matrimoniale con ampia cabina armadi, singola con soppalco), servizio, ripostiglio, GRANDE BOX, termo centralizzati, fascia di giardino adiacente (50 mq.), finiture accurate, soleggiati, stabile perfetto € 325.000 Telefonare Due A 010.372.30.93 orario continuato www.dueaimmobiliare.it
Dati principali
| Riferimento | PRIMAVERA |
| Data annuncio | 12/02/2026 |
| Contratto | Vendita |
| Tipologia | Appartamento |
| Superficie | 95 m2 |
| Locali | 5 (2 camere da letto, 3 altro), 1 bagno, cucina abitabile |
| Piano | 1 di 4 totali |
| Tipo di costruzione | Civile |
| Box auto | Singolo |
| Arredamento | Assente |
Caratteristiche
Costi
| Prezzo | 325.000 € |
| Prezzo al m2 | 3.421 €/m2 |
| Spese condominiali | € 200,00/mese |
Efficienza energetica
| Anno costruzione | 1955 |
| Stato | Ottimo |
| Riscaldamento | Centralizzato |
| Tipo Alimentazione Riscaldamento | Metano |
| Classe energetica | G |
| Indice di prestazione energetica (IPE) | 175 kWh/m2 anno |
Planimetrie
Indirizzo e mappa
VIALE PRIMAVERA, Genova - quartiere Quarto
Calcolo mutuo
Prezzo di vendita:
Anticipo
20,00
Mutuo
80,00
Tasso: -+
Rata: 929 al mese
I risultati sono una stima indicativa basata sui dati inseriti e non costituiscono un’offerta finanziaria.
Inserzionista

Due A Immobiliare S.A.S.
Via Murcarolo 37/R, Genova
Mostra Telefono
Chiama
CONTATTA

