Villa Contrada Concivivi, Balestrate
€ 390.000VILLA GREZZA
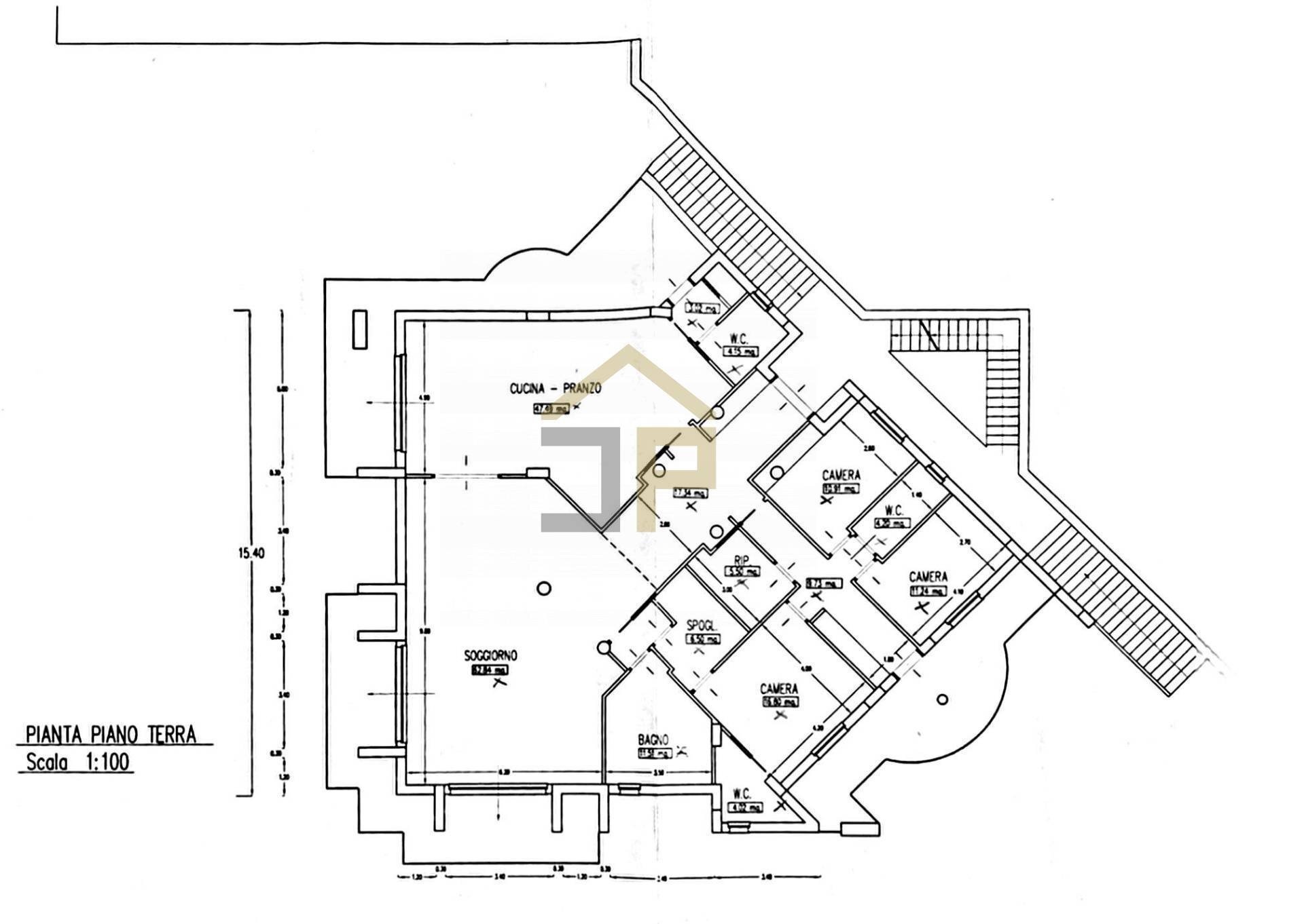
Proponiamo in vendita villa indipendente di circa 700 mq complessivi, da definire, caratterizzata da ampie volumetrie, eccellente esposizione e significativa versatilità progettuale. La proprietà si distingue per la possibilità di realizzare due unità abitative autonome, già predisposte con ingressi separati, rendendola idonea sia come residenza bifamiliare di prestigio, sia come investimento immobiliare o struttura ricettiva . Limmobile con superfici generose che consentono una ridistribuzione interna altamente flessibile, in funzione di esigenze abitative contemporanee o di un progetto personalizzato di valorizzazione. Il piano terra, per il quale sono stati avviati i lavori di distribuzione interna, prevede un ingresso su un ampio soggiorno di rappresentanza, adiacente a una cucina abitabile di generose dimensioni con bagno di servizio. Attraverso un corridoio si accede alla zona notte composta da tre camere da letto e da un bagno padronale spazioso. È inoltre presente un collegamento interno diretto con il garage, elemento che conferisce funzionalità e comfort allabitazione. Il primo piano si presenta interamente allo stato grezzo e offre la possibilità di una completa definizione degli ambienti secondo esigenze abitative o progettuali specifiche. Elemento di particolare pregio è il terrazzo panoramico con vista mare, che conferisce valore aggiunto alla proprietà e potenziale per la realizzazione di spazi outdoor di rappresentanza La proprietà è ulteriormente valorizzata da pertinenze esterne che ne ampliano funzionalità e potenzialità. Dispone di unarea parcheggio scoperta di comoda accessibilità, idonea ad accogliere più autovetture, oltre a un magazzino con tettoia esterna che offre ulteriori spazi di servizio e deposito. Completano la dotazione un pozzo privato e una cisterna di accumulo, elementi che garantiscono autonomia e praticità nella gestione delle risorse idriche. Le superfici esterne, per ampiezza e conformazione, si prestano a interventi di sistemazione paesaggistica e alla realizzazione di aree dedicate al relax, quali giardini attrezzati, zone living outdoor o eventuale piscina, contribuendo a una significativa valorizzazione complessiva dellinvestimento. La villa è ubicata in posizione strategica, a breve distanza dal centro abitato e dai principali servizi, nonché a pochi passi dalla spiaggia, raggiungibile comodamente a piedi. La combinazione tra prossimità al mare, ampia metratura e possibilità di personalizzazione rende la proprietà una soluzione di rilevante interesse per clientela privata esigente o per operatori del settore immobiliare. Soluzione ideale per chi desidera realizzare una residenza esclusiva su misura o un progetto immobiliare ad alto potenziale in contesto marino.
Dati principali
| Riferimento | BCC1 |
| Data annuncio | 13/02/2026 |
| Contratto | Vendita |
| Tipologia | Villa |
| Superficie | 700 m2 |
| Locali | 5 (3 camere da letto, 2 altro), 2 bagni, cucina abitabile |
| Piano | Su più livelli, 2 totali |
| Tipo di costruzione | Popolare |
| Occupato | Libero |
| Box auto | Triplo |
| Numero posti auto | 3 |
| Arredamento | Assente |
Caratteristiche
Costi
| Prezzo | 390.000 € |
| Prezzo al m2 | 557 €/m2 |
Efficienza energetica
| Stato | Scarso |
| Riscaldamento | Assente |
| Tipo Alimentazione Riscaldamento | Altro |
| Classe energetica | G |
| Indice di prestazione energetica (IPE) | - |
Planimetrie
Indirizzo e mappa
Contrada Concivivi, Balestrate
Calcolo mutuo
Prezzo di vendita:
Anticipo
20,00
Mutuo
80,00
Tasso: -+
Rata: 1.115 al mese
I risultati sono una stima indicativa basata sui dati inseriti e non costituiscono un’offerta finanziaria.
Inserzionista

Balestrate s.r.l.
Via Madonna del Ponte, 65, Balestrate
Mostra Telefono
Mostra Cellulare
Chiama
CONTATTA

