Quadrilocale via Moncalieri 84, Grugliasco
€ 369.000
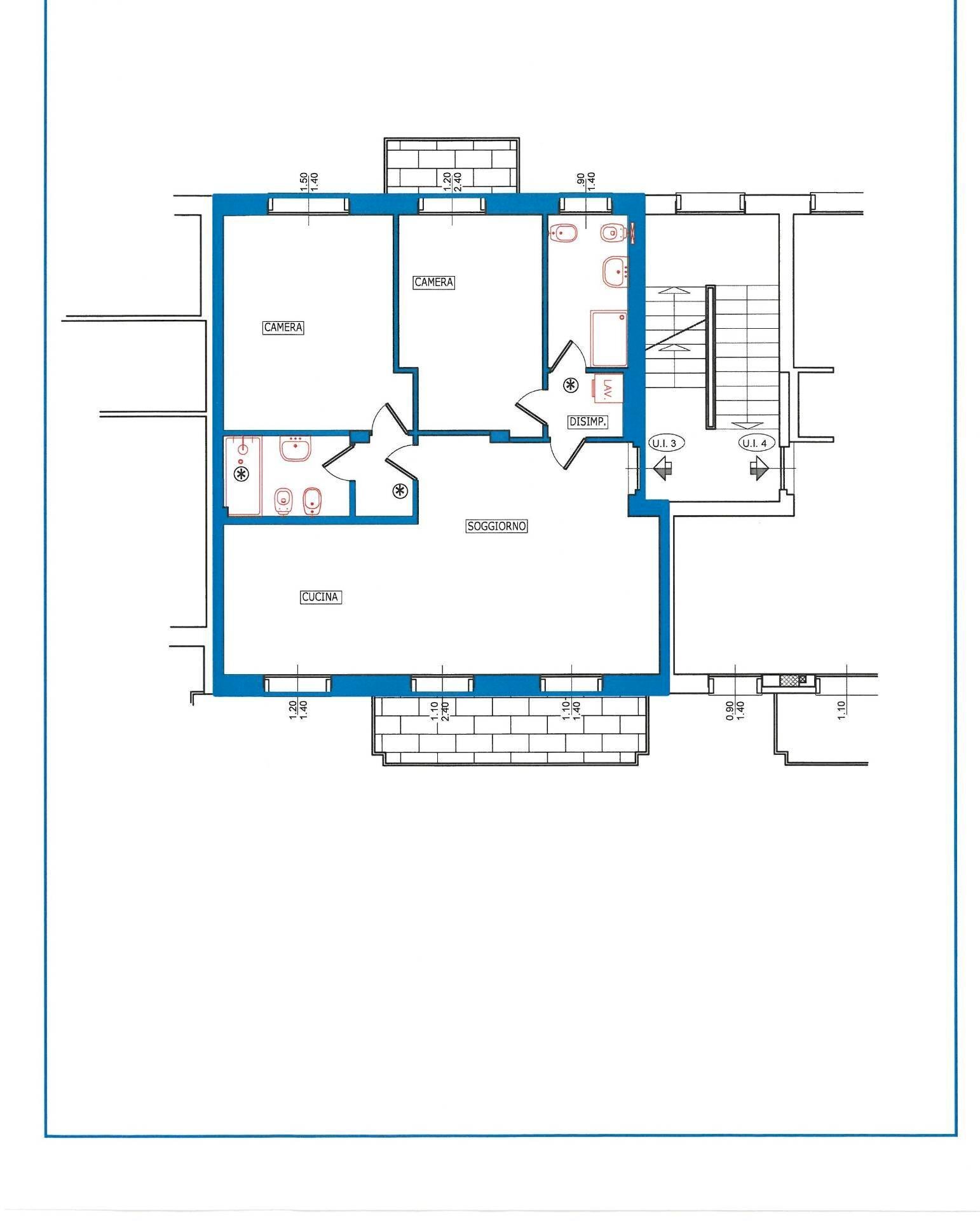
IL GIOIELLO DEL GERBIDO Nuova residenza esclusiva a due passi dal Centro Commerciale Le Gru In posizione strategica, comoda a tutti i principali servizi ma inserita in un contesto riservato e tranquillo, nasce una nuova ed elegante costruzione composta da sole 5 unità abitative, pensata per chi desidera comfort, privacy e qualità costruttiva. Il complesso sorge in posizione aperta e soleggiata, con piacevole vista sulle montagne, garantendo luminosità naturale durante tutto larco della giornata e unatmosfera abitativa di grande pregio e con spazi accessori come la possibilità di acquistare il sottotetto al piano superiore. Unita' 3 al P.1: ingresso living su soggiorno con cucina abitabile a vista ( possibilità di separarla), disimpegno con 2 camere e 2 servizi di cui uno con ventilazione forzata. Sottotetto soprastante non collegato e non abitabile di open space di 37 mq sfruttabili a tutta altezza su 80, con ampio velux, ad 30.000,00 Box Auto ad Euro 30.000 Ogni appartamento è progettato per offrire spazi funzionali e accessori esclusivi come gli impianti, di ultima generazione, per garantire il massimo efficientamento energetico e un elevato comfort abitativo. Classe Energetica A4 Soluzione ideale per chi desidera vivere in un contesto tranquillo, moderno e ben collegato ai principali servizi. Cantine in dotazione. Eventuale ulteriore Box Auto a parte ad 25.000,00. Parcheggio condominiale con 5 posti auto ad uso comune. NESSUN COSTO CONDOMINIALE (no Amministratore) POSSIBILITA' PERMUTE DETRAZIONE DEL 50% SUL COSTO DI COSTRUZIONE DEL BOX
Dati principali
| Riferimento | 913681 |
| Data annuncio | 13/02/2026 |
| Contratto | Vendita |
| Tipologia | Appartamento |
| Superficie | 122 m2 |
| Locali | 4 (2 camere da letto, 2 altro), 2 bagni, cucina a vista |
| Piano | 1 di 2 totali |
| Tipo di costruzione | Signorile |
| Occupato | Libero |
| Arredamento | Assente |
Caratteristiche
Costi
| Prezzo | 369.000 € |
| Prezzo al m2 | 3.025 €/m2 |
Efficienza energetica
| Riscaldamento | Autonomo |
| Tipo Impianto Di Riscaldamento | a pavimento |
| Tipo Alimentazione Riscaldamento | Elettrico |
| Classe energetica | A4 |
Planimetrie
Indirizzo e mappa
via Moncalieri
84, Grugliasco
Annuncio senza mappa,
prova a chiedere la posizione all'inserzionista
prova a chiedere la posizione all'inserzionista
Calcolo mutuo
Prezzo di vendita:
Anticipo
20,00
Mutuo
80,00
Tasso: -+
Rata: 1.055 al mese
I risultati sono una stima indicativa basata sui dati inseriti e non costituiscono un’offerta finanziaria.
Inserzionista

Compagnia Immobiliare Grugliasco
Viale Gramsci, 58, Grugliasco
Mostra Telefono
Chiama
CONTATTA

