Bilocale Corso Vittorio Emanuele II, Tronzano Vercellese
€ 60.000Bilocale in vendita
In palazzina recente e ben curata, all’interno dell’elegante complesso residenziale “Residenza La Corte”, proponiamo appartamento al primo piano con ingresso privato.
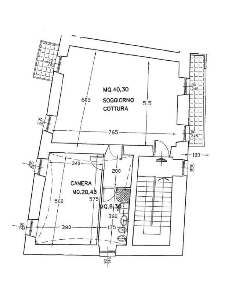
L’abitazione si apre su una luminosa zona giorno in stile open space, composta da cucina e soggiorno di ampia metratura, con affaccio su due balconi che garantiscono ottima luminosità e piacevole sfogo esterno.
Un comodo disimpegno conduce alla spaziosa camera matrimoniale e al bagno finestrato dotato di doccia.
La soluzione è inserita in un contesto tranquillo e signorile, ideale per chi desidera privacy e qualità abitativa.
Questo immobile rappresenta la scelta perfetta sia per chi è alla ricerca di un appartamento con ambienti ampi e ben distribuiti, sia per chi desidera un’ottima opportunità di investimento.
L’abitazione si apre su una luminosa zona giorno in stile open space, composta da cucina e soggiorno di ampia metratura, con affaccio su due balconi che garantiscono ottima luminosità e piacevole sfogo esterno.
Un comodo disimpegno conduce alla spaziosa camera matrimoniale e al bagno finestrato dotato di doccia.
La soluzione è inserita in un contesto tranquillo e signorile, ideale per chi desidera privacy e qualità abitativa.
Questo immobile rappresenta la scelta perfetta sia per chi è alla ricerca di un appartamento con ambienti ampi e ben distribuiti, sia per chi desidera un’ottima opportunità di investimento.
Dati principali
| Riferimento | 61156805 |
| Data annuncio | 12/02/2026 |
| Contratto | Vendita |
| Tipologia | Appartamento |
| Superficie | 73 m2 |
| Locali | 2 (2 altro), 1 bagno |
| Piano | 1 di 2 totali |
Costi
| Prezzo | 60.000 € |
| Prezzo al m2 | 822 €/m2 |
| Spese condominiali | € 125,00/mese |
Efficienza energetica
| Anno costruzione | 2010 |
| Riscaldamento | Centralizzato |
| Tipo Alimentazione Riscaldamento | Metano |
| Classe energetica | E |
| Indice di prestazione energetica (EP GL, REN) | 0.19 kWh/m3 anno |
| Indice di prestazione energetica (EP GL, NREN) | 239.23 kWh/m3 anno |
Planimetrie
Indirizzo e mappa
Corso Vittorio Emanuele II, Tronzano Vercellese
Calcolo mutuo
Prezzo di vendita:
Anticipo
20,00
Mutuo
80,00
Tasso: -+
Rata: 172 al mese
I risultati sono una stima indicativa basata sui dati inseriti e non costituiscono un’offerta finanziaria.
Inserzionista
Chiama
CONTATTA

