Negozio via Goito, 14/DE, Bologna (zona Centro Storico)
€ 6.000 al meseLOCAZIONE - Bologna - Via Goito ad.ze Via Indipendenza
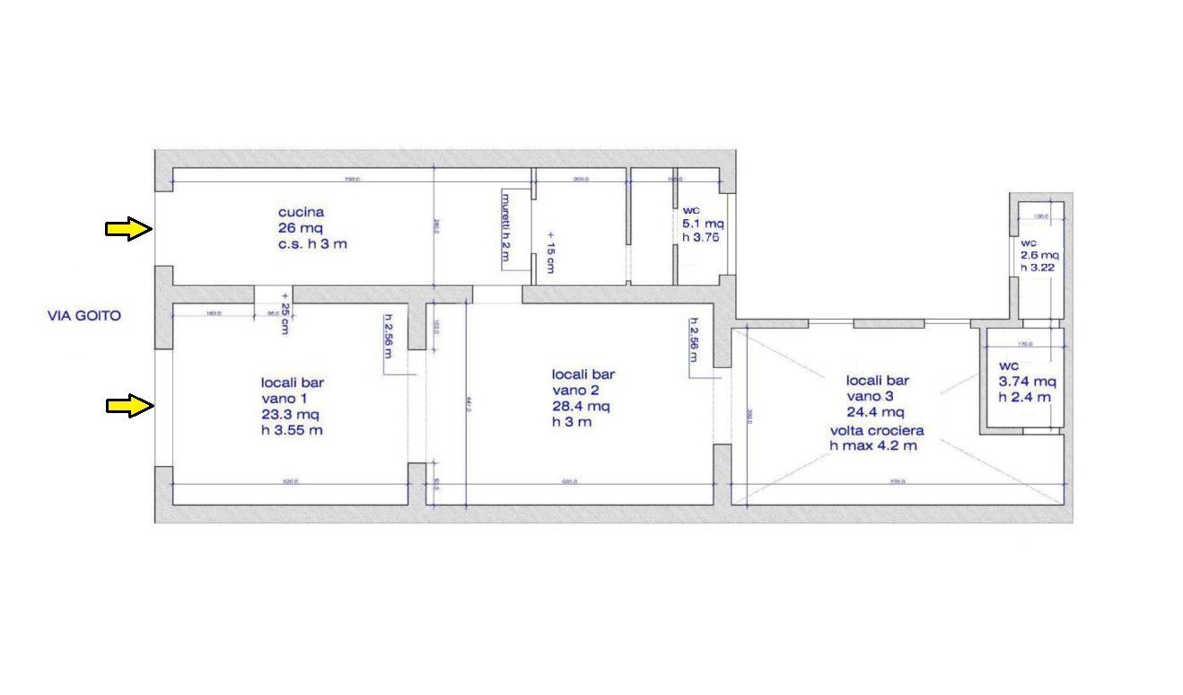
Via Goito ad.ze Via Indipendenza: locale commerciale (C/1) già adibito a PUB, in posizione invidiabile a due passi da Via Indipendenza, dotato di una vetrina su strada, composto da tre ampi vani, locale cucina con ingresso a parte, bagno per gli avventori e bagno per il personale, già accessoriato di bancone ed altri arredamenti specifici dell'attività, tutto da pulire accuratamente con risultato assicurato, libero subito. Il Locale è Classificato SUE-SUAP (confermato il 12 Febbraio 2026) come E8 per Somministrazione Bar-PUB-Ristorazione. (APE E 277)
Dati principali
| Riferimento | CSGL6.0PUB |
| Data annuncio | 10/02/2026 |
| Contratto | Affitto |
| Tipologia | Negozio |
| Superficie | 140 m2 |
| Piano | 1 totali |
| Uso immobile | Commerciale |
Costi
| Prezzo | 6.000 € al mese |
Efficienza energetica
| Riscaldamento | Autonomo |
| Classe energetica | E |
| Indice di prestazione energetica (IPE) | 277 kWh/m2 anno |
Planimetrie
Indirizzo e mappa
via Goito, 14/DE, Bologna - quartiere Centro Storico
Inserzionista
Chiama
CONTATTA


