Quadrilocale largo LEVRINO, 21, Sesto San Giovanni
€ 299.000
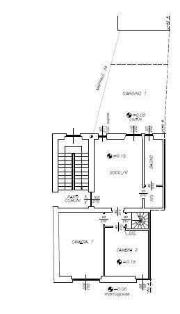
Rif 3/461 L'Abbruzzi Gruppo Immobiliare propone in Sesto San Giovanni, Largo Michele Levrino, di fronte alla futura fermata metropolitana Sesto Restellone, in zona oggetto di importante rigenerazione urbana, vendesi esclusivo appartamento luminoso e completamente ristrutturato disposto su due livelli con taverna, cortile privato ed ingresso indipendente. L'immobile è così composto: -piano terra ingresso, soggiorno con cucina a vista, due camere da letto ed un bagno; - piano seminterrato ampia taverna riscaldata ed areata grazie a bocche di lupo finestrate e locale lavanderia. Completa l'appartamento un piccolo cortile/giardino di proprietà, ideale per momenti di relax all'aria aperta. delimitato da cancellata di ferro. Condominio tranquillo anni 60 Al prezzo di Euro 305.000,00 Rifiniture: pavimentazione in gres porcellanato, serramenti in pvc con taglio termico, porta blindata, tapparelle in pvc, predisposizione aria condizionata. Un'opportunità unica per chi cerca tranquillità ed un immobile pronto per essere abitato! L'ABBRUZZI GRUPPO IMMOBILIARE di Alessandro L'Abbruzzi Via Fiorani, 119 Sesto S. Giovanni (MI) tel. 02.26265020 fax 02/24308819 [email protected] www.labbruzzi.it GESTIAMO LA VENDITA E LA LOCAZIONE DEI VOSTRI IMMOBILI COMMERCIALI, RESIDENZIALI E INDUSTRIALI! Classe Energetica: Non indicata
Dati principali
| Riferimento | 3/461 |
| Data annuncio | 04/06/2025 |
| Contratto | Vendita |
| Tipologia | Appartamento |
| Superficie | 120 m2 |
| Locali | 4 (2 camere da letto, 2 altro), 2 bagni, cucina a vista |
| Piano | 3 totali |
| Tipo di costruzione | Media |
| Box auto | Assente |
| Arredamento | Assente |
Caratteristiche
Costi
| Prezzo | 299.000 € |
| Prezzo al m2 | 2.492 €/m2 |
Efficienza energetica
| Anno costruzione | 1960 |
| Stato | Ottimo |
| Riscaldamento | Centralizzato |
| Classe energetica | Immobile esente da certificazione energetica |
Planimetrie
Indirizzo e mappa
largo LEVRINO, 21, Sesto San Giovanni
Calcolo mutuo
Prezzo di vendita:
Anticipo
20,00
Mutuo
80,00
Tasso: -+
Rata: 855 al mese
I risultati sono una stima indicativa basata sui dati inseriti e non costituiscono un’offerta finanziaria.
Inserzionista
Chiama
CONTATTA


