Trilocale Via Montini, Castelnuovo del Garda
€ 1.200 al mese
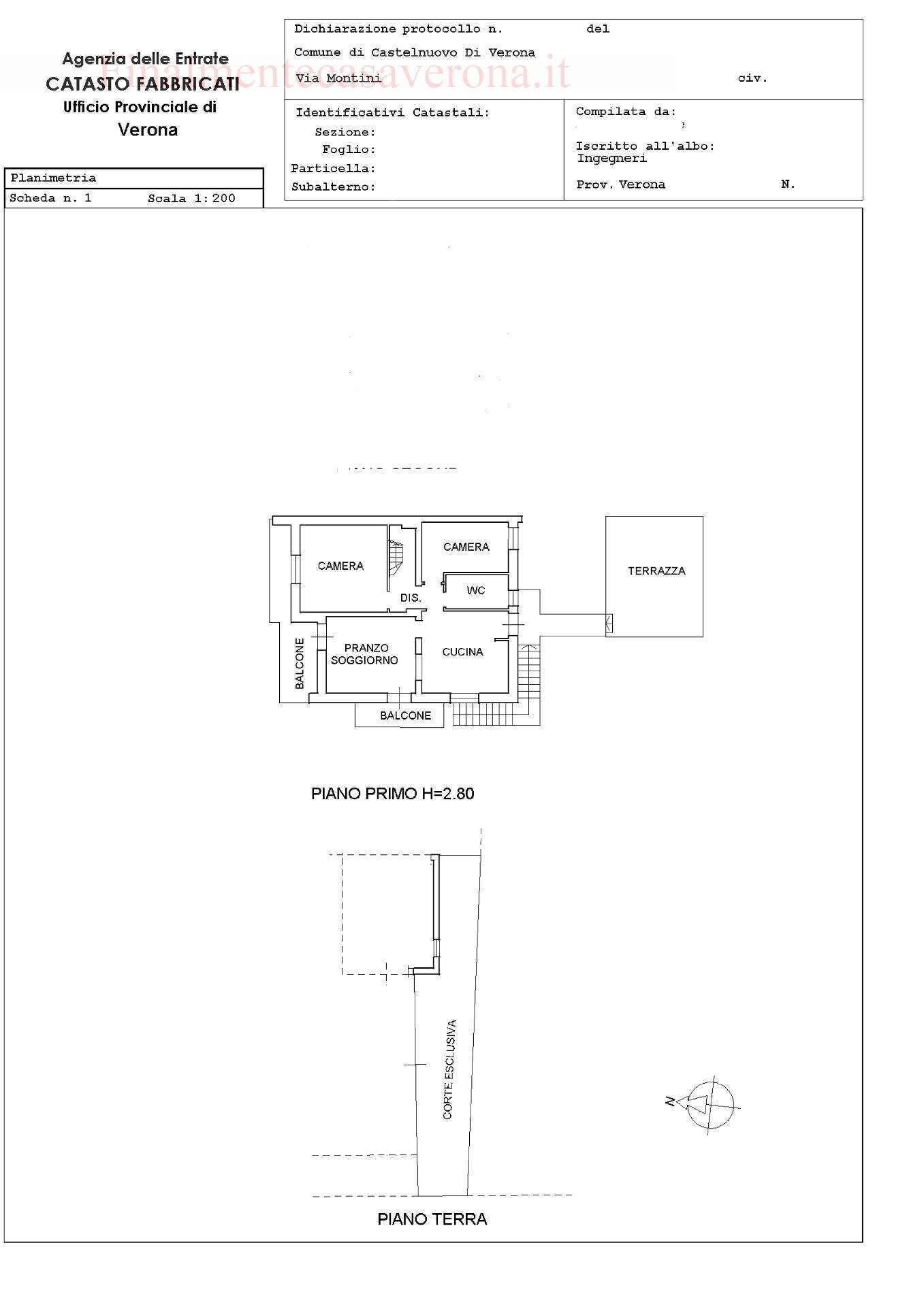
Se sogni la massima indipendenza e un appartamento moderno senza compromessi, questa porzione di villetta libera su quattro lati è la soluzione perfetta. Completamente ristrutturata, labitazione è dotata di cappotto esterno in classe energetica A/4, garantendo comfort abitativo elevato e consumi contenuti. Lingresso conduce a una cucina luminosa, collegata alla sala separata, ideale per chi desidera ambienti funzionali e ben distribuiti. La zona notte offre due ampie camere da letto e un bagno moderno dalle finiture eleganti. Allesterno, un terrazzo vivibile assicura uno spazio riservato per momenti di relax allaria aperta. Nessuna spesa condominiale, garage singolo e posto auto privato completano la proprietà. Soluzione pronta da abitare, perfetta per chi cerca indipendenza, efficienza energetica e qualità costruttiva. Tipologia di contratto semestrale, annuale, anche ad aziende. ð Contatta Finalmente Casa Verona per maggiori informazioni o per prenotare una visita
Dati principali
| Riferimento | 377 |
| Data annuncio | 12/02/2026 |
| Contratto | Affitto |
| Tipologia | Appartamento |
| Superficie | 125 m2 |
| Locali | 3 (2 camere da letto, 1 altro), 2 bagni, cucina abitabile |
| Piano | 1 di 2 totali |
| Occupato | Libero |
| Box auto | Singolo |
| Numero posti auto | 1 |
| Arredamento | Completo |
Caratteristiche
Costi
| Prezzo | 1.200 € al mese |
Efficienza energetica
| Stato | Parzialmente ristrutturato |
| Riscaldamento | Autonomo |
| Tipo Impianto Di Riscaldamento | a pavimento |
| Tipo Alimentazione Riscaldamento | Gasolio |
| Classe energetica | C |
| Indice di prestazione energetica (IPE) | - |
Planimetrie
Virtual tour
Indirizzo e mappa
Via Montini, Castelnuovo del Garda
Annuncio senza mappa,
prova a chiedere la posizione all'inserzionista
prova a chiedere la posizione all'inserzionista
Inserzionista

Finalmente Casa Verona
VIa Albere 72/b, Verona
Mostra Telefono
Mostra Cellulare
Chiama
CONTATTA

