Trilocale VIA GUIDO NOVELLO, Ravenna
€ 285.000Appartamento - Trilocale a Ravenna
ZONA LIDO DI DANTE- meraviglioso appartamento con detrazioni fiscali per SISMA BONUS, in classe energetica A4 vista mare, primo piano con ascensore, cantina per deposito bici, posto auto, riscaldamento autonomo, cappotto termico, pannelli fotovoltaici, infissi in pvc con tripla camera.
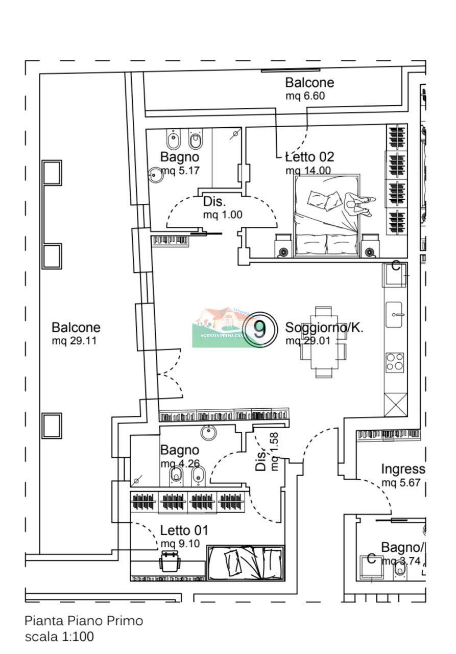
Internamente composto da ingresso con sala e cucina, terrazzo vista mare, 2 camere da letto, 2 bagni.
Internamente composto da ingresso con sala e cucina, terrazzo vista mare, 2 camere da letto, 2 bagni.
Dati principali
| Riferimento | RA/M83 |
| Data annuncio | 10/02/2026 |
| Contratto | Vendita |
| Tipologia | Appartamento |
| Superficie | 98 m2 |
| Locali | 3 (2 camere da letto, 1 altro), 2 bagni |
| Piano | 1 totali |
| Numero di balconi | 1 |
| Numero posti auto | 1 |
Caratteristiche
Costi
| Prezzo | 285.000 € |
| Prezzo al m2 | 2.908 €/m2 |
Efficienza energetica
| Anno costruzione | 2025 |
| Classe energetica | A+ |
| Indice di prestazione energetica (IPE) | - |
Planimetrie
Indirizzo e mappa
VIA GUIDO NOVELLO, Ravenna
Calcolo mutuo
Prezzo di vendita:
Anticipo
20,00
Mutuo
80,00
Tasso: -+
Rata: 815 al mese
I risultati sono una stima indicativa basata sui dati inseriti e non costituiscono un’offerta finanziaria.
Inserzionista

Ballardini Luca D.I
Via Romea 147, Ravenna
Mostra Cellulare
Chiama
CONTATTA

