Villa Via Teliorti, Villanova d'Albenga
€ 410.000
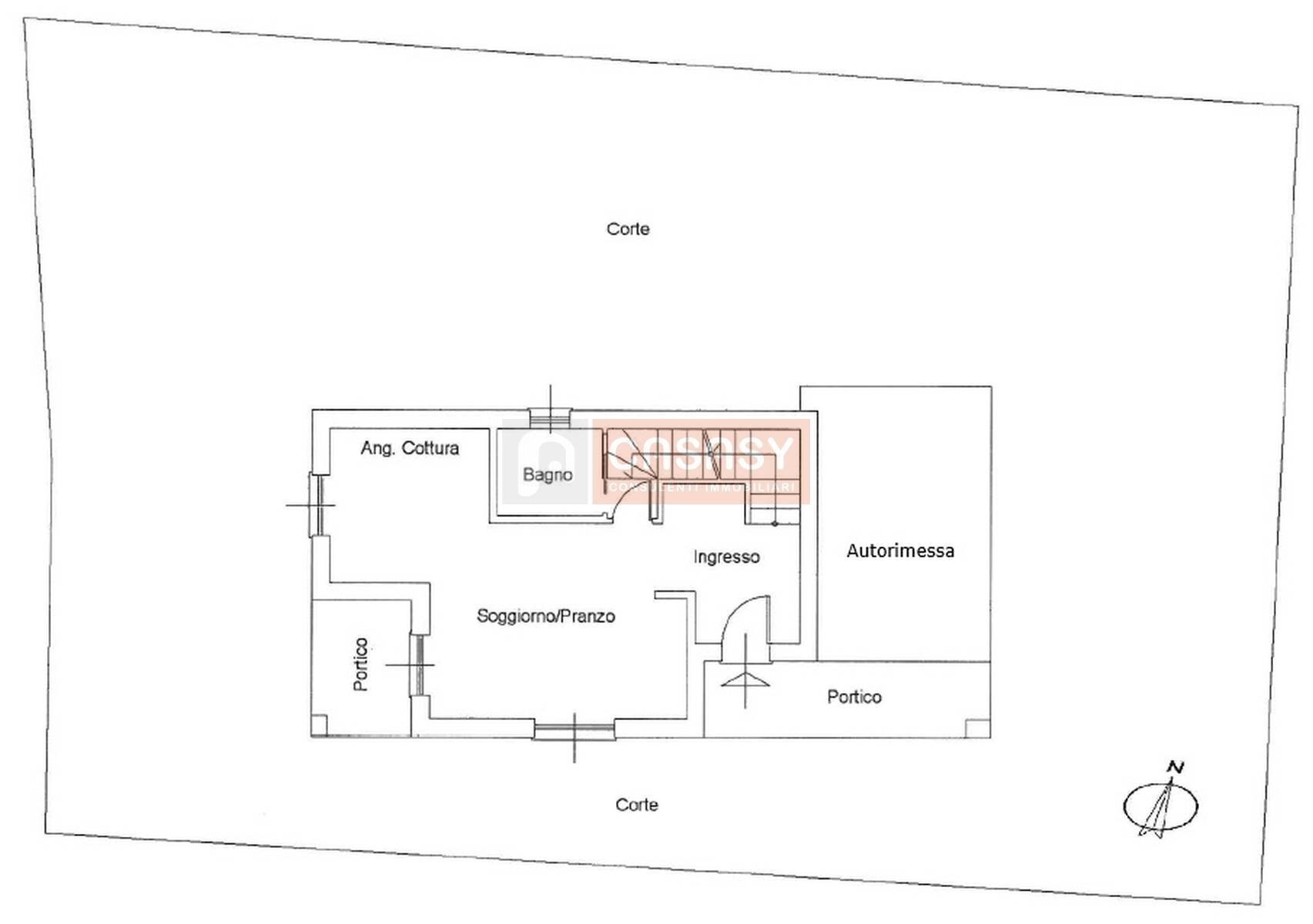
Villanova d'Albenga, in vendita villa indipendente di recente costruzione con ampio giardino e posto auto. A Villanova dAlbenga, lAgenzia Immobiliare Casasy propone in vendita, in posizione strategica a due passi dal centro del paese e dai servizi, villa moderna e di recente costruzione, ideale per chi desidera comfort, spazio e qualità abitativa. La proprietà si sviluppa su tre livelli per una superficie commerciale complessiva di mq. 228. Al piano terra: ingresso, ampio open space, suddiviso in luminoso soggiorno con cucina a vista, ambiente perfetto per condividere momenti in famiglia o con gli amici. Sullo stesso piano comodo bagno di servizio. Salendo al primo piano, il disimpegno accompagna alla zona notte, composta da camera matrimoniale con affaccio su una grande terrazza vivibile, camera singola con terrazzo, antibagno e bagno. Scendendo dall'interno dell'abitazione al piano interrato troviamo un locale adibito a magazzino di circa mq 92. La villa è caratterizzata da uno stile moderno e ricercato, dotata di riscaldamento autonomo, aria condizionata e infissi con vetrocamera, elementi che garantiscono comfort ed efficienza energetica. Allesterno, un giardino privato circonda labitazione, offrendo uno spazio perfetto per godersi le belle giornate, organizzare cene allaperto o personalizzarlo secondo le proprie esigenze. Completa la proprietà un comodo box . Villanova dAlbenga è un paese ricco di fascino, famoso per il suo Borgo Medievale perfettamente conservato, con le suggestive mura e le dieci imponenti torri. Situato nel primo entroterra ingauno, è comodamente collegato ad Albenga tramite Strada Provinciale o Aurelia Bis, permettendo di raggiungere in pochi minuti Alassio, i principali centri commerciali e le località turistiche della zona. Contattaci, senza impegno, per prenotare una visita! 410.000 Ape: C EP gl,nren 107,15 Wh/mq anno Se tra queste proposte non hai trovato ciò che desideri, contattaci! Insieme troveremo la soluzione ideale per te ! Agenzia Immobiliare Casasy Albenga www.casasyalbenga.com Tel. 0182.555627 Whatsapp 342.1000268
Dati principali
| Riferimento | 627 |
| Data annuncio | 08/02/2026 |
| Contratto | Vendita |
| Tipologia | Villa |
| Superficie | 228 m2 |
| Locali | 5 (2 camere da letto, 3 altro), 2 bagni, cucina a vista |
| Piano | Su più livelli |
| Tipo di costruzione | Signorile |
| Occupato | Libero |
| Box auto | Singolo |
| Arredamento | Assente |
Caratteristiche
Costi
| Prezzo | 410.000 € |
| Prezzo al m2 | 1.798 €/m2 |
Efficienza energetica
| Stato | Ottimo |
| Riscaldamento | Autonomo |
| Classe energetica | C |
| Indice di prestazione energetica (IPE) | - |
Planimetrie
Video
Indirizzo e mappa
Via Teliorti, Villanova d'Albenga
Annuncio senza mappa,
prova a chiedere la posizione all'inserzionista
prova a chiedere la posizione all'inserzionista
Calcolo mutuo
Prezzo di vendita:
Anticipo
20,00
Mutuo
80,00
Tasso: -+
Rata: 1.173 al mese
I risultati sono una stima indicativa basata sui dati inseriti e non costituiscono un’offerta finanziaria.
Inserzionista

CASASY
Via Dei Mille n° 8, Albenga
Mostra Telefono
Mostra Cellulare
Chiama
CONTATTA

