Ufficio Via Erasmo Da Rotterdam, Ferrara
€ 1.100 al mese
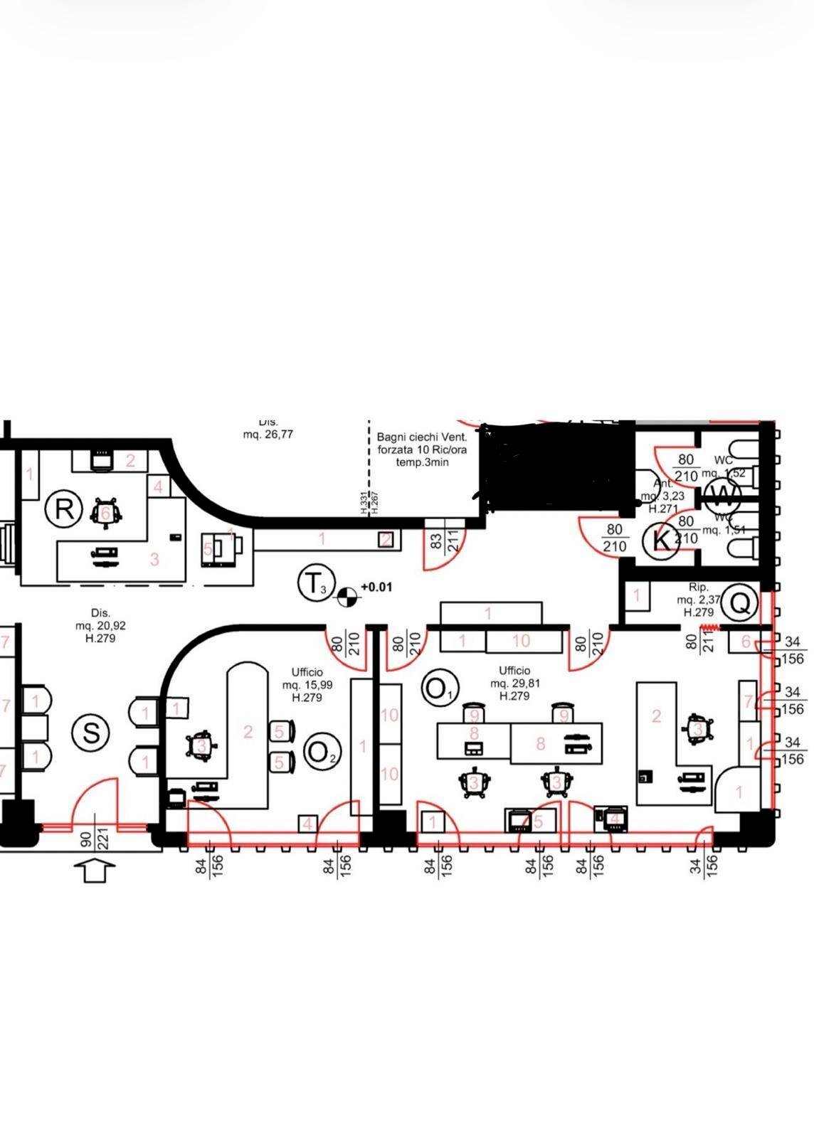
Ufficio in affitto a Ferrara, Via Erasmo da Rotterdam. Sito al piano terra, l'ufficio è composto da ampio ingresso di circa mq 20 ideale per l'accoglienza, due sale ad uso ufficio, un antibagno e bagno ed un ripostiglio. Soluzione versatile,adatta a diverse tipologie di attività, con parcheggi nelle immediate vicinanze. Rappresenta una soluzione funzionale per chi cerca un ambiente di lavoro comodo e funzionale. Canone di locazione comprensivo di spese condominiali e utenze. Potete contattarci senza impegno per ricevere maggiori informazioni o per prenotare un appuntamento per visionare questo Ufficio in affitto in Via Erasmo de Rotterdam, Ferrara. COD.4076 1.100
Dati principali
| Riferimento | 4076 |
| Data annuncio | 07/02/2026 |
| Contratto | Affitto |
| Tipologia | Ufficio |
| Superficie | 90 m2 |
| Locali | 3 (3 altro), 1 bagno, cucina non presente |
| Piano | Terra |
| Box auto | Assente |
Costi
| Prezzo | 1.100 € al mese |
Efficienza energetica
| Stato | Ottimo |
| Riscaldamento | Centralizzato |
| Tipo Impianto Di Riscaldamento | ad aria |
| Tipo Alimentazione Riscaldamento | Altro |
| Classe energetica | Immobile esente da certificazione energetica |
Indirizzo e mappa
Via Erasmo Da Rotterdam, Ferrara
Annuncio senza mappa,
prova a chiedere la posizione all'inserzionista
prova a chiedere la posizione all'inserzionista
Inserzionista

PROGETTO CASA FERRARA
VIA SARACENO 44, Ferrara
Mostra Telefono
Chiama
CONTATTA

