Villa Montespertoli
€ 732.000
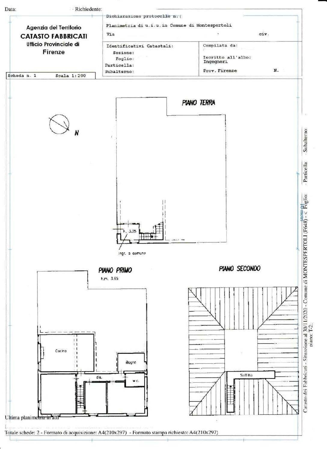
Rif. 1517 - MONTESPERTOLI - NOSTRA ESCLUSIVA - versante Firenze zona Montagnana in posizione SUPERPANORAMICA in mezzo al verde - VENDESI COLONICA LEOPOLDINA Indipendente con colombaia già ristrutturata con materiali di pregio come una volta, della superficie di circa 620,00mq, libera su quattro lati zona superpanoramica, già suddivisa in 3 appartamenti comunicanti, piscina esclusiva, depandance, terreno perimetrale di pertinenza circa 8.000,00mq, impianto fotovoltaico esclusivo, classe energetica F, Disponibile da subito AGENZIA SERGIO MONTAGNANI CELL. 333-4492341 ufficio 0571-646535.
Dati principali
| Riferimento | 1517 |
| Data annuncio | 07/02/2026 |
| Contratto | Vendita |
| Tipologia | Villa |
| Superficie | 620 m2 |
| Locali | più di 5 (6 camere da letto, 24 altro), 6 bagni |
| Piano | Su più livelli, 2 totali |
| Occupato | Libero |
Caratteristiche
Costi
| Prezzo | 732.000 € |
| Prezzo al m2 | 1.181 €/m2 |
Efficienza energetica
| Stato | Ottimo |
| Riscaldamento | Autonomo |
| Classe energetica | G |
| Indice di prestazione energetica (IPE) | 381 kWh/m2 anno |
Planimetrie
Indirizzo e mappa
Montespertoli
Annuncio senza mappa,
prova a chiedere la posizione all'inserzionista
prova a chiedere la posizione all'inserzionista
Calcolo mutuo
Prezzo di vendita:
Anticipo
20,00
Mutuo
80,00
Tasso: -+
Rata: 2.093 al mese
I risultati sono una stima indicativa basata sui dati inseriti e non costituiscono un’offerta finanziaria.
Inserzionista

Ag. Imm. SERGIO MONTAGNANI
Via D. Alighieri, 40, Montespertoli
Mostra Telefono
Mostra Cellulare
Chiama
CONTATTA

