Trilocale Via del Moscato, Bomporto
€ 185.000Trilocale in vendita
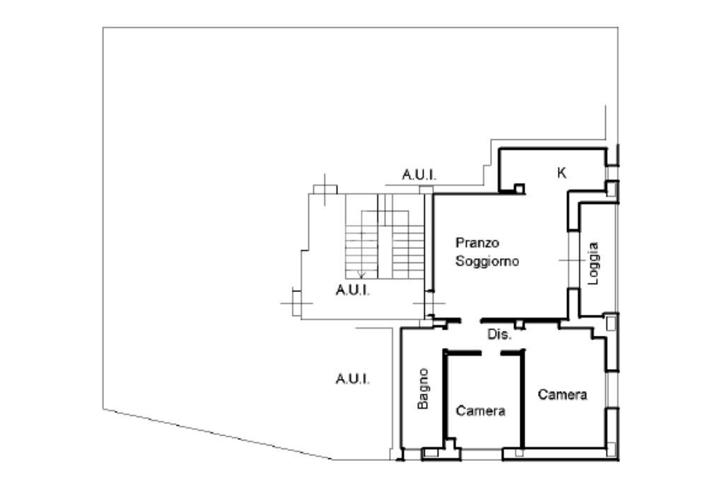
Bomporto - Proponiamo un appartamento trilocale in contesto recente in classe energetica A3, caratterizzato da spazi ben distribuiti.
L’ingresso conduce direttamente alla zona giorno open space, dove cucina e soggiorno convivono in un unico ambiente funzionale e luminoso. Dalla zona living si accede al balcone, comodo come sfogo esterno.
Un disimpegno separa la zona notte, composta da camera da letto matrimoniale, seconda camera e bagno.
Completano la proprietà box auto e cantina.
L’appartamento è dotato di riscaldamento a pavimento e aria condizionata, elementi che garantiscono comfort abitativo.
Per tutelare la privacy dei nostri clienti, l'indirizzo del presente annuncio potrebbe non corrispondere in maniera precisa all'esatta ubicazione dell'immobile.
Desideri conoscere il valore della tua casa? Chiamaci allo 0535.652477 per una valutazione gratuita e senza impegno.
L’ingresso conduce direttamente alla zona giorno open space, dove cucina e soggiorno convivono in un unico ambiente funzionale e luminoso. Dalla zona living si accede al balcone, comodo come sfogo esterno.
Un disimpegno separa la zona notte, composta da camera da letto matrimoniale, seconda camera e bagno.
Completano la proprietà box auto e cantina.
L’appartamento è dotato di riscaldamento a pavimento e aria condizionata, elementi che garantiscono comfort abitativo.
Per tutelare la privacy dei nostri clienti, l'indirizzo del presente annuncio potrebbe non corrispondere in maniera precisa all'esatta ubicazione dell'immobile.
Desideri conoscere il valore della tua casa? Chiamaci allo 0535.652477 per una valutazione gratuita e senza impegno.
Dati principali
| Riferimento | 61173113 |
| Data annuncio | 06/02/2026 |
| Contratto | Vendita |
| Tipologia | Appartamento |
| Superficie | 72 m2 |
| Locali | 3 (3 altro), 1 bagno |
| Piano | 2 di 2 totali |
Costi
| Prezzo | 185.000 € |
| Prezzo al m2 | 2.569 €/m2 |
| Spese condominiali | € 167,00/mese |
Efficienza energetica
| Anno costruzione | 2019 |
| Riscaldamento | Autonomo |
| Tipo Alimentazione Riscaldamento | Metano |
| Classe energetica | A3 |
| Indice di prestazione energetica (EP GL, REN) | 45.74 kWh/m3 anno |
| Indice di prestazione energetica (EP GL, NREN) | 41.86 kWh/m3 anno |
Planimetrie
Video
Indirizzo e mappa
Via del Moscato, Bomporto
Calcolo mutuo
Prezzo di vendita:
Anticipo
20,00
Mutuo
80,00
Tasso: -+
Rata: 529 al mese
I risultati sono una stima indicativa basata sui dati inseriti e non costituiscono un’offerta finanziaria.
Inserzionista
Chiama
CONTATTA

