Quadrilocale Via Bollengo, Ivrea
€ 115.000Quadrilocale in vendita
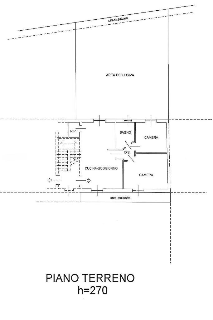
In zona tranquilla a pochi minuti dai principali servizi, appartamento al piano terra situato in una piccola palazzina di recente costruzione.
L’immobile si distingue per gli spazi esterni vivibili e la funzionale distribuzione interna. È composto da una zona giorno con cucina e soggiorno in un unico ambiente, luminosa e accogliente con accessi diretti agli spazi esterni.
La zona notte è composta da due camere da letto, di cui una singola con accesso diretto al giardino privato e una matrimoniale con uscita su cortiletto esclusivo, oltre a bagno finestrato con doccia.
A completamento della proprietà box auto e posto auto
L’immobile si distingue per gli spazi esterni vivibili e la funzionale distribuzione interna. È composto da una zona giorno con cucina e soggiorno in un unico ambiente, luminosa e accogliente con accessi diretti agli spazi esterni.
La zona notte è composta da due camere da letto, di cui una singola con accesso diretto al giardino privato e una matrimoniale con uscita su cortiletto esclusivo, oltre a bagno finestrato con doccia.
A completamento della proprietà box auto e posto auto
Dati principali
| Riferimento | 61173522 |
| Data annuncio | 06/02/2026 |
| Contratto | Vendita |
| Tipologia | Appartamento |
| Superficie | 80 m2 |
| Locali | 4 (4 altro), 1 bagno |
| Piano | 3 totali |
Costi
| Prezzo | 115.000 € |
| Prezzo al m2 | 1.438 €/m2 |
| Spese condominiali | € 208,00/mese |
Efficienza energetica
| Anno costruzione | 2010 |
| Riscaldamento | Centralizzato |
| Tipo Alimentazione Riscaldamento | Metano |
| Classe energetica | B |
| Indice di prestazione energetica (EP GL, REN) | 15.92 kWh/m3 anno |
| Indice di prestazione energetica (EP GL, NREN) | 44.65 kWh/m3 anno |
Planimetrie
Video
Indirizzo e mappa
Via Bollengo, Ivrea
Calcolo mutuo
Prezzo di vendita:
Anticipo
20,00
Mutuo
80,00
Tasso: -+
Rata: 329 al mese
I risultati sono una stima indicativa basata sui dati inseriti e non costituiscono un’offerta finanziaria.
Inserzionista
Chiama
CONTATTA

