Quadrilocale Via Donato Bramante 19, Caserta
€ 500.000
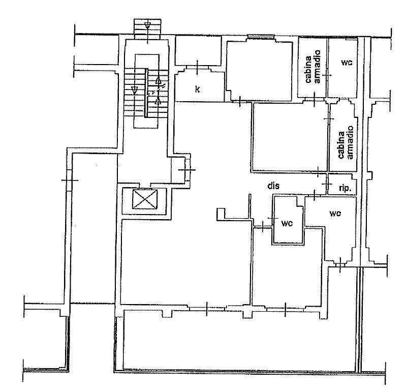
PARCO GABRIELLA ELEGANTE APPARTAMENTO CON TERRAZZO Nel cuore di Caserta, allinterno del prestigioso e rinomato Parco Gabriella, proponiamo in vendita un appartamento di ampia metratura che coniuga eleganza, comfort e riservatezza. Limmobile, posto al piano rialzato, si sviluppa su una superficie di circa 190 mq ed è caratterizzato da ambienti generosi e perfettamente distribuiti. Lingresso introduce a un ampio salone di rappresentanza, luminoso e accogliente, con accesso diretto a un magnifico terrazzo di circa 60 mq, ideale per momenti di relax o per ricevere ospiti in un contesto esclusivo. La cucina abitabile si presta a una quotidianità comoda e ben organizzata. La zona notte ospita tre camere da letto, di cui una padronale dotata di cabina armadio e bagno en suite, mentre ulteriori due bagni, rifiniti con cura, garantiscono il massimo comfort per la famiglia e gli ospiti. Completano la distribuzione interna un pratico ripostiglio. Lappartamento si presenta in ottime condizioni, con pavimentazione in parquet, climatizzazione centralizzata, infissi blindati, tapparelle elettriche e impianto di allarme, elementi che testimoniano lelevato standard qualitativo della proprietà. A servizio dellimmobile vi sono inoltre un posto auto coperto di proprietà e una cantina al piano seminterrato; allinterno del parco è inoltre disponibile unarea con posti auto scoperti non assegnati, a ulteriore vantaggio della vivibilità quotidiana. Una soluzione di assoluto pregio, inserita in uno dei contesti residenziali più richiesti della città, ideale per chi desidera abitare in un ambiente esclusivo senza rinunciare alla centralità e ai servizi. 500.000,00 RIF. 4V130 Via Ferrarecce n°129/133 81100 Caserta [email protected] ph. 0823-456209 www.limmobiliare.com www.caserta.limmobiliare.com
Dati principali
| Riferimento | 4V130 |
| Data annuncio | 06/02/2026 |
| Contratto | Vendita |
| Tipologia | Appartamento |
| Superficie | 190 m2 |
| Locali | 4 (3 camere da letto, 1 altro), 3 bagni, cucina abitabile |
| Piano | Ammezzato, 4 totali |
| Tipo di costruzione | Signorile |
| Occupato | Libero |
| Box auto | Assente |
| Numero posti auto | 1 |
| Arredamento | Parziale |
Caratteristiche
Costi
| Prezzo | 500.000 € |
| Prezzo al m2 | 2.632 €/m2 |
Efficienza energetica
| Stato | Ottimo |
| Riscaldamento | Autonomo |
| Classe energetica | E |
| Indice di prestazione energetica (IPE) | - |
Planimetrie
Indirizzo e mappa
Via Donato Bramante
19, Caserta
Annuncio senza mappa,
prova a chiedere la posizione all'inserzionista
prova a chiedere la posizione all'inserzionista
Calcolo mutuo
Prezzo di vendita:
Anticipo
20,00
Mutuo
80,00
Tasso: -+
Rata: 1.430 al mese
I risultati sono una stima indicativa basata sui dati inseriti e non costituiscono un’offerta finanziaria.
Inserzionista

L'immobiliare.com Caserta
Via Ferrarecce 129/133, Caserta
Mostra Telefono
Mostra Cellulare
Chiama
CONTATTA

