Loft via Carlo Pizzorno, 3, Torino (zona Lingotto)
€ 380.000LOCALE COMMERCIALE E MAGAZZINI TRASFORMABILI IN LOFT
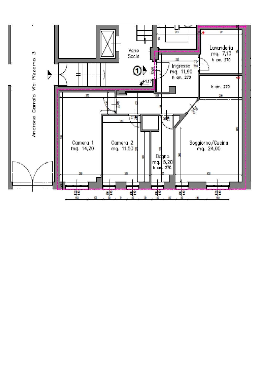
Abbiamo un progetto con oneri di urbanizzazione già pagati dalla Proprietà per la realizzazione di Loft abitativi in via Pizzorno a pochi passi dallo Stadio Filadelfia nel cuore del Borgo Filadelfia. In circa 700 mq. complessivi tra piano terra/interno cortile abitativo residenziale ed interrato con destinazione non abitativa, siamo in grado di offrire questa opportunità a imprese del settore o investitori. Via Pizzorno civico 3 con affaccio su strada un negozio di circa 90 mq. trasformabile in 2 appartamenti con doppi ingressi. Via Pizzorno civico 5 con ingresso da passo carraio e cortile ad uso esclusivo vi proponiamo circa 200 mq. di magazzini piano strada trasformabili in 4 loft. Via Pizzorno civico 3 al piano interrato circa 400 mq. uso magazzino/deposito da trasformare in altra destinazione (non abitativa). Il condominio presenta molto bene esternamente, progetti già disponibili ma comunque eventualmente modificabili, oneri urbanizzazione versati. Spese condominiali basse. Per avere ulteriori informazioni o per programmare un appuntamento può chiamarci al numero " 011 - 301.79.53 ", mandarci un messaggio al nostro numero whatsapp " 348 - 3706382 "oppure passa a trovarci presso il nostro studio sito in Torino - via Tunisi n. 61/a.
Dati principali
| Riferimento | 1010 |
| Data annuncio | 03/02/2026 |
| Contratto | Vendita |
| Tipologia | Loft |
| Superficie | 700 m2 |
| Piano | 5 totali |
| Tipo di costruzione | Media |
| Box auto | Assente |
| Arredamento | Assente |
Costi
| Prezzo | 380.000 € |
| Prezzo al m2 | 543 €/m2 |
| Spese condominiali | € 150,00/mese |
Efficienza energetica
| Anno costruzione | 1960 |
| Stato | Da ristrutturare |
| Riscaldamento | Autonomo |
| Classe energetica | G |
| Indice di prestazione energetica (IPE) | 175 kWh/m2 anno |
Planimetrie
Indirizzo e mappa
via Carlo Pizzorno, 3, Torino - quartiere Lingotto
Calcolo mutuo
Prezzo di vendita:
Anticipo
20,00
Mutuo
80,00
Tasso: -+
Rata: 1.087 al mese
I risultati sono una stima indicativa basata sui dati inseriti e non costituiscono un’offerta finanziaria.
Inserzionista

Giglio Home Immobiliare
Via Tunisi 61/A, Torino
Mostra Telefono
Chiama
CONTATTA

