Ufficio strada Benedetto Cairoli, Parma
€ 199.000Centro di Parma, via Cairoli, Ufficio di Ampia Metratura
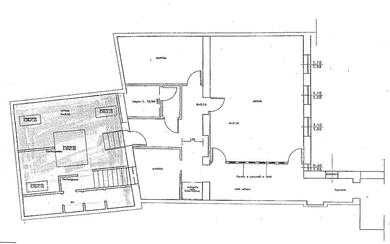
A pochi passi dal Duomo, in Strada Cairoli, nel centro storico di Parma, proponiamo in vendita ufficio / locale commerciale situato al piano terreno, ideale per studi professionali, attività di rappresentanza o servizi al pubblico. L’immobile si sviluppa su una superficie complessiva di circa 165 mq ed è attualmente organizzato in modo funzionale ed efficiente: ingresso con sala d’attesa, quattro locali ben distribuiti, con possibilità di ricavare ulteriori ambienti grazie alla generosa metratura, archivio e doppi servizi. A completamento della proprietà, direttamente collegata all’ufficio, una scala interna conduce a un’ampia cantina sottostante di circa 30 mq, ideale come spazio archivio, deposito o locale di servizio. La posizione strategica, garantisce visibilità e comodità, con tutti i servizi a portata di mano. Soluzione ideale per chi desidera funzionalità e centralità nel cuore di Parma. Rif. C442a. Prezzo: € 199.000.
Dati principali
| Riferimento | C442a |
| Data annuncio | 03/02/2026 |
| Contratto | Vendita |
| Tipologia | Ufficio |
| Superficie | 165 m2 |
| Piano | 3 totali |
| Tipo di costruzione | Signorile |
| Uso immobile | Commerciale |
Costi
| Prezzo | 199.000 € |
| Prezzo al m2 | 1.206 €/m2 |
| Spese condominiali | € 50,00/mese |
Efficienza energetica
| Riscaldamento | Autonomo |
| Classe energetica | G |
| Indice di prestazione energetica (IPE) | 65 kWh/m2 anno |
Planimetrie
Indirizzo e mappa
strada Benedetto Cairoli, Parma
Calcolo mutuo
Prezzo di vendita:
Anticipo
20,00
Mutuo
80,00
Tasso: -+
Rata: 569 al mese
I risultati sono una stima indicativa basata sui dati inseriti e non costituiscono un’offerta finanziaria.
Inserzionista

Edil Consult
Strada Langhirano 50/A, Parma
Mostra Telefono
Chiama
CONTATTA

