Trilocale valdaso 60, Pedaso
€ 120.000
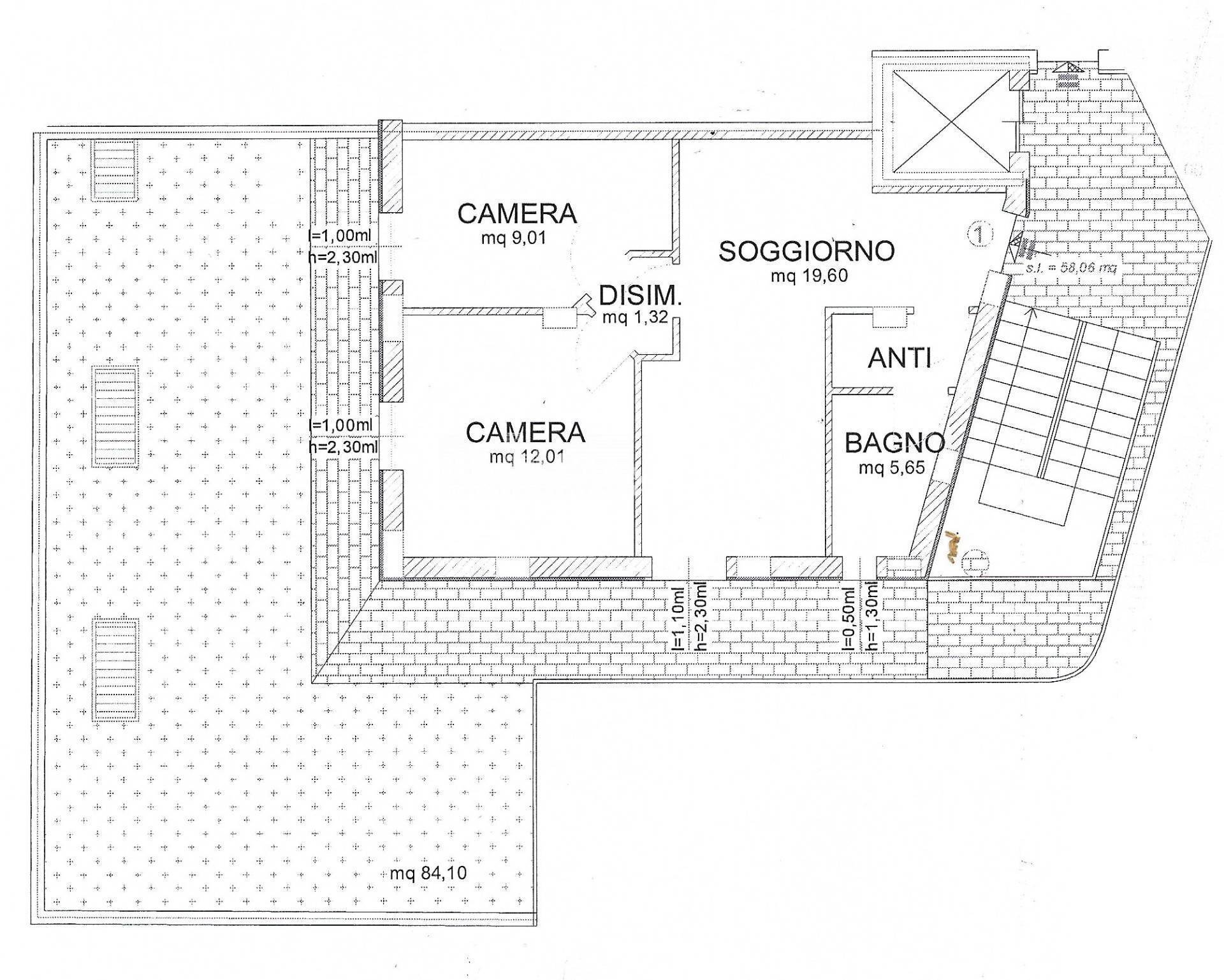
Appartamento di primo ingresso in vendita a Pedaso a un km dal mare Sito al piano terra di una piccola palazzina di recente realizzazione, l'unità di 60 mq oltre ad un terrazzo di 84 mq, è cosi composta: ingresso indipendente su soggiorno luminoso con angolo cottura, dal quale si accede a un terrazzo perimetrale all'appartamento di 84 mq, bagno con doccia e finestra e antibagno. Nela zona notte abbiamo una camera matrimoniale e una camera singola con accesso sulla medesimo corte esterna. Termo autonomo con radianti in alluminio, pavimenti in gress, portoncino blindato, infissi doppio vetro corredati da persiane. Si fa presente che la corte esterna è priva di pavimentazione e sarà a cura dell'acquirente finale. La proprietà si presenta in buone condizioni generali, subito abitabile, e si adatta perfettamente sia a un uso residenziale continuativo che come casa vacanza. La valdaso è una delle zone più apprezzate per chi cerca tranquillità a due passi dal mare. In pochi minuti si raggiungono spiagge attrezzate, piste ciclabili panoramiche, ristoranti tipici e tutti i principali servizi. Un luogo dove mare e campagna si incontrano, perfetto per chi cerca qualità della vita e aria pulita Limmobile si trova in un contesto tranquillo, circondato dal verde, perfetta per chi desidera vivere in una zona riservata ma a breve distanza dalla costa. Possibilità di acquistare garage a livello seminterrato con prezzo da computare a parte e/o altre soluzioni abitative simili nella stessa palazzina Per info e appuntamenti contattare 347.3891923 - Rif: 9690
Dati principali
| Riferimento | 9690 |
| Data annuncio | 05/02/2026 |
| Contratto | Vendita |
| Tipologia | Appartamento |
| Superficie | 60 m2 |
| Locali | 3 (2 camere da letto, 1 altro), 1 bagno, cucina a vista |
| Piano | Terra, 3 totali |
| Tipo di costruzione | Signorile |
| Occupato | Libero |
| Box auto | Assente |
| Arredamento | Assente |
Caratteristiche
Costi
| Prezzo | 120.000 € |
| Prezzo al m2 | 2.000 €/m2 |
Efficienza energetica
| Stato | Buono |
| Riscaldamento | Autonomo |
| Classe energetica | E |
| Indice di prestazione energetica (IPE) | - |
Planimetrie
Indirizzo e mappa
valdaso
60, Pedaso
Annuncio senza mappa,
prova a chiedere la posizione all'inserzionista
prova a chiedere la posizione all'inserzionista
Calcolo mutuo
Prezzo di vendita:
Anticipo
20,00
Mutuo
80,00
Tasso: -+
Rata: 343 al mese
I risultati sono una stima indicativa basata sui dati inseriti e non costituiscono un’offerta finanziaria.
Inserzionista

Re Casa S.r.l.s.
Via San Francesco n. 13 b/c, San Benedetto del Tronto
Mostra Telefono
Mostra Cellulare
Neroni Giuseppe Pino
Mostra Telefono
Chiama
CONTATTA

