Villa Grottammare
€ 470.000
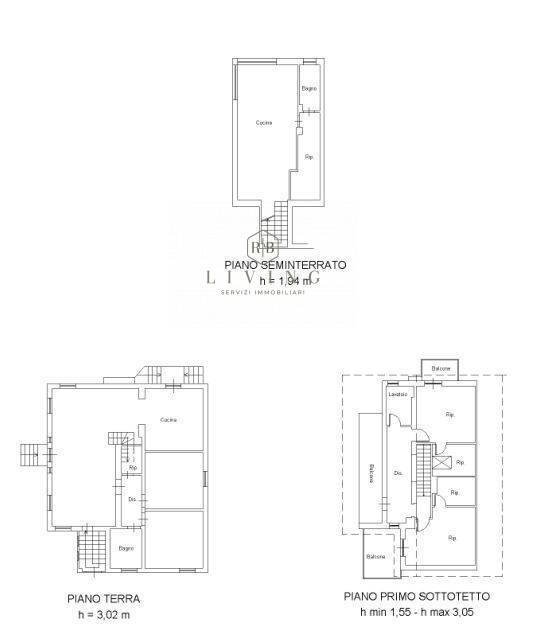
Villa con giardino e vista mare Grottammare (AP) In splendida zona collinare e panoramica disponibile in vendita una villa singola con un rigoglioso giardino privato, ricco di alberi e piante ornamentali. Labitazione, sviluppata su due livelli oltre al piano seminterrato, offre una superficie complessiva di circa 250 mq, garantendo spazi ampi e funzionali. Composizione interna Piano Terra: ingresso principale e secondario con accesso al giardino, ampio soggiorno con camino, cucina abitabile, due camere da letto e un bagno; Piano Primo: due camere matrimoniali con cabina armadio, un bagno e tre balconi, di cui uno molto spazioso con splendida vista mare; Piano Seminterrato: comodo rustico con bagno, ideale come taverna o zona relax. Accesso e pertinenze La proprietà è dotata di un comodo cancello carrabile motorizzato che conduce al vialetto interno, con possibilità di parcheggio per più autovetture. Caratteristiche e finiture Ottime condizioni generali Tetto in legno ventilato con travi a vista Pavimenti in monocottura e parquet Infissi in alluminio con vetrocamera e persiane in alluminio Impianto dallarme e impianti a norma Ideale per Una famiglia alla ricerca di indipendenza, tranquillità e comfort, senza rinunciare alla vicinanza al centro e ai principali servizi. Vuoi maggiori informazioni o prenotare una visita? Scrivimi a [email protected] Agenzia immobiliare RBLiving - San Benedetto del Tronto - Via Calatafimi 78 www.rbliving.it
Dati principali
| Riferimento | 1241 |
| Data annuncio | 03/02/2026 |
| Contratto | Vendita |
| Tipologia | Villa |
| Superficie | 250 m2 |
| Locali | più di 5 (4 camere da letto, 2 altro), 2 bagni, cucina abitabile |
| Piano | Su più livelli, 2 totali |
| Tipo di costruzione | Signorile |
| Occupato | Libero |
| Box auto | Assente |
| Numero posti auto | 3 |
| Arredamento | Assente |
Caratteristiche
Costi
| Prezzo | 470.000 € |
| Prezzo al m2 | 1.880 €/m2 |
Efficienza energetica
| Stato | Ottimo |
| Riscaldamento | Autonomo |
| Classe energetica | E |
| Indice di prestazione energetica (IPE) | 115 kWh/m2 anno |
Planimetrie
Indirizzo e mappa
Grottammare
Annuncio senza mappa,
prova a chiedere la posizione all'inserzionista
prova a chiedere la posizione all'inserzionista
Calcolo mutuo
Prezzo di vendita:
Anticipo
20,00
Mutuo
80,00
Tasso: -+
Rata: 1.344 al mese
I risultati sono una stima indicativa basata sui dati inseriti e non costituiscono un’offerta finanziaria.
Inserzionista
Chiama
CONTATTA


