Baita Contrada Sisto SNC, Cisternino
€ 289.000
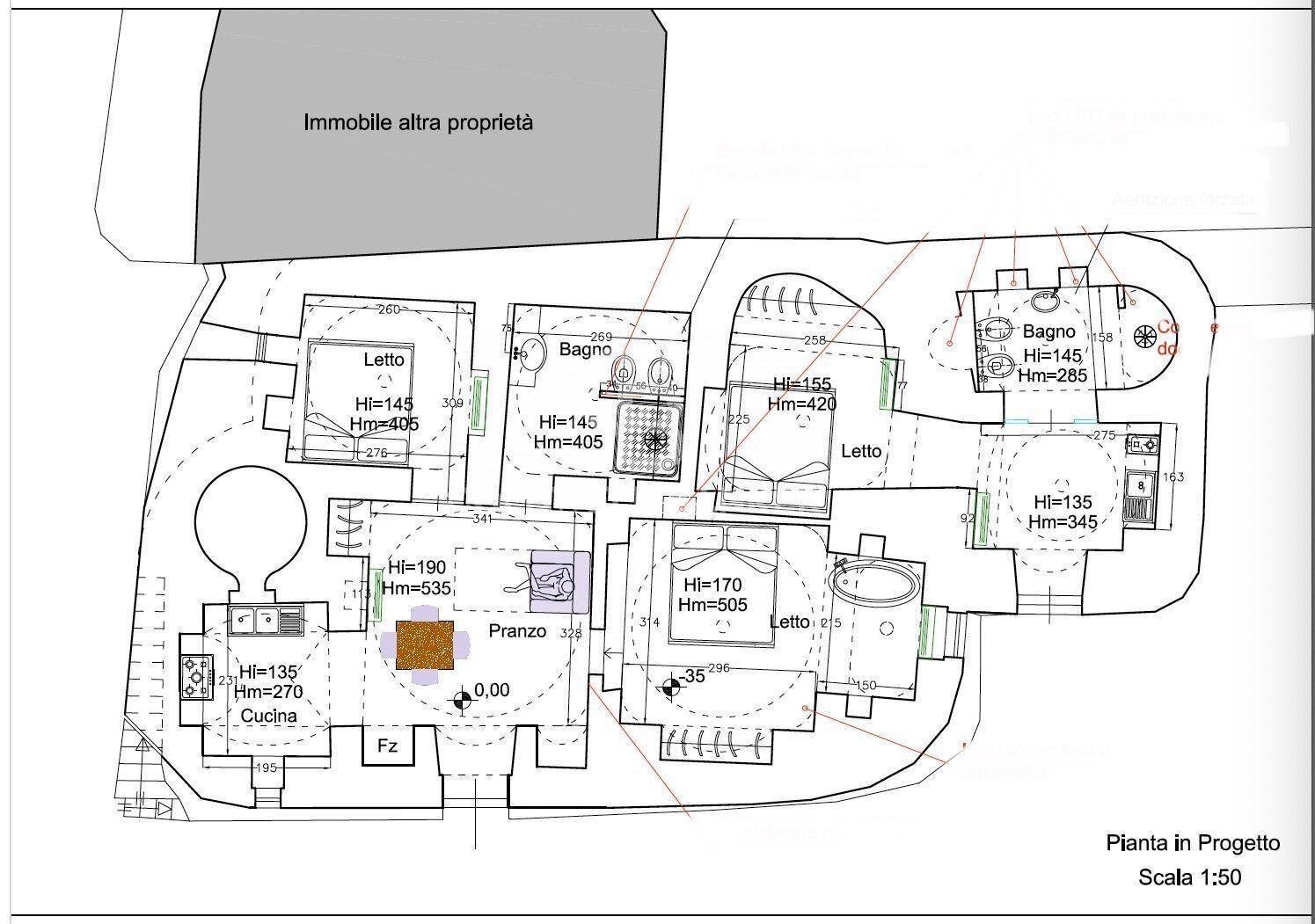
Esclusivo Complesso di Trulli in Vendita nella Valle dItria: Vista Panoramica su Locorotondo e Progetto Piscina Approvato Immerso nel cuore pulsante della Valle dItria, in una posizione dominante e suggestiva tra i borghi di Cisternino, Martina Franca e Locorotondo, sorge unautentica perla dellarchitettura rurale pugliese. Questo straordinario complesso di trulli in pietra viva, composto da sette maestosi coni distribuiti armoniosamente su due corpi di fabbrica adiacenti, rappresenta la sintesi perfetta tra tradizione secolare e visione contemporanea. La proprietà gode di un affaccio panoramico senza eguali, dove lo sguardo spazia dal profilo iconico e circolare del borgo di Locorotondo fino alle distese argentate degli uliveti circostanti, regalando uno scenario che muta incantevolmente con il variare delle luci del giorno e delle stagioni. La residenza principale è stata concepita per offrire comfort e calore sin dal primo istante. Appena varcata la soglia, un accogliente salottino introduce agli ambienti privati, caratterizzati da volumi generosi e nicchie cariche di storia. La zona notte comprende una camera singola e una spaziosa camera matrimoniale, quest'ultima arricchita da una vasca da bagno dal design elegante, pensata per creare un angolo di puro benessere e relax tra le mura in pietra. Una cucina funzionale e un bagno completo ultimano gli spazi interni del corpo principale. Adiacente ma del tutto indipendente, il secondo nucleo abitativo dispone di una camera da letto con angolo cottura e bagno riservato. Questa configurazione offre una flessibilità straordinaria, risultando ideale per chi desidera ospitare amici e parenti in totale privacy o per chi intende destinare la proprietà al circuito degli affitti turistici di lusso, un segmento che vede la Puglia ai vertici delle richieste internazionali. Dal punto di vista tecnico, l'immobile garantisce una sicurezza impareggiabile, poiché la parte strutturale e l'intera impiantistica sono state oggetto di una ristrutturazione completa e meticolosa, valorizzando la pietra a vista senza snaturare lidentità architettonica. Gli spazi esterni restano invece da ultimare, rappresentando un'opportunità strategica per il futuro proprietario che potrà personalizzare il giardino e le aree relax secondo il proprio gusto, realizzando una dimora su misura. A rendere questa proposta un ottimo investimento immobiliare è la presenza di un permesso già approvato per la costruzione di una piscina di sessanta metri quadri, un elemento di assoluto valore che eleva il prestigio della tenuta. Circondata da un terreno di oltre un ettaro, la proprietà si distingue per latmosfera profondamente rilassante e per il silenzio della campagna incontaminata. Acquistare questo trullo in vendita significa scegliere un immobile di charme capace di offrire un connubio perfetto tra autenticità, potenziale abitativo e posizione strategica nel cuore della Puglia più ricercata. Vi invitiamo a contattare i nostri consulenti per scoprire di persona ogni dettaglio di questa dimora straordinaria e per iniziare a dare forma al vostro sogno nella Valle d'Itria: il vostro rifugio panoramico esclusivo vi aspetta.
Dati principali
| Riferimento | CBI094-169-64106 |
| Data annuncio | 03/02/2026 |
| Contratto | Vendita |
| Tipologia | Baita |
| Superficie | 95 m2 |
| Locali | più di 5 (3 camere da letto, 3 altro), 2 bagni |
| Piano | Terra, 1 totali |
| Occupato | Libero |
| Box auto | Assente |
| Numero posti auto | 5 |
| Arredamento | Parziale |
Caratteristiche
Costi
| Prezzo | 289.000 € |
| Prezzo al m2 | 3.042 €/m2 |
Efficienza energetica
| Stato | Parzialmente ristrutturato |
| Riscaldamento | Autonomo |
| Tipo Alimentazione Riscaldamento | Gpl |
| Classe energetica | D |
| Indice di prestazione energetica (IPE) | 89 kWh/m2 anno |
Planimetrie
Virtual tour
Indirizzo e mappa
Contrada Sisto
SNC, Cisternino
Annuncio senza mappa,
prova a chiedere la posizione all'inserzionista
prova a chiedere la posizione all'inserzionista
Calcolo mutuo
Prezzo di vendita:
Anticipo
20,00
Mutuo
80,00
Tasso: -+
Rata: 827 al mese
I risultati sono una stima indicativa basata sui dati inseriti e non costituiscono un’offerta finanziaria.
Inserzionista

Coldwell Banker Gruppo Bodini
Via Nicolò Putignani, 20, Bari
Mostra Telefono
Chiama
CONTATTA

