Appartamento VIA PER RUBIERA 34, Scandiano
€ 190.000Appartamento - Pentalocale a Scandiano
INTERNO
Proponiamo in vendita un ampio appartamento disposto su due livelli, situato in una tranquilla zona residenziale a pochi passi dal centro di Arceto. L’immobile è inserito in un piccolo contesto condominiale di sole 4 unità abitative, ideale per chi desidera privacy, indipendenza e spazi generosi.
Al Piano Terra l’abitazione accoglie con un ingresso su luminoso soggiorno, cucina separata, due bagni e una comoda cantina.
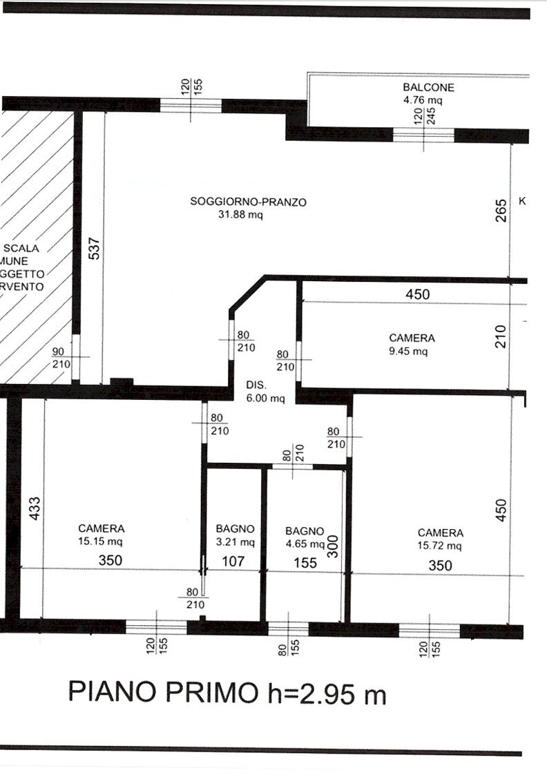
Al Primo Piano si sviluppa la zona notte, composta da tre spaziose camere da letto e un ulteriore bagno.
Entrambi i livelli sono collegati direttamente alla scala condominiale, consentendo la possibilità di separare facilmente i due piani e realizzare due appartamenti indipendenti, grazie anche alla presenza degli attacchi per la cucina al piano superiore. Completa la proprietà un ampio giardino condominiale, perfetto per momenti di relax all’aria aperta.
ESTERNO
L’immobile si presenta esternamente in buone condizioni, con facciata in parte in mattoni faccia vista e in parte intonacata di colore giallo. È presente un giardino condominiale che rappresenta un ottimo spazio esterno.
POSIZIONE
La soluzione si trova a pochi passi dal centro di Arceto, in una zona tranquilla e ben servita, con tutti i principali servizi facilmente raggiungibili.
QUATTRO BUONI MOTIVI PER SCEGLIERE QUESTO IMMOBILE
Ampia metratura con tre camere da letto e tre bagni
Possibilità di ricavare due unità abitative indipendenti
Piccolo contesto condominiale
Spazi ampi e ben distribuiti
Possibilità di contratto con affitto a riscatto
Per maggiori informazioni contattare Alessandro 3717758263
Proponiamo in vendita un ampio appartamento disposto su due livelli, situato in una tranquilla zona residenziale a pochi passi dal centro di Arceto. L’immobile è inserito in un piccolo contesto condominiale di sole 4 unità abitative, ideale per chi desidera privacy, indipendenza e spazi generosi.
Al Piano Terra l’abitazione accoglie con un ingresso su luminoso soggiorno, cucina separata, due bagni e una comoda cantina.
Al Primo Piano si sviluppa la zona notte, composta da tre spaziose camere da letto e un ulteriore bagno.
Entrambi i livelli sono collegati direttamente alla scala condominiale, consentendo la possibilità di separare facilmente i due piani e realizzare due appartamenti indipendenti, grazie anche alla presenza degli attacchi per la cucina al piano superiore. Completa la proprietà un ampio giardino condominiale, perfetto per momenti di relax all’aria aperta.
ESTERNO
L’immobile si presenta esternamente in buone condizioni, con facciata in parte in mattoni faccia vista e in parte intonacata di colore giallo. È presente un giardino condominiale che rappresenta un ottimo spazio esterno.
POSIZIONE
La soluzione si trova a pochi passi dal centro di Arceto, in una zona tranquilla e ben servita, con tutti i principali servizi facilmente raggiungibili.
QUATTRO BUONI MOTIVI PER SCEGLIERE QUESTO IMMOBILE
Ampia metratura con tre camere da letto e tre bagni
Possibilità di ricavare due unità abitative indipendenti
Piccolo contesto condominiale
Spazi ampi e ben distribuiti
Possibilità di contratto con affitto a riscatto
Per maggiori informazioni contattare Alessandro 3717758263
Dati principali
| Riferimento | AD-01 |
| Data annuncio | 30/01/2026 |
| Contratto | Vendita |
| Tipologia | Appartamento |
| Superficie | 155 m2 |
| Locali | più di 5 (6 altro) |
| Piano | 2 totali |
Costi
| Prezzo | 190.000 € |
| Prezzo al m2 | 1.226 €/m2 |
Efficienza energetica
| Classe energetica | In fase di calcolo |
Planimetrie
Indirizzo e mappa
VIA PER RUBIERA 34, Scandiano
Calcolo mutuo
Prezzo di vendita:
Anticipo
20,00
Mutuo
80,00
Tasso: -+
Rata: 543 al mese
I risultati sono una stima indicativa basata sui dati inseriti e non costituiscono un’offerta finanziaria.
Inserzionista
Agenzia Faro Srl
V. Giardini 186, Modena
Mostra Cellulare
Chiama
CONTATTA

