Villa a Schiera via GORIZIA 52, Laveno-Mombello
€ 158.000
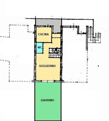
Villetta a schiera IMMERSA NEL VERDE con giardino privato. L'immobile è composto da zona giorno, soggiorno, cucina e bagno posti al piano rialzato, e dalla zona notte posta al primo piano, composta due camere da letto e un secondo bagno. Completano la proprietà cantina e il box auto. TERMOAUTONOMA E BASSE SPESE CONDOMINIALI. Laveno Mombello è uno dei centri più suggestivi della provincia di Varese, situato sulla sponda orientale del Lago Maggiore, ai piedi del monte Sasso del Ferro. Il borgo di Laveno si estende lungo la costa, la frazione di Mombello guarda invece alle colline. Luogo ideale per il relax del fine settimana, Laveno Mombello è anche un punto strategico per gli amanti delle escursioni in mezzo alla natura, sia a piedi che in bicicletta. Ideal per giovani coppie e famiglie con bambini. Non perdere l'opportunità di acquistare questa villetta a schiera in una zona tranquilla e comoda di Laveno-Mombello.
Dati principali
| Riferimento | 1326 |
| Data annuncio | 01/02/2026 |
| Contratto | Vendita |
| Tipologia | Villa a Schiera |
| Superficie | 114 m2 |
| Locali | 3 (2 camere da letto, 1 altro), 2 bagni, cucina abitabile |
| Piano | Intero edificio, 3 totali |
| Tipo di costruzione | Media |
| Occupato | Libero |
| Box auto | Doppio |
Caratteristiche
Costi
| Prezzo | 158.000 € |
| Prezzo al m2 | 1.386 €/m2 |
Efficienza energetica
| Riscaldamento | Autonomo |
| Classe energetica | G |
| Indice di prestazione energetica (IPE) | 220 kWh/m2 anno |
Planimetrie
Indirizzo e mappa
via GORIZIA
52, Laveno-Mombello
Annuncio senza mappa,
prova a chiedere la posizione all'inserzionista
prova a chiedere la posizione all'inserzionista
Calcolo mutuo
Prezzo di vendita:
Anticipo
20,00
Mutuo
80,00
Tasso: -+
Rata: 452 al mese
I risultati sono una stima indicativa basata sui dati inseriti e non costituiscono un’offerta finanziaria.
Inserzionista
Chiama
CONTATTA


