Appartamento Via Schifani, Beinasco
€ 277.000Multilocale in vendita
Nel centro di Beinasco, comodissimo a Ipercoop, scuole e a tutti i principali servizi, proponiamo in vendita un appartamento disposto su due livelli, situato al terzo piano con mansarda, all’interno di un curato condominio in paramano degli anni ’90, immerso nel giardino condominiale.
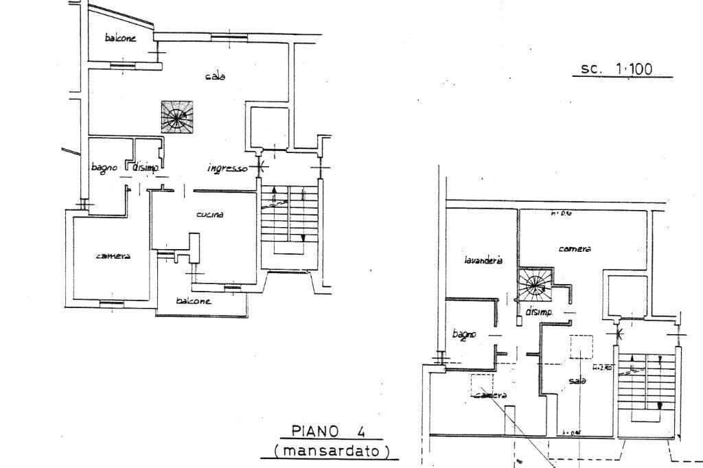
L’ingresso si apre su un ampio soggiorno doppio, luminoso e accogliente, uno spazio ideale per la vita quotidiana e per ricevere ospiti; grazie alla generosa metratura, offre anche la possibilità di ricavare una stanza aggiuntiva. Dal soggiorno si accede, tramite portafinestra, a un terrazzino vivibile, dotato di tenda estiva, perfetto per i momenti di relax all’aperto.
La cucina è abitabile, ben organizzata e servita da finestra e portafinestra che conducono a un secondo balcone, dove è installata la caldaia a semicondensazione sostituita nel 2020. Completano il piano una camera da letto con balcone alla francese e un bagno finestrato con vasca.
Attraverso una scala interna a giorno in legno massiccio si accede al piano superiore mansardato, dove troviamo due camere da letto, entrambe climatizzate, un secondo bagno finestrato con box doccia e una comoda stanza adibita a lavanderia, funzionale e ben sfruttabile.
L’appartamento è dotato di riscaldamento autonomo con termostati indipendenti su ciascun piano, infissi in legno con doppi vetri e impianto di antifurto volumetrico e perimetrale, garantendo comfort e sicurezza.
Completa la proprietà una cantina.
È inoltre possibile acquistare box auto singolo al prezzo di € 20.000.
Una soluzione ideale per chi cerca spazi ampi, comfort e una posizione centrale, senza rinunciare alla tranquillità.
L’ingresso si apre su un ampio soggiorno doppio, luminoso e accogliente, uno spazio ideale per la vita quotidiana e per ricevere ospiti; grazie alla generosa metratura, offre anche la possibilità di ricavare una stanza aggiuntiva. Dal soggiorno si accede, tramite portafinestra, a un terrazzino vivibile, dotato di tenda estiva, perfetto per i momenti di relax all’aperto.
La cucina è abitabile, ben organizzata e servita da finestra e portafinestra che conducono a un secondo balcone, dove è installata la caldaia a semicondensazione sostituita nel 2020. Completano il piano una camera da letto con balcone alla francese e un bagno finestrato con vasca.
Attraverso una scala interna a giorno in legno massiccio si accede al piano superiore mansardato, dove troviamo due camere da letto, entrambe climatizzate, un secondo bagno finestrato con box doccia e una comoda stanza adibita a lavanderia, funzionale e ben sfruttabile.
L’appartamento è dotato di riscaldamento autonomo con termostati indipendenti su ciascun piano, infissi in legno con doppi vetri e impianto di antifurto volumetrico e perimetrale, garantendo comfort e sicurezza.
Completa la proprietà una cantina.
È inoltre possibile acquistare box auto singolo al prezzo di € 20.000.
Una soluzione ideale per chi cerca spazi ampi, comfort e una posizione centrale, senza rinunciare alla tranquillità.
Dati principali
| Riferimento | 61170330 |
| Data annuncio | 31/01/2026 |
| Contratto | Vendita |
| Tipologia | Appartamento |
| Superficie | 140 m2 |
| Locali | 5 (5 altro), 2 bagni |
| Piano | 3 di 3 totali |
Costi
| Prezzo | 277.000 € |
| Prezzo al m2 | 1.979 €/m2 |
| Spese condominiali | € 83,00/mese |
Efficienza energetica
| Anno costruzione | 1990 |
| Riscaldamento | Autonomo |
| Tipo Alimentazione Riscaldamento | Metano |
| Classe energetica | D |
| Indice di prestazione energetica (EP GL, REN) | 54.86 kWh/m3 anno |
| Indice di prestazione energetica (EP GL, NREN) | 89.51 kWh/m3 anno |
Planimetrie
Indirizzo e mappa
Via Schifani, Beinasco
Calcolo mutuo
Prezzo di vendita:
Anticipo
20,00
Mutuo
80,00
Tasso: -+
Rata: 792 al mese
I risultati sono una stima indicativa basata sui dati inseriti e non costituiscono un’offerta finanziaria.
Inserzionista
Agenzia Tecnocasa Studio Beinasco Sas
Via Torino, 14, Beinasco
Mostra Telefono
Chiama
CONTATTA

