Appartamento via Marengo, 3, San Mauro Torinese
€ 225.000SAN MAURO, TRILOCALE CON GIARDINO PRIVATO
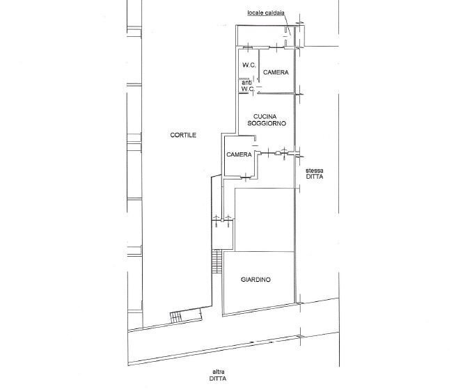
San Mauro Torinese, via Marengo, in tranquillo complesso residenziale del 2006 servito da strada a fondo chiuso e priva di traffico veicolare proponiamo in vendita appartamento trilocale con ingresso indipendente e giardino privato. L'immobile è composto da: - ingresso su ampio soggiorno con cucina a vista; - camera matrimoniale; - cameretta; - bagno finestrato; - pratico ripostiglio; - armadio a muro. L'appartamento ha una doppia esposizione, un balcone, un terrazzo e un’area esterna di circa 60 mq, in parte pavimentata e in parte adibita a giardino, dotata di impianto di irrigazione temporizzato. Caratteristiche principali: - riscaldamento autonomo; - condizionatore; - infissi in legno con doppi vetri; - tapparelle motorizzate; - zanzariere; - tende da sole estate/inverno; - videocitofono; - porta blindata. Completa la proprietà un BOX DOPPIO di 36 mq calpestabili a € 30.000, ideale per due auto e spazio di deposito. Soluzione in ottimo stato, basse spese di gestione, ideale per chi cerca tranquillità, privacy e indipendenza a pochi minuti dai principali servizi. TORINO Consulenze Immobiliari Via Tripoli 102, Torino 011.1981.57.36 - 380.52.21.642
Dati principali
| Riferimento | MAR3 |
| Data annuncio | 01/10/2025 |
| Contratto | Vendita |
| Tipologia | Appartamento |
| Superficie | 91 m2 |
| Locali | 3 (2 camere da letto, 1 altro), 1 bagno, cucina a vista |
| Piano | 1 di 2 totali |
| Tipo di costruzione | Signorile |
| Numero di terrazzi | 1 |
| Numero di balconi | 1 |
| Box auto | Doppio |
| Arredamento | Parziale |
Caratteristiche
Costi
| Prezzo | 225.000 € |
| Prezzo al m2 | 2.473 €/m2 |
| Spese condominiali | € 120,00/mese |
Efficienza energetica
| Anno costruzione | 2006 |
| Stato | Ottimo |
| Riscaldamento | Autonomo |
| Classe energetica | D |
| Indice di prestazione energetica (IPE) | 175 kWh/m2 anno |
Planimetrie
Indirizzo e mappa
via Marengo, 3, San Mauro Torinese
Calcolo mutuo
Prezzo di vendita:
Anticipo
20,00
Mutuo
80,00
Tasso: -+
Rata: 643 al mese
I risultati sono una stima indicativa basata sui dati inseriti e non costituiscono un’offerta finanziaria.
Inserzionista

TORINO Consulenze Immobiliari
via Tripoli 102, Torino
Mostra Telefono
Chiama
CONTATTA

