Appartamento Lungarno Francesco Ferrucci 15, Firenze
€ 288.000
MODERN APARTMENT Dove il futuro prende forma, nel cuore autentico di Firenze Ci sono luoghi che sanno raccontare una promessa. Gavinana è uno di questi: un quartiere che unisce il ritmo elegante della vita residenziale fiorentina alla comodità dei servizi, lontano dal rumore del turismo ma perfettamente connesso al cuore della città. Qui, tra viali curati, piste ciclabili e una qualità della vita in costante crescita, nasce un appartamento pensato per chi desidera abitare oggi immaginando il domani. Unabitazione in costruzione, pronta a diventare casa o investimento, dove ogni scelta parla di comfort, funzionalità e visione. IL CONTESTO Gavinana è uno dei quartieri più interessanti e solidi di Firenze, ideale sia per vivere che per investire. Residenziale, ben servito e oggetto negli ultimi anni di importanti interventi di riqualificazione urbana, offre scuole di ogni grado, negozi di quartiere, supermercati, centri sportivi e strutture sanitarie. I collegamenti sono eccellenti: autobus e piste ciclabili permettono di raggiungere facilmente il centro storico e le principali zone della città. L'APPARTAMENTO Piano terra, in contesto servito da ascensore Proponiamo immobile in costruzione, con consegna prevista a marzo 2026 Riscaldamento centralizzato Predisposizione per la climatizzazione Una soluzione progettata per garantire comfort abitativo, efficienza e valore nel tempo, inserita in un contesto tranquillo ma strategico. VISIONE INNOVATIVA: lIA al servizio dellimmaginazione Poiché lappartamento è in fase di realizzazione, utilizziamo tecnologie di Intelligenza Artificiale per offrire una visione concreta del suo potenziale. Attraverso rendering evoluti e simulazioni di arredo, lIA permette di immaginare gli spazi finiti, suggerendo allestimenti, stili e soluzioni darredo personalizzate. Un supporto tecnologico che trasforma un progetto sulla carta in unesperienza visiva reale, aiutandoti a scegliere con maggiore consapevolezza e ispirazione. PERCHE' SCEGLIERLO Quartiere in crescita, ideale anche come investimento Nuova costruzione con standard moderni Comfort, servizi e collegamenti Tecnologia e visione orientata al futuro Una casa non è solo un luogo, è una scelta di vita. Questo appartamento a Gavinana rappresenta unopportunità concreta per chi cerca qualità, prospettiva e innovazione, accompagnato da una consulenza professionale attenta e trasparente. Contattaci per scoprire il progetto, visionare le simulazioni con IA e iniziare oggi a immaginare la tua casa di domani. Per garantire la privacy dei proprietari, la mappa e lindirizzo possono non rispecchiare esattamente la posizione dellimmobile. Questa scheda è puramente informativa e non costituisce elemento contrattuale, le informazioni qui contenute sono da ritenersi del tutto indicative e non potranno essere utilizzate come parte integrante in un eventuale contratto di vendita o locazione della proprietà.
Dati principali
| Riferimento | 012 - MODERN APARTMENT |
| Data annuncio | 31/01/2026 |
| Contratto | Vendita |
| Tipologia | Appartamento |
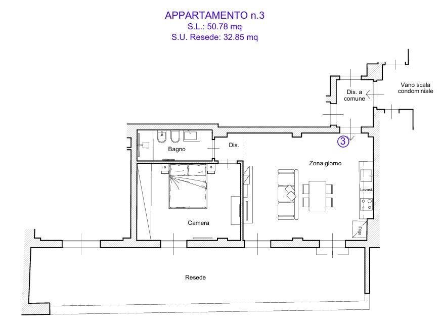
| Superficie | 50 m2 |
| Locali | 2 (1 camera da letto, 1 altro), 1 bagno, cucina semi abitabile |
| Tipo di costruzione | Signorile |
| Occupato | Libero |
| Arredamento | Parziale |
Caratteristiche
Costi
| Prezzo | 288.000 € |
| Prezzo al m2 | 5.760 €/m2 |
Efficienza energetica
| Riscaldamento | Centralizzato |
| Tipo Impianto Di Riscaldamento | a pavimento |
| Classe energetica | Immobile esente da certificazione energetica |
Planimetrie
Indirizzo e mappa
Lungarno Francesco Ferrucci
15, Firenze
Annuncio senza mappa,
prova a chiedere la posizione all'inserzionista
prova a chiedere la posizione all'inserzionista
Calcolo mutuo
Prezzo di vendita:
Anticipo
20,00
Mutuo
80,00
Tasso: -+
Rata: 824 al mese
I risultati sono una stima indicativa basata sui dati inseriti e non costituiscono un’offerta finanziaria.
Inserzionista

Ritmo Maison
Via G. Marconi, 13Rosso, Firenze
Mostra Cellulare
Chiama
CONTATTA

