Quadrilocale Viale Monte Santo, Milano
€ 800.000
PIAZZA DELLA REPUBBLICA/VIA MONTE SANTO - VENDESI NUDA PROPRIETA': PLURILOCALE CON DOPPIA ESPOSIZIONE E DUE BALCONI.
In elegante contesto signorile con doppi ascensori e servizio di portineria, Kers Immobiliare propone in vendita nuda proprietà (usufruttuaria 83 anni).
Appartamento estremamente luminoso e biesposto, situato al terzo piano di un condominio di pregio, dotato di accesso diretto dallascensore allinterno dellabitazione e di un comodo secondo ingresso.
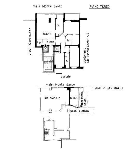
Limmobile è così composto: ampio soggiorno doppio, cucina abitabile, ripostiglio/guardaroba, camera matrimoniale con balcone, bagno en suite e cabina armadio, due camere singole, di cui una con balcone, secondo bagno finestrato.
Completano la proprietà una cantina di pertinenza. Lappartamento si presenta in condizioni discrete ed è dotato di impianto di aria condizionata, pavimenti in parquet e marmo, riscaldamento e acqua calda centralizzati con pannelli.
Spese condominiali: 480,00 mensili. La posizione è centralissima, ottimamente servita da mezzi di superficie, metropolitana e passante ferroviario, ideale come investimento di lungo periodo. Classe energetica G 175,55 kWh/mq annuo.
CODICE ANNUNCIO 26/010 MonteSanto
Le informazioni della presente scheda sono puramente indicative e non costituiscono condizioni contrattuali.
Gli incarichi Kers Immobiliare sono proposti attraverso l'esclusiva formula "Acquisto Sicuro" a maggior garanzia dei clienti acquirenti. Per qualsiasi consulenza immobiliare contatti uno dei nostri Brokers.
KERS Immobiliare è aperta alle collaborazioni con altri Agenti e Agenzie attraverso la sottoscrizione del Patto di Collaborazione e Trasparenza e Codice Etico
Kers Immobiliare sta cercando per la propria clientela immobili di diversa tipologia, anche da ristrutturare. Ci contatti per una consulenza immobiliare gratuita.
La Privacy Policy è consultabile sul nostro sito
In elegante contesto signorile con doppi ascensori e servizio di portineria, Kers Immobiliare propone in vendita nuda proprietà (usufruttuaria 83 anni).
Appartamento estremamente luminoso e biesposto, situato al terzo piano di un condominio di pregio, dotato di accesso diretto dallascensore allinterno dellabitazione e di un comodo secondo ingresso.
Limmobile è così composto: ampio soggiorno doppio, cucina abitabile, ripostiglio/guardaroba, camera matrimoniale con balcone, bagno en suite e cabina armadio, due camere singole, di cui una con balcone, secondo bagno finestrato.
Completano la proprietà una cantina di pertinenza. Lappartamento si presenta in condizioni discrete ed è dotato di impianto di aria condizionata, pavimenti in parquet e marmo, riscaldamento e acqua calda centralizzati con pannelli.
Spese condominiali: 480,00 mensili. La posizione è centralissima, ottimamente servita da mezzi di superficie, metropolitana e passante ferroviario, ideale come investimento di lungo periodo. Classe energetica G 175,55 kWh/mq annuo.
CODICE ANNUNCIO 26/010 MonteSanto
Le informazioni della presente scheda sono puramente indicative e non costituiscono condizioni contrattuali.
Gli incarichi Kers Immobiliare sono proposti attraverso l'esclusiva formula "Acquisto Sicuro" a maggior garanzia dei clienti acquirenti. Per qualsiasi consulenza immobiliare contatti uno dei nostri Brokers.
KERS Immobiliare è aperta alle collaborazioni con altri Agenti e Agenzie attraverso la sottoscrizione del Patto di Collaborazione e Trasparenza e Codice Etico
Kers Immobiliare sta cercando per la propria clientela immobili di diversa tipologia, anche da ristrutturare. Ci contatti per una consulenza immobiliare gratuita.
La Privacy Policy è consultabile sul nostro sito
Dati principali
| Riferimento | 26/010 MonteSanto |
| Data annuncio | 31/01/2026 |
| Contratto | Vendita |
| Tipologia | Appartamento |
| Superficie | 135 m2 |
| Locali | 4 (3 camere da letto, 1 altro), 2 bagni, cucina abitabile |
| Piano | 3 di 7 totali |
| Occupato | Libero |
| Box auto | Assente |
| Arredamento | Assente |
Caratteristiche
Costi
| Prezzo | 800.000 € |
| Prezzo al m2 | 5.926 €/m2 |
Efficienza energetica
| Riscaldamento | Centralizzato |
| Tipo Alimentazione Riscaldamento | Altro |
| Classe energetica | G |
| Indice di prestazione energetica (IPE) | 185 kWh/m2 anno |
Planimetrie
Indirizzo e mappa
Viale Monte Santo, Milano
Annuncio senza mappa,
prova a chiedere la posizione all'inserzionista
prova a chiedere la posizione all'inserzionista
Calcolo mutuo
Prezzo di vendita:
Anticipo
20,00
Mutuo
80,00
Tasso: -+
Rata: 2.288 al mese
I risultati sono una stima indicativa basata sui dati inseriti e non costituiscono un’offerta finanziaria.
Inserzionista

Kers Immobiliare
Viale Monte Nero, 11, Milano
Mostra Telefono
Chiama
CONTATTA

